552 Rowmont Blvd. NW | Haskayne | Calgary

Pending

Pending

552 Rowmont Boulevard | Haskayne

Beds
3 2
Baths
3.5
Sqft
1,826
Lot Sqft
2,464
Year Built
2025
Days Listed
77
Type
Semi Detached (Half Duplex)
Status
Pending
Garage
No
Foundation
Concrete
Condo Fee
No
Price Change
-$10k, 05-Nov

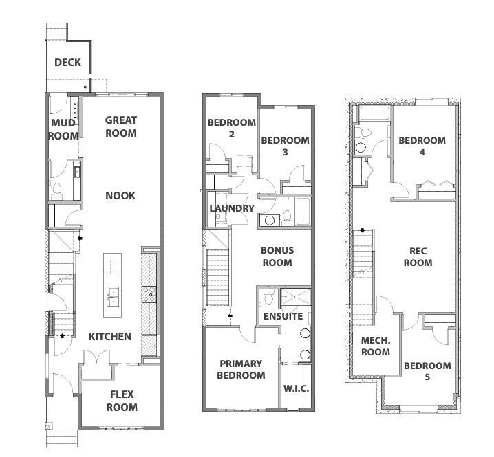
Every great home tells a story and this one begins in Rockland Park, Calgary’s new riverside community where nature, convenience, and modern living meet. Here, tree-lined streets guide you toward an address designed not just for living, but for thriving. Steps from the Bow River pathways and minutes from shops, schools, and future community amenities, this is more than a house - it’s the lifestyle you’ve been waiting for. Inside, a sense of flow and openness greets you. The front flex room offers instant versatility - imagine it as your home office, an elegant dining space, or a creative playroom. At the heart of the main floor, the kitchen is bright and timeless, with cream coloured cabinetry, crisp white quartz counters, and a striking hexagon tile backsplash. A large island invites friends to gather, while a walk-in pantry makes daily life effortless. You’ll receive an appliance allowance of $6,269 to select your desired appliances at the builder’s supplier. The adjoining dining nook and open great room create the perfect stage for family dinners and cozy evenings with seamless access to the back deck for summer barbecues. A mudroom and powder room tucked smartly off the kitchen add function to beauty. Upstairs, the primary suite is a retreat designed for rest and rejuvenation. A spacious walk-in closet keeps everything organized, while the ensuite, with double sinks, a glass shower, and a private water closet, feels like a spa. Two additional bedrooms share a full bath, and the upstairs laundry room makes chores a breeze. At the center, a generous bonus room sets the tone for family movie nights or a kids’ hangout zone. The FULLY FINISHED BASEMENT extends your lifestyle with a flexible rec room, two additional bedrooms, and a full bathroom - ideal for hosting guests, giving teens their own space, or creating a multigenerational setup. Throughout the home, the design leans modern yet inviting: light luxury vinyl plank floors ground the main spaces in warmth, soft carpet keeps bedrooms cozy, and matte black fixtures add just the right amount of bold contrast. This home delivers five bedrooms, three and a half bathrooms, and multiple living spaces across every level—crafted for families who want space to grow and connect. All in Rockland Park, where you’ll enjoy riverside pathways, planned parks, schools, shops, and an easy commute to downtown. Schedule your showing today and be among the first to experience Rockland Park living at its finest. *Some photos are Virtually Staged.*

MLS ® #: A2258333
Listing Office: Royal LePage Benchmark
Date Listed: September 20, 2025 - 78 days on site
Last Updated: Dec 07, 2025 04:11am MST

$659,900

Details

Style:
2 storey, attached-side by side

Interior:
double vanity, kitchen island, no animal home, no smoking home, open floorplan, pantry, quartz counters, separate entrance, walk-in closet(s)

Exterior:
bbq gas line

Lot:
back lane, back yard, rectangular lot

Parking/Garage:
off street, parking pad

Frontage (feet):
23.59

Even More Details

Foundation:
poured concrete

Construction:
cement fiber board

Flooring:
carpet,tile,vinyl plank

Roof:
asphalt shingle

Heating:
high efficiency

Inclusions:
$6,269 appliance allowance to be used at the builder's supplier.

Room Sizes

Office

11`11" x 9`3"

Kitchen

16`8" x 8`2"

Living/Dining Room Combination

23`10" x 11`7"

2pc Bathroom

0`0" x 0`0"

Mud Room

9`6" x 4`7"

Bonus Room

12`9" x 9`5"

Bedroom - Primary

13`5" x 11`8"

4pc Ensuite bath

0`0" x 0`0"

Laundry

5`11" x 3`5"

4pc Bathroom

0`0" x 0`0"

Bedroom

11`11" x 8`3"

Bedroom

10`4" x 8`3"

Bedroom

12`5" x 11`0"

Family Room

17`11" x 12`8"

Bedroom

12`10" x 9`9"

4pc Bathroom

0`0" x 0`0"

Thoughtful | Loyal | Effective

Loving this home?

Breanna will call to discuss.

"The whole experience from start to finish was exactly what you look for when buying a house" - Makenzie Corcoran

Similar Properties

8911 6 St. #6

Acadia 4 Bed 3.5 Bath 1452sqft

Charles

160 SIENNA Passage

Rainbow Falls 3 Bed 2.5 Bath 1463sqft

Stonemere Real Estate Solutions

16 Alderwood Close

Acadia 4 Bed 3.5 Bath 1452sqft

Charles

275 Marine Drive

Mahogany 2 Bed 2.5 Bath 1888sqft

eXp Realty

21 Albright Drive

Harmony 3 Bed 2.5 Bath 1769sqft

Bode Platform Inc.

80 Sierra Morena Landing

Signal Hill 3 Bed 2.5 Bath 1450sqft

Jessica Chan Real Estate & Management Inc.

28 Prominence View

Patterson 2 Bed 2.5 Bath 1323sqft

Real Broker

109 Savanna Place

Saddle Ridge 6 Bed 4 Bath 1827sqft

eXp Realty

12 Alderwood Close

Acadia 4 Bed 3.5 Bath 1452sqft

Charles

“I think what sets Breanna apart is her genuine care for her clients.”.
 
- Shaun & Robyn Vey
“[Breanna] told me with 100% confidence and certainty she could get the job done and that’s exactly what happened.”.
 
- Channing Pass
“(Breanna) really did exactly what she promised to do. Thank you The A-Team for all your hard work and for making selling a home easy. ”.
 
- Rafal Wrobel

Breanna
Albrecht