47 Heritage Heath | Downtown Cochrane | Cochrane

Open House

Open House

47 Heritage Heath | Downtown Cochrane

Beds
3
Baths
2.5
Sqft
2,505
Lot Sqft
3,699
Year Built
2025
Days Listed
26
Type
Detached
Status
Active
Garage
Yes
Foundation
Concrete
Condo Fee
No
Price Change
None

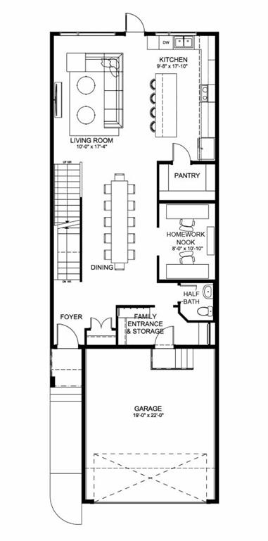
***OPEN HOUSE Sunday from 1pm to 3pm, Visit the Showhome for Access*** Welcome to this Beautifully Designed Home created for modern family living. The spacious dining area comfortably seats 12 OR MORE PEOPLE, providing the perfect setting for both intimate dinners and large family gatherings. The thoughtfully designed kitchen invites shared meal preparation, turning everyday cooking into an enjoyable experience at the heart of the home. A versatile MAIN-FLOOR DEN offers flexibility and can be easily transformed into a dedicated homework area or a welcoming guest room. Upstairs, two generously sized bedrooms provide quiet retreats ideal for study or relaxation. The expansive PRIMARY BEDROOM serves as a private sanctuary, offering a peaceful escape where self-care takes center stage. This home is filled with impressive details, including sleek HORIZONTAL ALUMINUM RAILINGS WITH CLEAR GLASS, an elegant ELECTRIC FIREPLACE that anchors the living space, SOARING 9FT FOUNDATIONS, and a desirable location BACKING ONTO THE ENVIRONMENTAL RESERVE. Every Cantiro Home is equipped with modern comfort and efficiency in mind, featuring a TANKLESS WATER HEATER, TRIPLE PANE WINDOWS, and SMART HOME FEATURES such as a SMART THERMOSTAT, DOORBELL CAMERA, KEYLESS DOOR LOCK, and WIFI-CONNECTED GARAGE DOOR OPENER. The West Hawk community is thoughtfully designed around 27 ACRES OF SLOPING ENVIRONMENTAL RESERVE, preserving native wildlife habitats while offering residents scenic viewpoints, rest areas, and a network of WALKING TRAILS AND RAVINE CROSSINGS. These natural features are integrated into Bike Cochrane’s exclusive bike network, providing residents with seamless access to the outdoors. Future community enhancements in Phases 2 and 3 include an OFF-LEASH DOG PARK and a PLAYGROUND, both expected to be completed by early fall 2025. Over 50% of the homes in West Hawk are strategically positioned to back onto key amenities such as the Environmental Reserve Ridge, the future dog park in the northeastern corner, and the planned Tot Lot along Heritage Boulevard. A FUTURE K–9 SCHOOL SITE will further enhance the family-friendly atmosphere and contribute to the exceptional quality of life for residents. Don't miss your chance to view this beauty today!

MLS ® #: A2262943
Listing Office: eXp Realty
Date Listed: November 10, 2025 - 27 days on site
Last Updated: Dec 06, 2025 11:12am MST

$749,900

Open House

Sunday, Dec 07th
01:00PM - 03:00PM

Representation matters! If you'd prefer a private showing of this home, or would like a professional to accompany you to the open house, we can arrange it. That way, a representative present to look after your confidential information and your best interests. Just let us know!

Details

Style:
2 storey

Garage Size:
2

Interior:
bathroom rough-in, closet organizers, double vanity, high ceilings, kitchen island, low flow plumbing fixtures, no animal home, no smoking home, open floorplan, pantry, quartz counters, smart home, tankless hot water, walk-in closet(s)

Exterior:
none

Lot:
back yard, street lighting

Parking/Garage:
double garage attached

Frontage (feet):
32.22

Even More Details

Foundation:
poured concrete

Construction:
vinyl siding

Flooring:
carpet,tile,vinyl plank

Roof:
asphalt shingle

Heating:
forced air

Inclusions:
none

Room Sizes

Entrance

8`10" x 9`3"

Dining Room

10`8" x 17`0"

Living Room

13`0" x 18`0"

Kitchen

9`6" x 17`8"

Office

8`0" x 10`10"

Mud Room

6`0" x 8`6"

Bedroom - Primary

11`6" x 18`0"

Bedroom

11`0" x 13`8"

Bedroom

11`8" x 12`0"

Laundry

6`6" x 7`3"

Family Room

14`10" x 18`8"

2pc Bathroom

5`1" x 5`7"

4pc Bathroom

4`11" x 9`4"

5pc Ensuite bath

8`0" x 11`6"

Thoughtful | Loyal | Effective

Loving this home?

Breanna will call to discuss.

"We found the house that was perfect for us in record time and for a reasonable price" - Alishia Randall

Similar Properties

Reduced

6616 Silverdale Road

Silver Springs 4 Bed 2.5 Bath 1262sqft

RE/MAX First

11330 86 St.

NONE 6 Bed 5 Bath 1972sqft

Century 21 Bravo Realty

611 Agate Crescent

Acadia 4 Bed 3 Bath 1293sqft

Real Broker

303 Kinniburgh Loop

Kinniburgh South 4 Bed 4 Bath 2648sqft

Real Estate Professionals Inc.

Pending

229 Wood Valley Place

Woodbine 5 Bed 2.5 Bath 2021sqft

Century 21 Bravo Realty

Pending

New

2204 25 Ave.

Banff Trail 4 Bed 2 Bath 1175sqft

RE/MAX Real Estate (Mountain View)

203 Lucas Common

Livingston 5 Bed 4 Bath 2276sqft

Charles

504 Creekrun Lane

Cobblestone Creek 3 Bed 2.5 Bath 2408sqft

eXp Realty

75 Sunvalley Way

Sunset Ridge 3 Bed 2.5 Bath 2230sqft

URBAN-REALTY.ca

“The A-Team sold our Condo when other REALTORS® couldn't.”.
 
- Colleen Bussey
“I never had to wait any length of time for her to answer my call or text. ”.
 
- Diane Elizabeth Gaulton
“A lot of people viewed the movie and pictures within the first 24 hours and I believe we had around 10 showings within the first two days.”.
 
- Gerald Lichti

Breanna
Albrecht