225 11 Ave. SE #1401 | Beltline | Calgary

225 11 Avenue #1401 | Beltline

Beds
1
Baths
1.0
Sqft
635
Lot Sqft
0
Year Built
2013
Days Listed
208
Type
Apartment
Status
Active
Garage
No
Foundation
No Info
Condo Fee
$509
Price Change
+$5k, 21-May

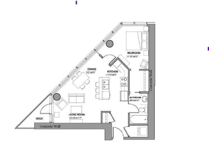
Click brochure link for more details. CALGARY TOWER VIEW, PENTHOUSE LEVEL PARKING, HIGH END, UPGRADED, GLASS FLOOR TO CEILING WRAP AROUD WINDOWS, CORNER unit (this not a typical 1 bedroom) in prestigious KEYNOTE 2 premier apartment residences, situated in the highly sought after downtown location of VICTORIA PARK and within the walk-zone to Calgary core amenities. This executive upgraded unit has the best PARKING on P1 level which will save 20-30 minutes every day to get to/from parkade while saving your car longevity not going over the parkade speed bumps and same level titled oversized storage. Unit offers exceptional privacy and tranquility compared to other buildings in downtown thanks to its ALL-CONCRETE construction, including shared walls. Its unique ALL-GLASS EXTERIOR sets it apart, making it a standout building in Calgary's skyline. The OPEN-CONCEPT LAYOUT is designed for comfort and style, this unit boasts 9' ceiling with WRAP AROUND FULL FLOOR TO CEILING WINDOWS with BLINDS at your fingertip to close/open at your convenience and enjoy spectacular views of Calgary Tower. It is well planned one bedroom walk-in/walk through closet, entrance/exit from both bedroom and bathroom, not like any other layouts and one full bath, ceiling-height kitchen with European cabinetry, GRANITE counter-tops, center island, engineered hardwood floors and “Samsung” stainless appliances. Enjoy the ease of in-suite laundry and the comfort of central AIR CONDITIONING, ensuring a perfect indoor climate year-round. This unit like no others has UPGRADES: P1/Level1 Parking right at the entrance of the parkade, oversized titled storage, “VOVO” smart toilet, smart touchless faucets in the kitchen and bathroom, rain shower, large, matte black sink in the bathroom, new modern lighting fixtures in the kitchen, living room and bathroom, “InSinkErator” Garbage Disposal, countertop soap dispenser, has professionally drilled hole in the countertop to install water filtration like Reverse Osmosis and a new “Samsung” Glass Touch LED microwave. The adjoining living room can accommodate full-size furniture and leads to the balcony where you can enjoy your morning coffee while watching the sun rise or sipping glass of wine watching lights of Calgary Tower in the evening. This air-conditioned complex has keyless main entry and a newly installed high security system. Keynote 2 boasts an array of exceptional amenities that cater to an active and social lifestyle. Stay fit in one of the 2 the state-of-the-art fitness centers or unwind in the owner's lounge complete with a large TV, pool table, kitchen and wet bar. Furnished guest suites, 24-hour security with surveillance cameras, and secured elevator access. The building also features a Plus-15 rooftop patio with outdoor space and BBQs, perfect for summer gatherings and relaxing with friends. Residents enjoy the convenience of full-time onsite management, secured elevator access, a guest room for visiting friends and family, two bike rooms.

MLS ® #: A2214977
Listing Office: Honestdoor Inc.
Date Listed: May 12, 2025 - 209 days on site
Last Updated: Dec 06, 2025 11:30am MST

$349,950

Details

Style:
apartment-single level unit

Interior:
closet organizers, no animal home, no smoking home, storage

Exterior:
none

Parking/Garage:
underground

Even More Details

Pets Allowed:
yes

Construction:
concrete

Flooring:
carpet,hardwood

Heating:
forced air

Inclusions:
call seller directly

Condo Fee Includes:
amenities of hoa/condo,cable tv,caretaker,common area maintenance,gas,heat,insurance,interior maintenance,maintenance grounds,parking,professional management,reserve fund contributions,residential manager,security,security personnel,sewer,snow removal,trash,water

Room Sizes

Bedroom - Primary

11`10" x 9`3"

4pc Bathroom

8`8" x 4`11"

Kitchen

11`3" x 8`6"

Dining Room

9`2" x 6`5"

Living Room

13`10" x 11`7"

Thoughtful | Loyal | Effective

Loving this home?

Breanna will call to discuss.

"I have never had a home purchase go as smoothly as this one" - Sarah Clark-Pickett

Similar Properties

200 Seton Circle #2406

Seton 2 Bed 2 Bath 848sqft

Comox Realty

Reduced

615 6 Ave. #426

Downtown East Village 2 Bed 1 Bath 802sqft

RE/MAX House of Real Estate

730 2 Ave. #1012

Eau Claire 2 Bed 1 Bath 514sqft

Skyrock

19489 Main St. #1211

Seton 3 Bed 2 Bath 1139sqft

RE/MAX Real Estate (Mountain View)

1078 6 Ave. #1302

Downtown West End 2 Bed 2 Bath 1110sqft

First Place Realty

Reduced

3412 Parkdale Blvd. #407

Parkdale 1 Bed 3 Bath 1517sqft

RE/MAX Realty Professionals

1441 23 Ave. #403

Bankview 2 Bed 2 Bath 1324sqft

Real Estate Professionals Inc.

Pending

11 Burma Star Road #303

Currie Barracks 1 Bed 1 Bath 950sqft

eXp Realty

1188 3rd St. #3004

Beltline 2 Bed 2 Bath 743sqft

Century 21 Masters

“Breanna was a dream to work with - knowledgeable, attentive, professional and organized. I really appreciate how she and Tom operate their business - 'integrity' is the word that comes to mind.”.
 
- Michele Hannay
“(Breanna) really did exactly what she promised to do. Thank you The A-Team for all your hard work and for making selling a home easy. ”.
 
- Rafal Wrobel
“She was extremely professional, knowledgeable, transparent and reliable through the whole process. It truly felt like having a friend on the "inside" working for us.”.
 
- Kevin and Sandie

Breanna
Albrecht