100 10A St. NW #801 | Hillhurst | Calgary

100 10A Street #801 | Hillhurst

Beds
3
Baths
3.0
Sqft
2,486
Lot Sqft
0
Year Built
2027
Days Listed
341
Type
Apartment
Status
Active
Garage
No
Foundation
Concrete
Condo Fee
$2,063
Price Change
+$250k, 03-Jul

Perhaps the finest 2500 square foot offering in Calgary, brand new in The Kenten. Welcome to your dream single-level residence in the sky with 130 feet of glass, 3 elevations, overlooking the river, trees, cityscape. Optional 4 Bedroom 3 Bathroom, Masterfully designed by architects Davignon and Martin, The Bow is designed to give Calgarians an inner-city experience without sacrificing the comforts appreciated in an executive home. As you step in, you are greeted by a sweeping view of the river; floor to ceiling triple-pane windows with a 10 foot ceiling; a massive open concept kitchen, living, and dining room designed to entertain your family and friends. Enjoy a gourmet kitchen with Sub-Zero & Wolf appliances including a dedicated fridge and freezer, an abundance of storage, a bar, wine wall, and a floating fireplace that all flow towards your opening wall system. Step out onto your large terrace overlooking the beautiful Bow River. Enjoy a spacious primary bedroom with custom millwork, walk-in closet, and 6 piece ensuite bathroom with a floating tub, heated floors, and double shower with steam. The second bedroom comes with it's own walk-in closet and ensuite bathroom, and the third bedroom comes with a cheater ensuite bathroom and a built-in murphy bed with room for a desk. An huge riverfront den and laundry room complete the residence accompanied by 2 bike racks, 2 titled storage lockers, and 3 titled parking stalls. There are 3 Modern palettes to choose from that can be further customized to your liking. The Kenten features over 8,000 square feet of amenities including a sky lounge, gym overlooking Kensington, golf simulator, sauna, hot tub, concierge, guest suites, car wash, and more. Explore a simplified lock and leave lifestyle you didn't know was possible, with 250+ shops and restaurants in Kensington and river pathways stemming from one end of the city to the other. Now preselling, our Sales Centre is open for viewings by private appointment. With only 44 residences, don't miss this once in a lifetime opportunity to live at the most interesting corner in Calgary.

MLS ® #: A2224066
Listing Office: Purpose Realty
Date Listed: May 23, 2025 - 342 days on site
Last Updated: Apr 30, 2026 02:05am MST

$5,250,000

Details

Style:
apartment-single level unit

Garage Size:
3

Interior:
bar, built-in features, closet organizers, double vanity, kitchen island, natural woodwork, open floorplan, pantry, quartz counters, smart home, steam room, storage, walk-in closet(s), wet bar

Exterior:
other

Lot:
waterfront

Parking/Garage:
220 volt wiring, gated, heated garage, parkade, secured, titled, underground

Frontage (feet):
48.00

Even More Details

Taxes:
$0

Pets Allowed:
cats ok,dogs ok

Foundation:
poured concrete

Construction:
concrete

Flooring:
hardwood

Roof:
concrete,flat

Heating:
central

Inclusions:
n/a

Condo Fee Includes:
amenities of hoa/condo,caretaker,common area maintenance,gas,heat,insurance,maintenance grounds,parking,professional management,reserve fund contributions,security,sewer,snow removal,trash,water

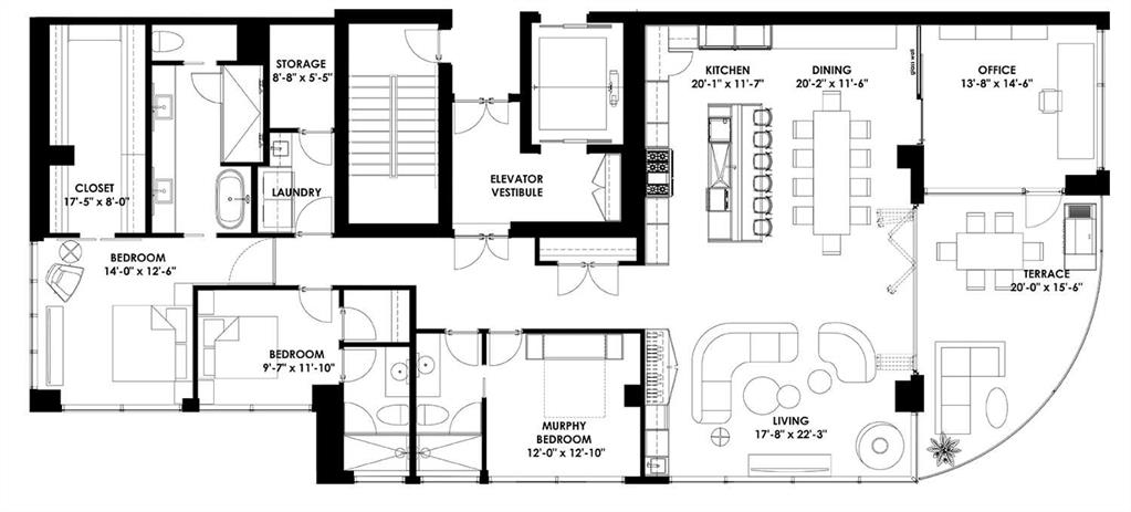
Room Sizes

Living Room

17`8" x 22`3"

Dining Room

20`2" x 11`6"

Kitchen

20`1" x 11`7"

Bedroom - Primary

14`0" x 12`6"

Walk-In Closet

17`5" x 8`0"

6pc Ensuite bath

0`0" x 0`0"

Bedroom

11`10" x 9`7"

3pc Ensuite bath

0`0" x 0`0"

Office

13`8" x 14`6"

Bedroom

12`0" x 12`10"

3pc Ensuite bath

0`0" x 0`0"

Thoughtful | Loyal | Effective

Loving this home?

Breanna will call to discuss.

"Would definitely recommend, especially for first-time homebuyers who need a little bit more guidance and help" - Jennifer Sine

Similar Properties

-No Listings Found-

“During negotiations Breanna was a huge asset and her skill and knowledge really helped us get the best deal we could.”.
 
- Brendon V.
“Breanna was a dream to work with - knowledgeable, attentive, professional and organized. I really appreciate how she and Tom operate their business - 'integrity' is the word that comes to mind.”.
 
- Michele Hannay
“The A Team helped us get our confidence back. But that was just the start. The hard work came after that. It hasn’t been easy and at times it has been extremely stressful but thank you to Breanna for her relentless hard work for her clients”.
 
- Louise Melvin

Breanna
Albrecht