828 8 Ave. NE #2 & 7 | Renfrew | Calgary

828 8 Avenue #2 & 7 | Renfrew

Beds
2 2
Baths
5.0
Sqft
1,538
Lot Sqft
0
Year Built
2025
Days Listed
183
Type
Row/Townhouse
Status
Active
Garage
Yes
Foundation
Concrete
Condo Fee
$554
Price Change
None

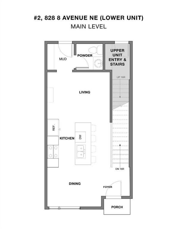
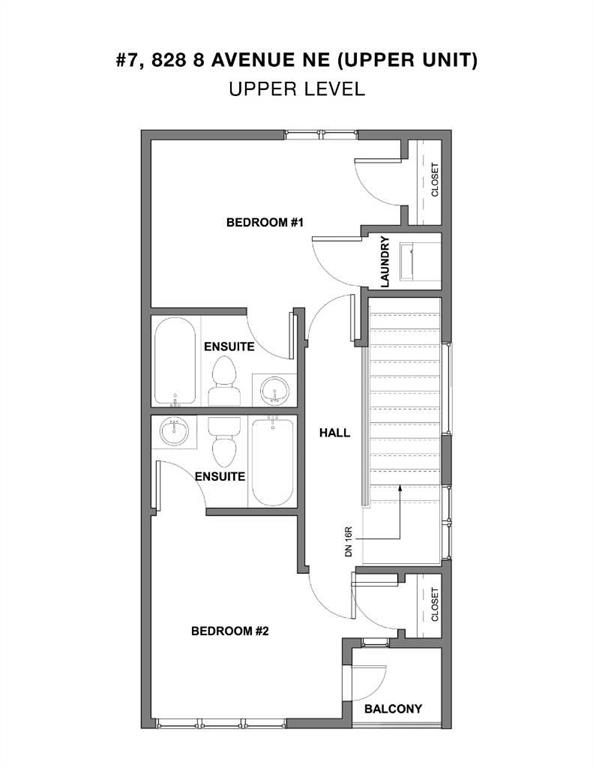
**ATTENTION FIRST-TIME BUYERS: You could qualify for up to a 100% GST rebate on this new home! Enquire Today!** With 4 upper-level units, and 4 lower-level units, this modern townhome project is sure to impress, with time still left to upgrade or customize! This listing includes TWO titled units: one upper-level 2-storey unit (#7) featuring 1,020 sq ft, with 2 beds, 2.5 baths, and a single detached garage, PLUS one lower-level unit directly below (#2) boasting a sunny main floor plus a FULLY FINISHED BASEMENT totalling over 900 sq ft of developed living space, with 2 beds & 2.5 baths. Live in one and rent the other, or combine both for personal use and have a 4-bedroom townhome with 1,950+ sq ft of living space! Both units feature sunny and bright open-concept living space, with sleek luxury vinyl plank (LVP) flooring and large windows. The fully equipped modern kitchens boast dual-tone slab-style cabinetry, quartz countertops, and Samsung stainless steel appliances, including a French-door refrigerator and a ceramic-top stove. Completing the main floor of both units is a spacious dining area perfect for family meals and entertaining, a living room with large windows for ample natural light and a stylish 2-piece powder room. The upper-unit level (#7) features a lacquered spindled railing leading to the upper floor, where 2 bedrooms, each with its own ensuite, await! Both ensuites feature a tiled tub/shower combo, and vanities with quartz counters. The lower-unit level (#2) with a fully developed basement features 2 bedrooms and 2 full bathrooms. Each bathroom boasts custom cabinetry, quartz counters, undermount sinks, and tiled tub/shower combos. Plus, both units feature a convenient in-suite laundry closet with a stacked washer/dryer. Stylish and durable, the exterior features Hardie Board and Smart Board detailing, and brushed concrete steps and walks. Long favoured by families, Renfrew is a tranquil community full of tree-lined streets and park space, featuring multiple schools such as Children’s Village School, Colonel Macleod School, St. Alphonsus School, and Stanley Jones School, along with sports fields and parks. The Renfrew Community Association is located just adjacent to this property, offering another playground and an ice rink in the winter - there is little need to venture outside the area! This neighbourhood is surrounded by numerous shopping and dining options, including Diner Deluxe, Boogie’s Burgers, and more, in the neighbouring community of Bridgeland. Enjoy convenient access to Calgary’s downtown core and major roadways for quick travel around the city. *Interior photos are samples taken from a past project - actual finishes may vary. **RMS measurements derived from the builder’s plans and are subject to change upon completion.

MLS ® #: A2228728
Listing Office: RE/MAX House of Real Estate
Date Listed: June 13, 2025 - 184 days on site
Last Updated: Dec 13, 2025 06:31am MST

$950,000

Details

Style:
townhouse-stacked

Garage Size:
1

Interior:
open floorplan, see remarks

Exterior:
private entrance

Lot:
corner lot

Parking/Garage:
single garage detached

Even More Details

Pets Allowed:
call

Foundation:
poured concrete

Construction:
cement fiber board,wood frame

Flooring:
tile,vinyl plank

Roof:
asphalt shingle

Heating:
forced air

Inclusions:
second dishwasher, second microwave, second refrigerator, second stove(s), second washer/dryer stacked

Condo Fee Includes:
common area maintenance,insurance,reserve fund contributions

Room Sizes

Living Room

11`8" x 10`3"

Kitchen

10`4" x 8`0"

Dining Room

12`4" x 9`4"

Bedroom - Primary

13`4" x 9`0"

Bedroom

10`10" x 10`3"

2pc Bathroom

0`0" x 0`0"

4pc Ensuite bath

0`0" x 0`0"

4pc Ensuite bath

Living Room

11`10" x 9`0"

Kitchen

9`11" x 8`4"

Dining Room

10`2" x 7`6"

Bedroom

11`0" x 9`11"

Bedroom

11`1" x 9`3"

2pc Bathroom

4pc Ensuite bath

4pc Ensuite bath

Thoughtful | Loyal | Effective

Loving this home?

Breanna will call to discuss.

"This what made this experience exceptional: I wasn't dealing with a REALTOR®️ , I was working with family" - Waseem Khourieh

Similar Properties

10 St Julien Drive #12

Garrison Woods 3 Bed 3.5 Bath 1852sqft

MaxWell Capital Realty

3048 85 St.

Springbank Hill 3 Bed 3.5 Bath 1710sqft

RE/MAX First

2402 Westmount Road

West Hillhurst 3 Bed 2.5 Bath 1916sqft

RE/MAX First

2020 2 St.

Mission 2 Bed 3.5 Bath 2174sqft

CIR Realty

923 1 Ave. #2

Sunnyside 3 Bed 2.5 Bath 2084sqft

Sotheby's International Realty Canada

3044 85 St.

Springbank Hill 3 Bed 3.5 Bath 1500sqft

eXp Realty

3550 45 St. #109 & 102

Glenbrook 4 Bed 5 Bath 1620sqft

RE/MAX House of Real Estate

24 Ypres Mews

Garrison Woods 3 Bed 4.5 Bath 2628sqft

Royal LePage Solutions

4929 20 St.

Altadore 4 Bed 3.5 Bath 1689sqft

Real Broker

“(Breanna) really did exactly what she promised to do. Thank you The A-Team for all your hard work and for making selling a home easy. ”.
 
- Rafal Wrobel
“During negotiations Breanna was a huge asset and her skill and knowledge really helped us get the best deal we could.”.
 
- Brendon V.
“Breanna was a dream to work with - knowledgeable, attentive, professional and organized. I really appreciate how she and Tom operate their business - 'integrity' is the word that comes to mind.”.
 
- Michele Hannay

Breanna
Albrecht