11 Beaupre Crescent NW | Bowness | Calgary

Pending

Pending

11 Beaupre Crescent | Bowness

Beds
3
Baths
1.0
Sqft
912
Lot Sqft
6,598
Year Built
1962
Days Listed
102
Type
Detached
Status
Pending
Garage
No
Foundation
See Details
Condo Fee
No
Price Change
None

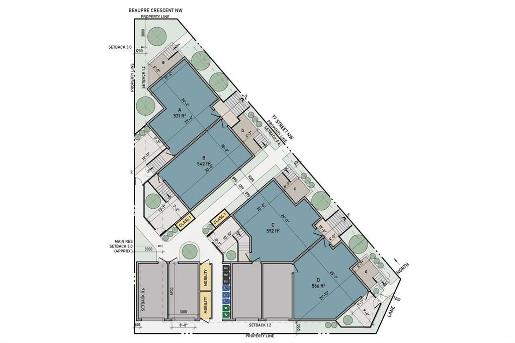
ATTENTION BUILDERS, DEVELOPERS, & INVESTORS - OVERSIZED CORNER LOT WITH DEVELOPMENT PERMIT DRAWINGS INCLUDED!! This is your chance to secure a huge, shovel-ready 6,598 R-CG sq ft corner lot in the heart of Bowness—directly across from a green space with a playground. Located in one of Calgary’s most popular communities, this site is just minutes to Bowness Park, local schools, transit, shopping, and offers quick access to downtown, WinSport, Stoney Trail, and the mountains. For those looking to break ground shortly after possession, this property comes with development permit plans (pending city approval) for an exciting 8-unit townhome project designed by CTZN Architecture. The plans offer a beautiful, striking exterior design and functional layouts—with every unit being a corner unit, maximizing natural light and privacy. The proposed development includes four 3-bed, 2.5-bath 2-storey upper units (two with an attached single garage each, and two with a detached single garage each), and four 1-bed, 1-bath lower units with separate entrances and private patios. The project will qualify for CMHC’s MLI Select program. Long a hidden gem in Calgary's inner city, Bowness is currently undergoing rapid redevelopment, including luxury single-family infills and townhome projects. Enjoy being just minutes from Bowness Road, which offers numerous options for shopping, dining, and other daily necessities. Local favourites include Salt & Pepper, Cadance Coffee, and Bow Cycle… to name a few! For nature lovers, this home is steps away from the Bow River Parks and Pathways. Plus, other nearby parks and amenities include Shouldice Park, Bowness Park, the Alberta Children's Hospital, Foothills Hospital, the University of Calgary, and WinSport. Bowness truly is a fantastic community for the outdoor-minded! Seize this prime redevelopment opportunity in a rapidly evolving community! Reach out today for more information! *DP plans have been submitted and are pending city approval.**Exterior render is for illustrative purposes only.

MLS ® #: A2246431
Listing Office: RE/MAX House of Real Estate
Date Listed: August 26, 2025 - 103 days on site
Last Updated: Dec 07, 2025 02:31am MST

$795,000

Details

Style:
bungalow

Interior:
see remarks

Exterior:
none

Lot:
back lane, corner lot

Parking/Garage:
off street

Frontage (feet):
120.02

Even More Details

Foundation:
block

Construction:
wood frame

Flooring:
carpet,laminate,linoleum

Roof:
asphalt shingle

Heating:
forced air,natural gas

Inclusions:
none

Room Sizes

Living Room

15`0" x 13`7"

Kitchen

13`2" x 11`7"

Bedroom - Primary

9`6" x 11`5"

Bedroom

7`8" x 11`5"

Bedroom

12`4" x 8`0"

4pc Bathroom

0`0" x 0`0"

Thoughtful | Loyal | Effective

Loving this home?

Breanna will call to discuss.

"I have never had a home purchase go as smoothly as this one" - Sarah Clark-Pickett

Similar Properties

47 North Bridges Garden

Bridges of Langdon 4 Bed 3.5 Bath 3190sqft

Real Broker

7032 78 St.

Silver Springs 5 Bed 3 Bath 1496sqft

IQ Real Estate Inc.

New

135 Autumn Close

Auburn Bay 3 Bed 3.5 Bath 2196sqft

Real Estate Professionals Inc.

Reduced

127 Canterbury Court

Canyon Meadows 3 Bed 3.5 Bath 1902sqft

eXp Realty

Reduced

53 Savanna Heath

Saddle Ridge 7 Bed 4.5 Bath 2699sqft

Royal LePage Benchmark

Pending

523 10 Ave.

Renfrew 4 Bed 2.5 Bath 1590sqft

eXp Realty

67 Setonstone Row

Seton 6 Bed 4.5 Bath 2160sqft

CIR Realty

New

68 Heritage Ridge

Heritage Hills 3 Bed 2.5 Bath 2374sqft

First Place Realty

Reduced

167 Springborough Way

Springbank Hill 4 Bed 3.5 Bath 1663sqft

RE/MAX Realty Professionals

“I think what sets Breanna apart is her genuine care for her clients.”.
 
- Shaun & Robyn Vey
“Breanna was a dream to work with - knowledgeable, attentive, professional and organized. I really appreciate how she and Tom operate their business - 'integrity' is the word that comes to mind.”.
 
- Michele Hannay
“She was extremely professional, knowledgeable, transparent and reliable through the whole process. It truly felt like having a friend on the "inside" working for us.”.
 
- Kevin and Sandie

Breanna
Albrecht