1117 Iron Ridge Ave. N | Crossfield | Crossfield

1117 Iron Ridge Avenue | Crossfield

Beds
2
Baths
2.0
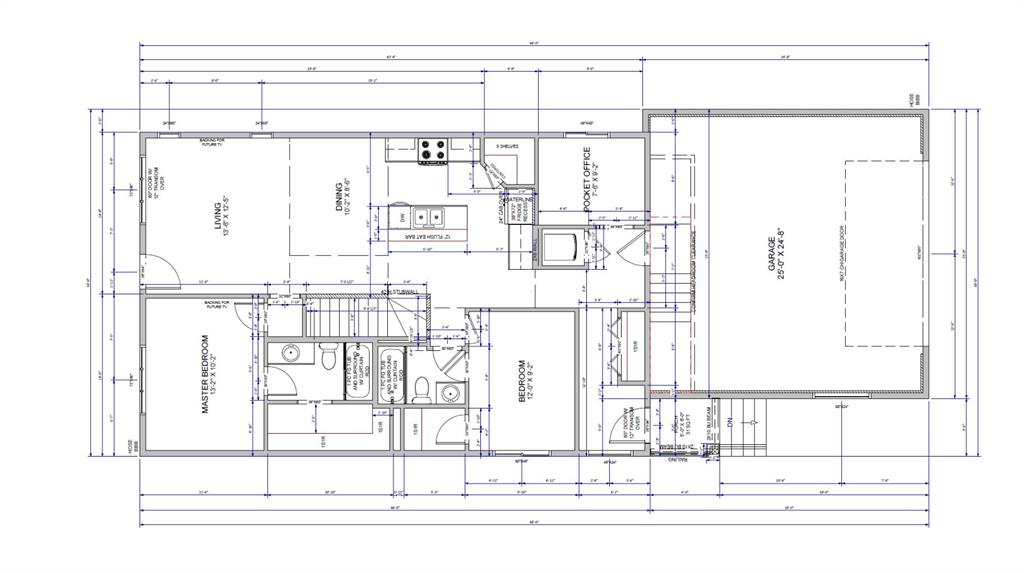
Sqft
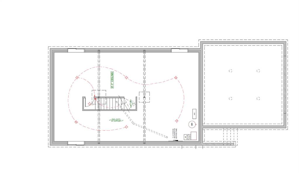
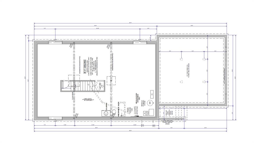
1,232
Lot Sqft
5,400
Year Built
2025
Days Listed
95
Type
Detached
Status
Active
Garage
Yes
Foundation
Concrete
Condo Fee
No
Price Change
-$21k, 10-Oct

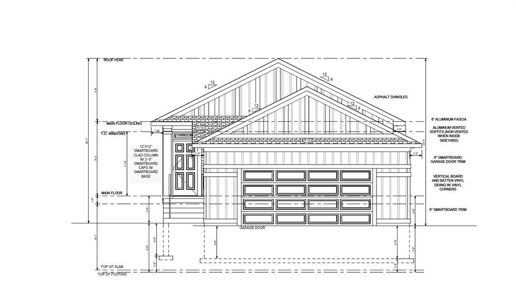
Welcome to 1117 Iron Ridge Avenue, located in the master-planned community of Iron Landing and built by Creation Communities. Featuring the POPLAR model , this one-of-a-kind 1,232 sq. ft. bungalow features 2 spacious bedrooms, a versatile office/den, and 2 full bathrooms, SIDE ENTRY , with the potential to develop the basement in the future for even more living space. Iron Landing is a thoughtfully designed community that blends comfort, affordability, and lifestyle, offering schools (Grades 1–12) within walking distance, interconnected pathways and green spaces, and recreation amenities including a baseball diamond, track, soccer field, skate park, and ice rink all nearby. Situated in the charming town of Crossfield, you’ll enjoy small-town living while staying connected with just a 40-minute drive to Downtown Calgary, 29 minutes to YYC International Airport, and 12 minutes to CrossIron Mills Mall. Don’t miss this opportunity to own an exceptional home at an incredible price in a community designed for families and growth.

MLS ® #: A2253391
Listing Office: CIR Realty
Date Listed: September 2, 2025 - 96 days on site
Last Updated: Dec 07, 2025 03:11am MST

$575,000

Details

Style:
bungalow

Garage Size:
2

Interior:
breakfast bar, no animal home, no smoking home, see remarks

Exterior:
private entrance, private yard

Lot:
back yard

Parking/Garage:
double garage attached

Frontage (feet):
40.00

Even More Details

Foundation:
poured concrete

Construction:
vinyl siding,wood frame

Flooring:
other

Roof:
asphalt shingle

Heating:
forced air

Inclusions:
n/a

Room Sizes

Office

7`6" x 9`2"

Bedroom

12`0" x 9`2"

Dining Room

10`2" x 8`6"

Bedroom - Primary

13`2" x 10`2"

Living Room

13`6" x 12`5"

3pc Ensuite bath

5`6" x 9`0"

3pc Bathroom

5`4" x 8`0"

Thoughtful | Loyal | Effective

Loving this home?

Breanna will call to discuss.

"The whole experience from start to finish was exactly what you look for when buying a house" - Makenzie Corcoran

Similar Properties

8 Lakewood Way

Lakewood 2 Bed 3 Bath 1754sqft

RE/MAX Key

208 Sagewood Landing

Sagewood 4 Bed 3.5 Bath 1881sqft

CIR Realty

Pending

57 Silverado Skies Drive

Silverado 3 Bed 2.5 Bath 2027sqft

Real Estate Professionals Inc.

714 Martindale Blvd.

Martindale 5 Bed 3.5 Bath 1751sqft

MaxWell Central

New

715 Copperpond Circle

Copperfield 4 Bed 3.5 Bath 1708sqft

eXp Realty

Open House

60 Mckenzie Lake Crescent

McKenzie Lake 3 Bed 2.5 Bath 1476sqft

eXp Realty

New

10916 Valley Springs Road

Valley Ridge 2 Bed 3.5 Bath 2049sqft

Real Estate Professionals Inc.

126 Howse Common

Livingston 3 Bed 2.5 Bath 1807sqft

Jayman Realty Inc.

Reduced

8 Everstone Rise

Evergreen 3 Bed 3.5 Bath 1869sqft

eXp Realty

“I never had to wait any length of time for her to answer my call or text. ”.
 
- Diane Elizabeth Gaulton
“The A Team helped us get our confidence back. But that was just the start. The hard work came after that. It hasn’t been easy and at times it has been extremely stressful but thank you to Breanna for her relentless hard work for her clients”.
 
- Louise Melvin
“During negotiations Breanna was a huge asset and her skill and knowledge really helped us get the best deal we could.”.
 
- Brendon V.

Breanna
Albrecht