191 Lucas Common NW | Livingston | Calgary

191 Lucas Common | Livingston

Beds
4 1
Baths
4.0
Sqft
2,301
Lot Sqft
4,305
Year Built
2022
Days Listed
53
Type
Detached
Status
Active
Garage
Yes
Foundation
Concrete
Condo Fee
No
Price Change
-$29k, 05-Nov

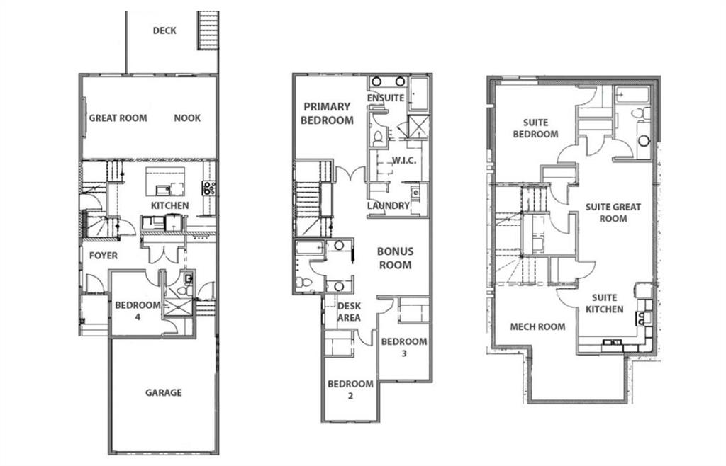
FORMER SHOW HOME ALERT | Nestled in the vibrant, family-friendly community of Livingston, this former Cedarglen Homes show home is the definition of style, function, and craftsmanship. Offering a fully developed legal basement suite, and designer upgrades at every turn, this home is truly one of a kind. Step inside and immediately feel the warmth and sophistication that define this property. The main floor features an open-concept layout with soaring 8' interior doors, glass railing, and luxury vinyl plank flooring that flows seamlessly throughout. The living room steals the spotlight with a vertical shiplap feature wall framing a tiled electric fireplace, creating the perfect blend of modern and cozy. The chef’s kitchen is both stunning and functional, showcasing quartz countertops, two-tone cabinetry, a large central island, and a full working kitchen for extra prep and storage. The dining nook opens onto your oversized deck, perfect for hosting summer BBQs or enjoying quiet mornings in the sun. A main floor bedroom and full bath offer flexibility for guests, an office, or multi-generational living. Upstairs, the design continues to impress. The primary retreat is a true sanctuary featuring a spa-inspired ensuite with a custom tiled shower, soaker tub with tile ledges, and dual sinks, all finished with quartz countertops. The walk-in closet connects directly to the laundry room, making everyday life effortless. Two additional bedrooms each feature their own walk-in closets, and a bonus room plus a built-in desk area provide the perfect spaces for work, play, or relaxation. The fully finished legal basement suite offers even more possibilities - complete with a separate kitchen, living area, bedroom, and full bathroom. This space is ideal for extended family, guests, or rental income. Every inch of this home reflects thoughtful design and quality finishes from upgraded hardware and lighting to its seamless blend of comfort and modern flair. Outside, enjoy your completed oversized deck, perfect for entertaining or taking in the peaceful surroundings of Livingston - one of Calgary’s most dynamic new communities. Residents here enjoy access to the Livingston Hub, a state-of-the-art community centre featuring a skating rink, splash park, gymnasium, tennis courts, and event spaces. You’ll also love the parks, pathways, and playgrounds woven throughout the neighbourhood, plus quick access to Stoney Trail and Deerfoot Trail. If you’ve been searching for a home that combines designer elegance, practical functionality, and unbeatable value, this is it. Move-in ready, meticulous craftsmanship, and absolutely stunning - this Cedarglen show home is ready to welcome its next owner. Book your private showing today and experience what life in Livingston has to offer.

MLS ® #: A2263852
Listing Office: Royal LePage Benchmark
Date Listed: October 14, 2025 - 54 days on site
Last Updated: Dec 07, 2025 12:30pm MST

$899,900

Details

Style:
2 storey

Garage Size:
2

Interior:
double vanity, kitchen island, no animal home, no smoking home, open floorplan, pantry, quartz counters, separate entrance, soaking tub, walk-in closet(s)

Exterior:
bbq gas line

Lot:
back yard, rectangular lot

Parking/Garage:
double garage attached

Frontage (feet):
33.37

Even More Details

Foundation:
poured concrete

Construction:
brick,vinyl siding

Flooring:
carpet,tile,vinyl plank

Roof:
asphalt shingle

Heating:
high efficiency

Inclusions:
suite appliances: dishwasher, electric oven, microwave hood fan, refrigerator, washer/dryer

Room Sizes

Bedroom

11`0" x 8`8"

3pc Bathroom

0`0" x 0`0"

Mud Room

10`11" x 5`0"

Kitchen With Eating Area

12`6" x 15`7"

Dining Room

14`0" x 11`8"

Living Room

14`0" x 11`10"

Bedroom

10`10" x 8`11"

Bedroom

9`7" x 8`8"

Den

6`0" x 9`0"

5pc Bathroom

0`0" x 0`0"

Bonus Room

13`3" x 12`11"

Laundry

5`7" x 9`11"

Bedroom - Primary

14`2" x 12`5"

5pc Ensuite bath

0`0" x 0`0"

Laundry

5`7" x 6`11"

Kitchenette

9`7" x 10`2"

Family Room

25`11" x 10`2"

4pc Bathroom

0`0" x 0`0"

Bedroom

13`3" x 11`2"

Thoughtful | Loyal | Effective

Loving this home?

Breanna will call to discuss.

"Would definitely recommend, especially for first-time homebuyers who need a little bit more guidance and help" - Jennifer Sine

Similar Properties

2018B 26A St.

Killarney/Glengarry 4 Bed 4.5 Bath 2613sqft

Real Estate Professionals Inc.

198 KINNIBURGH Crescent

Kinniburgh North 6 Bed 4.5 Bath 2847sqft

Real Broker

255075 Township Road 215A

NONE 3 Bed 3 Bath 1873sqft

RE/MAX Key

3419 19 St.

Charleswood 4 Bed 3 Bath 1116sqft

Royal LePage METRO

Pending

Reduced

2003 Christie Road

Charleswood 4 Bed 3 Bath 1094sqft

RE/MAX iRealty Innovations

1360 Shawnee Road

Shawnee Slopes 5 Bed 3.5 Bath 2830sqft

Jessica Chan Real Estate & Management Inc.

24 Highwood Drive

Wedderburn 5 Bed 3.5 Bath 2783sqft

RE/MAX Complete Realty

22 Cimarron Estates Gate

Cimarron Estates 4 Bed 4 Bath 2769sqft

RE/MAX First

218 15 Ave.

Crescent Heights 4 Bed 3.5 Bath 1945sqft

Century 21 Bravo Realty

“She was extremely professional, knowledgeable, transparent and reliable through the whole process. It truly felt like having a friend on the "inside" working for us.”.
 
- Kevin and Sandie
“We’ve dealt with dozens of REALTORS® and Breanna has exceeded all our expectations.”.
 
- Anna
“I never had to wait any length of time for her to answer my call or text. ”.
 
- Diane Elizabeth Gaulton

Breanna
Albrecht