1903 McCaskill Drive | Crossfield | Crossfield

1903 McCaskill Drive | Crossfield

Beds
3
Baths
2.5
Sqft
1,515
Lot Sqft
2,727
Year Built
2025
Days Listed
147
Type
Semi Detached (Half Duplex)
Status
Active
Garage
No
Foundation
Concrete
Condo Fee
No
Price Change
None

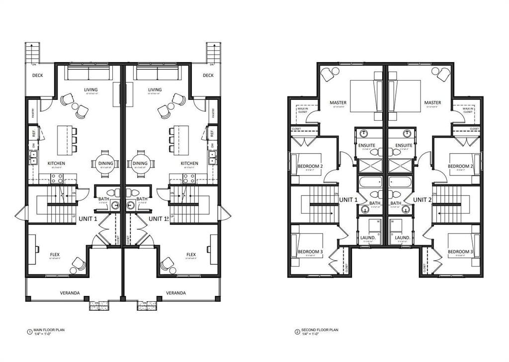
Quality new construction home built by a local Master Builder in Crossfield, who has lived in the community for 30+ years! Situated on what is arguably the best lot in this new development, this West facing end unit provides additional parking options and overlooks the baseball diamond and adjacent green space. Additionally, this location offers walking distance two schools, the local Community Centre and just minutes from the quaint downtown offering a multitude of amenities. This 3 bedroom, 3 bathroom semi-detached home spans over 1500 sq ft and features an open main floor layout. The Kitchen boasts abundant cabinetry, high-end appliances, and a beautiful, functional center island, ideal for extra counter space, homework, and entertaining guests. A patio door off the dining area leads directly to the deck and back yard, uncommonly found in this price point. This home has back lane access and a parking pad, a garage could still be added at an additional cost. Upstairs, the Primary Bedroom includes a walk-in closet and full ensuite bathroom. The two additional bedrooms are generously sized with convenient access to the centrally located main bathroom. Laundry is also conveniently located on this upper floor. Additionally, the home features side door access for private entry to the unfinished basement, allowing for additional future living space and includes bathroom rough-in. What sets this home apart is its construction by a Local Master Builder, employing Journeyman Tradesmen in all aspects of the build. These builders, along with their families, have been part of this community for multiple generations and take pride in constructing quality homes for local families. No expense has been spared in the use of upgraded materials during both the building process and the finishing touches. Features include Lux windows, stone countertops, upgraded plumbing fixtures and lighting fixtures, as well as higher-end appliances which includes the washer and dryer, also not a common inclusion. This home is currently under construction. There is still some opportunity for custom upgrades, if you act fast! The area size was calculated by applying the RMS to the blueprints provided by the builder.

MLS ® #: A2265832
Listing Office: Real Broker
Date Listed: October 22, 2025 - 147 days on site
Last Updated: Mar 18, 2026 10:05am MST

$499,000

Details

Style:
2 storey, attached-side by side

Interior:
kitchen island, walk-in closet(s)

Exterior:
none, private entrance

Lot:
level

Parking/Garage:
parking pad

Frontage (feet):
23.92

Even More Details

Taxes:
$0

Foundation:
poured concrete

Construction:
composite siding,vinyl siding,wood frame

Flooring:
laminate

Roof:
asphalt shingle

Heating:
forced air,natural gas

Inclusions:
n/a

Room Sizes

Dining Room

16`1" x 10`10"

Living Room

12`11" x 11`11"

Kitchen

12`5" x 10`2"

Flex Space

11`10" x 10`3"

Laundry

5`11" x 5`1"

Bedroom - Primary

14`6" x 12`11"

Bedroom

9`7" x 9`5"

Bedroom

10`3" x 9`5"

2pc Bathroom

5`2" x 5`0"

4pc Bathroom

7`11" x 5`1"

3pc Ensuite bath

9`2" x 5`5"

Thoughtful | Loyal | Effective

Loving this home?

Breanna will call to discuss.

"The A-Team are masters of their craft" - Jeremy Stewart

Similar Properties

1020 West Lakeview Drive

Chelsea_CH 4 Bed 3.5 Bath 1644sqft

Unison Realty Group Ltd.

New

288 Sora Terrace

Hotchkiss 3 Bed 2.5 Bath 1743sqft

TREC The Real Estate Company

5012 154 Ave.

Alpine Park 3 Bed 2.5 Bath 1704sqft

Bode Platform Inc.

224 River Heights Drive

Rivercrest 4 Bed 3.5 Bath 1588sqft

RE/MAX House of Real Estate

243 Kinniburgh Road

Kinniburgh North 3 Bed 2.5 Bath 1924sqft

CIR Realty

214 Lakewood Crescent

Lakewood 5 Bed 2.5 Bath 1491sqft

TREC The Real Estate Company

225 Dawson Wharf Road

Dawson's Landing 3 Bed 2.5 Bath 1635sqft

RE/MAX Crown

Pending

158 Ambleton Drive

Moraine 3 Bed 2.5 Bath 1774sqft

Real Broker

Reduced

264 Legacy Glen Parade

Legacy 3 Bed 2.5 Bath 1589sqft

MaxWell Canyon Creek

“Breanna was a dream to work with - knowledgeable, attentive, professional and organized. I really appreciate how she and Tom operate their business - 'integrity' is the word that comes to mind.”.
 
- Michele Hannay
“The A-Team sold our Condo when other REALTORS® couldn't.”.
 
- Colleen Bussey
“The A Team helped us get our confidence back. But that was just the start. The hard work came after that. It hasn’t been easy and at times it has been extremely stressful but thank you to Breanna for her relentless hard work for her clients”.
 
- Louise Melvin

Breanna
Albrecht