135 Creekview Gardens SW | Pine Creek | Calgary

Pending

Pending

135 Creekview Gardens | Pine Creek

Beds
3
Baths
2.5
Sqft
1,722
Lot Sqft
2,421
Year Built
2025
Days Listed
57
Type
Semi Detached (Half Duplex)
Status
Pending
Garage
No
Foundation
Concrete
Condo Fee
No
Price Change
-$20k, 26-Nov

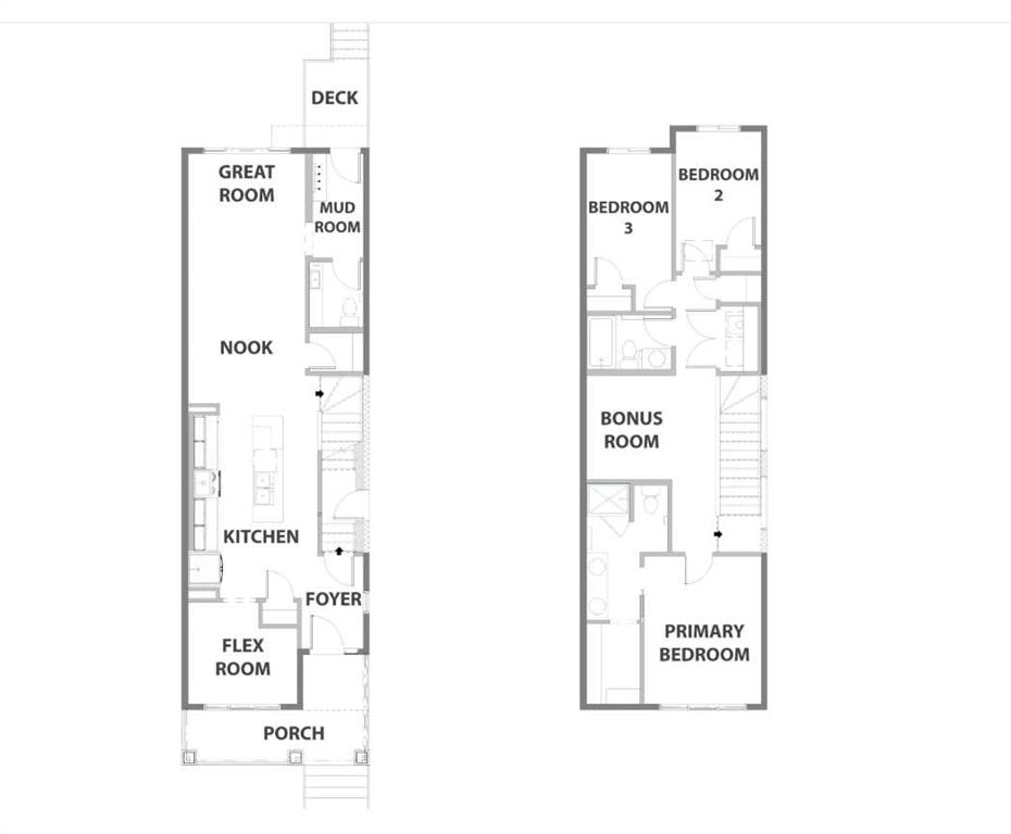
Where elevated design meets everyday ease, this is the home that will transform your routine into a retreat. Nestled in the dynamic and nature-rich community of CreekView, this Columbia 17 model by Cedarglen Homes is more than just a layout - it’s a lifestyle. From the first step inside, you’re welcomed by a sense of openness and warmth, as natural light floods the main living space, drawing you toward the expansive great room anchored at the back of the home. The heart of the home is the kitchen crafted for connection and elevated with two toned cabinetry, striking quartz countertops, designer hardware, and long subway tile backsplash. Whether you’re brewing coffee at the oversized island or entertaining guests for dinner, the space blends beauty and function seamlessly. Need a quiet space to work or play? A main floor flex room tucked at the front of the home offers just that - perfect as a home office, creative nook, or cozy playroom. Upstairs, the central bonus room brings the family together for movie marathons or game nights, while still offering a touch of separation between the bedrooms. The primary suite is your personal haven, spacious enough for king-sized furnishings and styled with a spa-inspired ensuite complete with double vanities, a tiled walk-in shower, and a generous walk-in closet. Two additional bedrooms, a chic full bathroom, and a dedicated laundry room complete the upper level with both style and practicality. The unfinished basement offers endless potential with a separate entrance and rough-ins completed for a legal suite (city approval and permits required). Whether you envision a rental suite, home gym, or entertainment area, this space is ready for your creativity. Outside, the brand-new backyard deck with a BBQ gas line is perfect for summer gatherings, and the $2,000 landscaping credit ensures you can personalize your front yard within the first year of ownership. Located in the picturesque CreekView community, this home provides the perfect balance of nature and convenience. Enjoy easy access to Township and Shawnessy Shopping Centres, Sirocco Golf Club, and scenic walking paths, all while being surrounded by lush green spaces. This is the perfect place to call home. Don’t miss out - book your private showing today! *Some photos are virtually staged.*

MLS ® #: A2267959
Listing Office: Royal LePage Benchmark
Date Listed: October 31, 2025 - 57 days on site
Last Updated: Dec 27, 2025 03:10am MST

$519,900

Details

Style:
2 storey, attached-side by side

Interior:
bathroom rough-in, double vanity, kitchen island, no animal home, no smoking home, open floorplan, pantry, quartz counters, separate entrance, walk-in closet(s)

Exterior:
bbq gas line

Lot:
back lane, back yard, rectangular lot

Parking/Garage:
alley access, off street, parking pad

Frontage (feet):
22.21

Even More Details

Foundation:
poured concrete

Construction:
brick,cement fiber board,vinyl siding

Flooring:
carpet,tile,vinyl plank

Roof:
asphalt shingle

Heating:
high efficiency

Inclusions:
$2500 appliance allowance to select fridge and stove at the builder's supplier.

Room Sizes

Den

9`2" x 9`10"

Kitchen With Eating Area

15`7" x 11`2"

Dining Room

10`7" x 8`3"

Living Room

14`7" x 10`7"

Mud Room

4`7" x 9`6"

2pc Bathroom

Bonus Room

11`9" x 9`5"

Bedroom - Primary

13`5" x 10`7"

4pc Ensuite bath

Laundry

5`11" x 3`6"

4pc Bathroom

Bedroom

7`9" x 12`0"

Bedroom

10`3" x 7`9"

Thoughtful | Loyal | Effective

Loving this home?

Breanna will call to discuss.

"Anyone would be hard-pressed to find any team that could go beyond the lengths that the A-Team went for us" - Jim Wood

Similar Properties

64 Red Embers Manor

Redstone 4 Bed 3.5 Bath 1599sqft

Nineteen 88 Real Estate

Reduced

1168 Mahogany Blvd.

Mahogany 3 Bed 2.5 Bath 1698sqft

Real Broker

243 Kinniburgh Road

Kinniburgh North 3 Bed 2.5 Bath 1924sqft

CIR Realty

Pending

96 Auburn Meadows Blvd.

Auburn Bay 4 Bed 3.5 Bath 1411sqft

Ally Realty

128 Evanston Hill

Evanston 3 Bed 2.5 Bath 1534sqft

URBAN-REALTY.ca

Pending

1329 Cornerstone Way

Cornerstone 4 Bed 3.5 Bath 1636sqft

CIR Realty

New

218 Cornerstone Ave.

Cornerstone 4 Bed 3.5 Bath 1590sqft

RE/MAX House of Real Estate

12 Red Embers Common

Redstone 3 Bed 3 Bath 1574sqft

RE/MAX First

Reduced

524 Heritage Blvd.

Heritage Hills 3 Bed 2.5 Bath 1895sqft

eXp Realty

“I think what sets Breanna apart is her genuine care for her clients.”.
 
- Shaun & Robyn Vey
“(Breanna) really did exactly what she promised to do. Thank you The A-Team for all your hard work and for making selling a home easy. ”.
 
- Rafal Wrobel
“Breanna was a dream to work with - knowledgeable, attentive, professional and organized. I really appreciate how she and Tom operate their business - 'integrity' is the word that comes to mind.”.
 
- Michele Hannay

Breanna
Albrecht