13 Creekview Manor SW | Pine Creek | Calgary

Pending

Pending

13 Creekview Manor | Pine Creek

Beds
3 1
Baths
3.5
Sqft
1,585
Lot Sqft
2,798
Year Built
2025
Days Listed
50
Type
Detached
Status
Pending
Garage
No
Foundation
Concrete
Condo Fee
No
Price Change
-$20k, 26-Nov

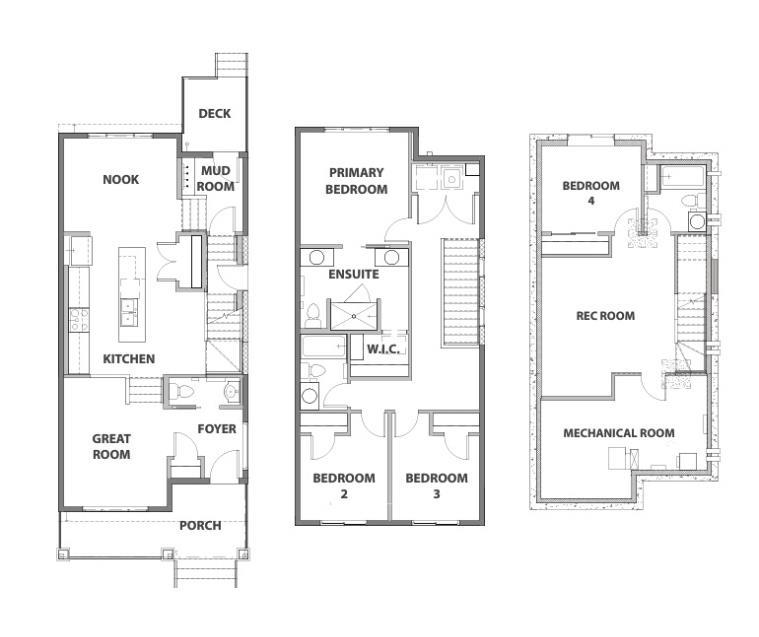
Welcome to the Strathcona by Cedarglen Homes - a home designed for those who crave connection, comfort, & a touch of everyday luxury. Nestled in Creekview, Calgary’s newest southwest community surrounded by natural beauty and modern convenience, this brand new 4 bedroom home delivers the perfect balance of function and sophistication. Step through the inviting covered front veranda, and you’re greeted by a warm, open-concept main floor that invites gathering. The great room at the front of the home sets the tone - bright, welcoming, and effortlessly stylish with soaring ceilings. At the heart of the home, the kitchen brings everyone together with its light cabinetry, quartz countertops, and striking black hardware. A large central island makes it easy to entertain while staying connected to the dining nook overlooking the backyard deck - perfect for summer barbecues and cozy weekend mornings. Everyday living feels effortless thanks to thoughtful details like the mudroom with built-in storage, the tucked away powder room, and the natural flow between kitchen, dining, and living spaces. Upstairs, the primary suite is your retreat - spacious, serene, & complete with a walk-in closet and spa-inspired ensuite featuring a fully tiled shower and dual sinks. Two additional bedrooms, a bright main bath, and a convenient flex area (great for a play space or desk) make this level as practical as it is peaceful. The finished basement adds incredible flexibility, offering a separate entrance, fourth bedroom, full bathroom and a versatile rec room - the perfect setup for guests, teens, or future suite potential (subject to city permits and approval). Modern finishes run throughout, from warm-toned vinyl plank flooring to the subway tile backsplash and stunning light fixtures creating a cohesive look that feels fresh and timeless. Outside, a finished deck with a gas line invites you to enjoy the sunshine and fresh air, while the stone façade on the front of the home adds instant curb appeal. With Cedarglen’s trusted craftsmanship, this home is a rare opportunity to own in one of Calgary’s most exciting new communities - where style meets simplicity and every detail is designed for real life. Live beautifully in Creekview. Just minutes from Macleod and Stoney Trail, this community offers effortless access to downtown, major shopping like Township Centre, and the surrounding communities of Silverado and Legacy for schools, dining, and recreation. Schedule your private showing today and discover why the Strathcona is more than a home - it’s your next chapter.

MLS ® #: A2269434
Listing Office: Royal LePage Benchmark
Date Listed: November 7, 2025 - 50 days on site
Last Updated: Dec 27, 2025 06:11am MST

$609,900

Details

Style:
2 storey

Interior:
double vanity, kitchen island, no animal home, no smoking home, open floorplan, quartz counters, separate entrance, tankless hot water, walk-in closet(s)

Exterior:
bbq gas line

Lot:
back lane, back yard, rectangular lot

Parking/Garage:
alley access, off street, parking pad

Frontage (feet):
25.43

Even More Details

Foundation:
poured concrete

Construction:
cement fiber board,stone,vinyl siding

Flooring:
carpet,tile,vinyl plank

Roof:
asphalt shingle

Heating:
high efficiency

Inclusions:
$3600 appliance allowance to be used and selected at the builder's supplier for the oven/stove and fridge.

Room Sizes

Kitchen With Eating Area

11`3" x 15`1"

Dining Room

9`11" x 11`11"

Mud Room

6`5" x 7`11"

Bedroom - Primary

11`5" x 12`0"

4pc Ensuite bath

0`0" x 0`0"

Bedroom

11`5" x 9`3"

Bedroom

11`4" x 9`3"

4pc Bathroom

0`0" x 0`0"

2pc Bathroom

0`0" x 0`0"

Living Room

10`11" x 13`8"

Family Room

14`1" x 14`5"

Bedroom

9`3" x 10`6"

4pc Bathroom

0`0" x 0`0"

Thoughtful | Loyal | Effective

Loving this home?

Breanna will call to discuss.

"We found the house that was perfect for us in record time and for a reasonable price" - Alishia Randall

Similar Properties

7207 7 St.

Kingsland 4 Bed 2 Bath 1118sqft

Synterra Realty

338 Rivercrest Road

Rivercrest 3 Bed 2.5 Bath 2070sqft

Real Broker

415 Taralake Way

Taradale 6 Bed 4 Bath 1460sqft

Five Star Realty

103 Copeland Close

NONE 3 Bed 3.5 Bath 1761sqft

Century 21 Bravo Realty

20 Nolancrest Green

Nolan Hill 3 Bed 3.5 Bath 2027sqft

Grand Realty

New

206 Pantego View

Panorama Hills 5 Bed 3.5 Bath 2044sqft

eXp Realty

1098 Copperfield Blvd.

Copperfield 4 Bed 3.5 Bath 1789sqft

RE/MAX Real Estate (Mountain View)

1176 Iron Ridge Ave.

NONE 4 Bed 2.5 Bath 2050sqft

4th Street Holdings Ltd.

40 Heritage Hill

Heritage Hills 3 Bed 2.5 Bath 1823sqft

Coldwell Banker United

“The A Team helped us get our confidence back. But that was just the start. The hard work came after that. It hasn’t been easy and at times it has been extremely stressful but thank you to Breanna for her relentless hard work for her clients”.
 
- Louise Melvin
“I never had to wait any length of time for her to answer my call or text. ”.
 
- Diane Elizabeth Gaulton
“She was extremely professional, knowledgeable, transparent and reliable through the whole process. It truly felt like having a friend on the "inside" working for us.”.
 
- Kevin and Sandie

Breanna
Albrecht