332 Wascana Crescent SE | Willow Park | Calgary

New

Open House

New

Open House

332 Wascana Crescent | Willow Park

Beds
3 1
Baths
2.5
Sqft
1,526
Lot Sqft
5,511
Year Built
1965
Days Listed
8
Type
Detached
Status
Active
Garage
Yes
Foundation
Concrete
Condo Fee
No
Price Change
None

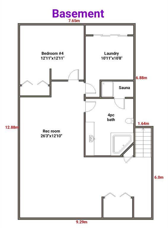
***Open House Sun Dec 7th 2-4pm**At the quiet heart of the community, this Willow Park bungalow showcases strong bones and exciting opportunities to update to your heart’s content. A tidily landscaped front yard and quality brickwork on the pathway and the home itself have a timeless appeal, and updates over the years have focused on function so you can simply add your personal aesthetic. Inside, a large entryway with a brick feature wall steps into a main floor with cool character elements and tons of natural light. The open concept living and dining room has big west-facing windows and statement exposed beams as well as a gas fireplace in a brick hearth – a few updates and you’ll have a gorgeous space with great visual style. In the kitchen, diner windows with an eating bar were added to connect the space to the living area, and an eat-up island with outlets makes multitasking prep and entertaining a breeze. Tons of counterspace and a pantry closet once again give you tons of options to make it your own without any major renovations. At the end of the hall, a spacious primary bedroom includes a two-piece ensuite and walk-in closet. There are two more bedrooms on this floor, along with the main bathroom in a great family layout. The walk-in linen closet is a rare find, and will impress the organizer of the household. A large mudroom provides access to the yard as well as a huge flex area or studio that could easily be used for a workspace, gym, or hobby space; complete with a wash station, a second gas fireplace, and a separate subpanel. French doors lead to the yard, adding convenience and sunlight. Downstairs, the basement is a retro blast from the past. The rec area has vintage built-in speakers, and a unique spa-style bathroom offers a sauna and a jetted tub as well as a separate shower and dual vanity. The non-conforming bedroom here is perfect for guests, and the utility room holds a laundry area with newer machines and a workbench. There is also plentiful storage on this level. This home includes central air conditioning and all new windows aside from the living room. Outside, the yard is a serene, treed paradise that feels very private and parklike. The patio is huge, so you can lounge, grill, and gather with room to spare. An irrigation system makes yard work easy, and the cedar fence is newer. The double-detached garage off the paved alley is well-set up with built-in shelving, workspace and a heater. The location of this home on the corner means you only have one direct neighbour. This community is known for its proximity to amenities, with nearby Macleod Trail providing shopping and dining options within minutes. In walking distance, Fairmount Place has a selection of shops, services, and restaurants at your doorstep. Schools and parks are also walkable, and the golf course is nearby as well. Set near several primary routes, everything you need is within a short drive, whether you’re commuting downtown, visit friends around the city, or running errands.

MLS ® #: A2272957
Listing Office: Real Broker
Date Listed: November 28, 2025 - 9 days on site
Last Updated: Dec 07, 2025 02:31am MST

$660,000

Open House

Sunday, Dec 07th
02:00PM - 04:00PM

Representation matters! If you'd prefer a private showing of this home, or would like a professional to accompany you to the open house, we can arrange it. That way, a representative present to look after your confidential information and your best interests. Just let us know!

Details

Style:
bungalow

Garage Size:
2

Interior:
beamed ceilings, breakfast bar, pantry, recessed lighting, sauna

Exterior:
awning(s), private yard

Lot:
back lane, corner lot, irregular lot, landscaped, private, see remarks, treed, yard lights

Parking/Garage:
alley access, double garage detached, garage faces rear, heated garage

Frontage (feet):
16.78

Even More Details

Foundation:
poured concrete

Construction:
brick,stucco,wood frame

Flooring:
carpet,laminate,linoleum

Roof:
asphalt shingle

Heating:
forced air

Inclusions:
sauna and jetted tub in "as is" condition.

Room Sizes

Living Room

25`2" x 12`0"

Kitchen With Eating Area

12`4" x 14`0"

2pc Ensuite bath

Bedroom - Primary

12`4" x 10`11"

Bedroom

11`0" x 8`11"

Bedroom

8`11" x 8`11"

4pc Bathroom

Flex Space

20`9" x 12`5"

Game Room

26`3" x 12`10"

Bedroom

12`11" x 12`11"

4pc Bathroom

Laundry

10`11" x 10`8"

Thoughtful | Loyal | Effective

Loving this home?

Breanna will call to discuss.

"This what made this experience exceptional: I wasn't dealing with a REALTOR®️ , I was working with family" - Waseem Khourieh

Similar Properties

54 North Bridges Road

Bridges of Langdon 2 Bed 2 Bath 1893sqft

CIR Realty

135 Homestead Common

Homestead 4 Bed 3 Bath 2141sqft

Sixty6 Real Estate

274 Howse Drive

Livingston 4 Bed 3.5 Bath 1898sqft

Real Broker

Reduced

363 Precedence Hill

Precedence 3 Bed 2.5 Bath 1839sqft

eXp Realty

217 coopers Grove

Coopers Crossing 5 Bed 3.5 Bath 2311sqft

URBAN-REALTY.ca

818 Edgefield St.

Edgefield 5 Bed 3.5 Bath 2390sqft

RE/MAX Key

Open House

1635 Baywater St.

Bayside 4 Bed 2.5 Bath 2252sqft

Engel & Völkers Calgary

Reduced

95 Carrington Close

Carrington 3 Bed 2.5 Bath 2381sqft

Real Broker

108 Walden Rise

Walden 3 Bed 2.5 Bath 2106sqft

Grand Realty

“I never had to wait any length of time for her to answer my call or text. ”.
 
- Diane Elizabeth Gaulton
“We’ve dealt with dozens of REALTORS® and Breanna has exceeded all our expectations.”.
 
- Anna
“The A-Team sold our Condo when other REALTORS® couldn't.”.
 
- Colleen Bussey

Breanna
Albrecht