21 Midridge Green SE | Midnapore | Calgary

New

New

21 Midridge Green | Midnapore

Beds
2 1
Baths
2.0
Sqft
1,040
Lot Sqft
4,101
Year Built
1978
Days Listed
3
Type
Detached
Status
Active
Garage
Yes
Foundation
Concrete
Condo Fee
No
Price Change
None

Tucked away on one of the quietest cul-de-sacs in the neighbourhood, this beautiful Keith built bungalow will check all the boxes in your search. With 3 bedrooms, 2 bathrooms, a fully finished basement, and a detached double garage, you'll have space to grow store all your belongings that you just can't part with. The main floor living room was a bedroom at one time and could easily be converted back to a bedroom or office. The kitchen has seen updates over the years with refinished oak cabinets, quartz counters and stainless-steel appliances. The hardwood floors are a bonus and will stand the test of time. With other recent updates like new windows on the main floor (2020), updated vinyl siding on the house and garage, two renovated bathrooms (2023) and a 2-year-old hot water tank, the list of jobs to complete will be minimal. The yard is amazing, and you can tell how much time and love has been poured into it. The perennials, arch ways, vines, huge deck, and privacy screen will make this space easy to maintain, and even better to enjoy your time in soaking in the west sun and watching the sun set. We really couldn’t be more excited about this gorgeous house on this perfect cul-de-sac. Only steps to Fish Creek Park, Midnapore Lake, and the neighbourhood schools. We’d love to accommodate your showing needs and invite you to come check out this amazing bungalow in Midnapore!

MLS ® #: A2273365
Listing Office: RE/MAX Landan Real Estate
Date Listed: December 3, 2025 - 4 days on site
Last Updated: Dec 06, 2025 10:32am MST

$624,900

Details

Style:
bungalow

Garage Size:
2

Interior:
storage, wet bar

Exterior:
private entrance, private yard

Lot:
back lane, back yard, cul-de-sac, landscaped, private, zero lot line

Parking/Garage:
alley access, double garage detached, garage door opener, garage faces rear

Frontage (feet):
40.52

Even More Details

Foundation:
poured concrete

Construction:
brick

Flooring:
carpet,hardwood,tile

Roof:
asphalt shingle

Heating:
forced air

Inclusions:
none

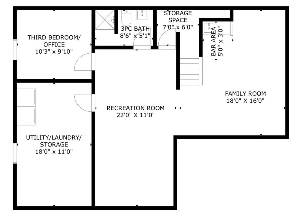
Room Sizes

Bedroom - Primary

13`3" x 11`0"

Bedroom

11`0" x 7`11"

3pc Bathroom

7`5" x 4`11"

Living Room

18`10" x 12`0"

Bedroom

10`3" x 9`2"

3pc Bathroom

8`6" x 5`1"

Thoughtful | Loyal | Effective

Loving this home?

Breanna will call to discuss.

"Anyone would be hard-pressed to find any team that could go beyond the lengths that the A-Team went for us" - Jim Wood

Similar Properties

408 Rainbow Falls Way

Rainbow Falls 4 Bed 3 Bath 2019sqft

RE/MAX Key

4604 Marwood Way

Marlborough 5 Bed 2.5 Bath 1347sqft

RE/MAX Key

229 Kingsbury Close

Kings Heights 5 Bed 4 Bath 2049sqft

RE/MAX First

New

117 Speargrass Close

NONE 3 Bed 3 Bath 1407sqft

Bode Platform Inc.

85 Boulder Creek Manor

Boulder Creek Estates 4 Bed 2.5 Bath 2111sqft

MaxWell Gold

520 Kingsmere Way

Kings Heights 4 Bed 3.5 Bath 2134sqft

Real Broker

Reduced

290 Chaparral Valley Terrace

Chaparral 3 Bed 2.5 Bath 2153sqft

Century 21 Masters

111 Chinook Winds Manor

Chinook Gate 3 Bed 3 Bath 2145sqft

Manor Real Estate Ltd.

5307 7 Ave.

Westgate 5 Bed 2 Bath 1323sqft

Royal LePage Blue Sky

“Breanna was a dream to work with - knowledgeable, attentive, professional and organized. I really appreciate how she and Tom operate their business - 'integrity' is the word that comes to mind.”.
 
- Michele Hannay
“(Breanna) really did exactly what she promised to do. Thank you The A-Team for all your hard work and for making selling a home easy. ”.
 
- Rafal Wrobel
“The A-Team sold our Condo when other REALTORS® couldn't.”.
 
- Colleen Bussey

Breanna
Albrecht