328 Southwinds Blvd. SW | South Windsong | Airdrie

New

New

328 Southwinds Boulevard | South Windsong

Beds
3
Baths
2.5
Sqft
1,503
Lot Sqft
1,728
Year Built
2026
Days Listed
0
Type
Row/Townhouse
Status
Active
Garage
Yes
Foundation
Concrete
Condo Fee
No
Price Change
None

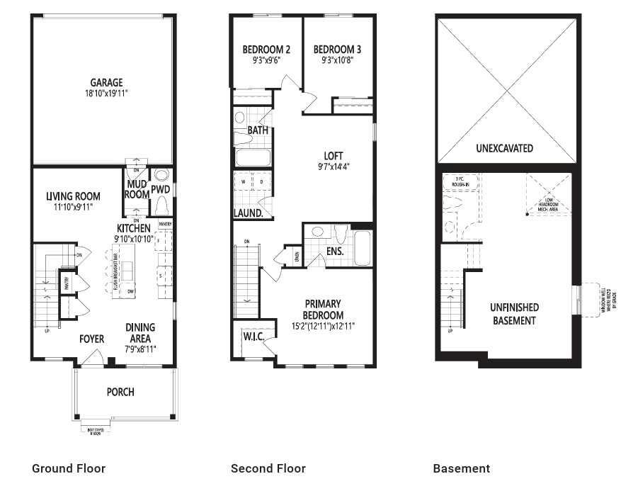
The Ripley End’s large front porch is a welcoming refuge to greet friends and connect with the neighborhood. This open concept living space creates the ultimate entertaining and family environment. A stunning kitchen with a quartz island breakfast bar invites everyone to pull up a chair, and a large living room offers extra space to hang out and relax. Upstairs, you'll find a conveniently located laundry room, a linen closet, a full bath, and a bright, spacious loft. Relax in the large primary bedroom, featuring a double hanging walk-in closet and an ensuite. Enjoy the convenience of a double attached garage, the energy savings of 8 solar panels and the freedom of no condo fees. More parking, more savings, and more privacy -without the extra monthly costs.

MLS ® #: A2274496
Listing Office: Bode Platform Inc.
Date Listed: December 9, 2025 - 1 days on site
Last Updated: Dec 09, 2025 11:31am MST

$483,990

Details

Style:
2 storey

Garage Size:
2

Interior:
bathroom rough-in, kitchen island, no animal home, no smoking home, quartz counters, walk-in closet(s)

Exterior:
none

Lot:
back lane

Parking/Garage:
double garage attached

Frontage (feet):
19.85

Even More Details

Foundation:
poured concrete

Construction:
wood frame

Flooring:
carpet,vinyl plank

Roof:
asphalt shingle

Heating:
forced air,natural gas

Inclusions:
n/a

Room Sizes

Dining Room

7`9" x 8`11"

Kitchen

9`10" x 10`10"

Living Room

11`10" x 9`11"

2pc Bathroom

Bedroom - Primary

15`2" x 12`11"

4pc Ensuite bath

Loft

9`7" x 14`4"

4pc Bathroom

Bedroom

9`3" x 9`6"

Bedroom

9`3" x 10`8"

Thoughtful | Loyal | Effective

Loving this home?

Breanna will call to discuss.

"I have never had a home purchase go as smoothly as this one" - Sarah Clark-Pickett

Similar Properties

Reduced

3131 63 Ave. #203

Lakeview 3 Bed 2.5 Bath 1675sqft

Century 21 Masters

1708 19 Ave.

Bankview 2 Bed 2.5 Bath 1200sqft

Century 21 Bravo Realty

2318 17 St. #59

Inglewood 4 Bed 2.5 Bath 1414sqft

Century 21 Bamber Realty LTD.

21 Sora Gate

Hotchkiss 3 Bed 2.5 Bath 1471sqft

eXp Realty

1186 148 Ave.

Carrington 3 Bed 2.5 Bath 1530sqft

MaxWell Capital Realty

Reduced

157 Mahogany Gardens

Mahogany 3 Bed 2.5 Bath 1660sqft

Jayman Realty Inc.

85 Royal Elm Green

Royal Oak 2 Bed 2.5 Bath 1442sqft

RE/MAX House of Real Estate

607 Mahogany Road

Mahogany 3 Bed 2.5 Bath 1664sqft

Jayman Realty Inc.

2231 81st St. #144

Springbank Hill 2 Bed 2.5 Bath 1400sqft

CIR Realty

“The A Team helped us get our confidence back. But that was just the start. The hard work came after that. It hasn’t been easy and at times it has been extremely stressful but thank you to Breanna for her relentless hard work for her clients”.
 
- Louise Melvin
“(Breanna) really did exactly what she promised to do. Thank you The A-Team for all your hard work and for making selling a home easy. ”.
 
- Rafal Wrobel
“She was extremely professional, knowledgeable, transparent and reliable through the whole process. It truly felt like having a friend on the "inside" working for us.”.
 
- Kevin and Sandie

Breanna
Albrecht