82 Ridge View Place | River Song | Cochrane

New

Open House

New

Open House

82 Ridge View Place | River Song

Beds
4
Baths
3.5
Sqft
2,577
Lot Sqft
5,046
Year Built
2012
Days Listed
2
Type
Detached
Status
Active
Garage
Yes
Foundation
Concrete
Condo Fee
No
Price Change
None

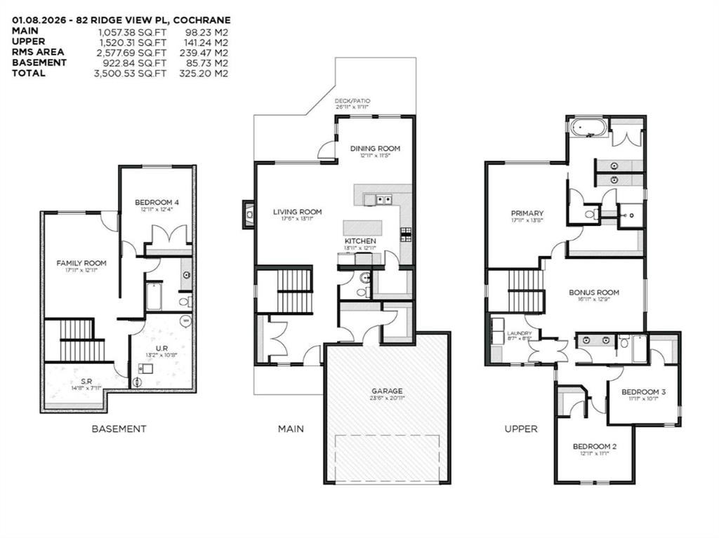
-- OPEN HOUSE SUNDAY 12:00PM - 3:00PM -- Located near the very end of one of Cochrane’s most desirable streets, this exceptional 2012 built walkout home offers 2,571 sq. ft. above grade plus a fully finished walkout basement, backing directly onto a treed Environmental Reserve with NO NEIGHBOURS BEHIND. With direct access to the pathway system and miles of scenic walking paths leading toward the Bow River, this setting delivers privacy, nature, and lifestyle rarely found together. The home offers a welcoming sense of arrival with a covered front porch and an oversized garage featuring high ceilings, built-in cabinetry, and shelving. Inside, the open-concept main floor showcases 9’ ceilings, designer maple flooring, and a spacious living room anchored by a gas fireplace with mantle. The U-shaped kitchen is both elegant and functional, featuring granite countertops, a large island, Stainless Steel appliances, a gas cooktop, and a BBQ gas line, perfect for entertaining. A dedicated mudroom adds everyday convenience. Upstairs, a large bonus room with an electric fireplace separates the children’s wing from the primary retreat. The primary bedroom enjoys peaceful, treed views and features a luxurious ensuite with his & hers granite vanities, soaker tub, separate shower. The main bath offers double under-mount sinks, granite countertops. Secondary bedrooms are generous in size, one with corner windows and a walk-in closet. A tiled laundry room with cabinetry and a double-sided linen closet completes the upper level. The fully finished walkout basement features 9’ ceilings, a comfortable recreation/lounge area, a 4th bedroom, and a full bathroom, providing excellent flexibility for guests or growing families. Additional highlights include a dual-zone furnace, two air-conditioning units, central vacuum rough-in. Outdoor living is equally impressive with a large deck, incredible views, a walkout-level patio with brick walkway, landscaped yard, outdoor shed, and a high-end 2020 Hot Spring hot tub, perfectly positioned to enjoy the surrounding natural beauty year-round. This is a rare opportunity to own a walkout home with privacy, views, and direct access to nature in one of Cochrane’s most coveted locations.

MLS ® #: A2274936
Listing Office: eXp Realty
Date Listed: January 9, 2026 - 2 days on site
Last Updated: Jan 11, 2026 07:29am MST

$1,025,000

Open House

Sunday, Jan 11th
12:00PM - 03:00PM

Representation matters! If you'd prefer a private showing of this home, or would like a professional to accompany you to the open house, we can arrange it. That way, a representative present to look after your confidential information and your best interests. Just let us know!

Details

Style:
2 storey

Garage Size:
2

Interior:
breakfast bar, granite counters, high ceilings, kitchen island, open floorplan, pantry, soaking tub, walk-in closet(s)

Exterior:
bbq gas line

Lot:
back yard, backs on to park/green space, cul-de-sac, environmental reserve, front yard, landscaped, no neighbours behind, street lighting, treed, views

Parking/Garage:
double garage attached, oversized

Frontage (feet):
0.00

Even More Details

Foundation:
poured concrete

Construction:
cement fiber board,concrete,wood frame

Flooring:
carpet,laminate,tile

Roof:
asphalt shingle

Heating:
forced air,natural gas

Inclusions:
hot spring hot tub, outdoor shed, tv wall mount(s), central vacuum rough-in, garage door opener, garage control(s), cabinet in garage, electric fireplace in bonus room, 2 x air conditioners

Room Sizes

Bedroom - Primary

17`11" x 13`8"

Bedroom

12`11" x 11`1"

Bedroom

11`11" x 10`1"

Bedroom

12`11" x 12`4"

2pc Bathroom

5`4" x 5`2"

4pc Bathroom

9`6" x 8`1"

5pc Bathroom

12`1" x 4`11"

5pc Ensuite bath

18`4" x 12`11"

Kitchen

13`11" x 12`11"

Dining Room

12`11" x 11`5"

Living Room

17`6" x 13`11"

Bonus Room

16`11" x 12`9"

Family Room

17`11" x 12`11"

Laundry

8`7" x 8`5"

Furnace/Utility Room

13`2" x 10`8"

Storage

14`8" x 7`11"

Thoughtful | Loyal | Effective

Loving this home?

Breanna will call to discuss.

"Anyone would be hard-pressed to find any team that could go beyond the lengths that the A-Team went for us" - Jim Wood

Similar Properties

218 8A St.

Bridgeland/Riverside 3 Bed 3 Bath 1705sqft

Real Estate Professionals Inc.

60 Cranarch Rise

Cranston 4 Bed 3.5 Bath 2424sqft

Real Broker

New

3449 Lane Crescent

Lakeview 4 Bed 2.5 Bath 1569sqft

RE/MAX Complete Realty

49 Auburn Springs Place

Auburn Bay 4 Bed 3.5 Bath 2511sqft

First Place Realty

New

5135 48 St.

Varsity 6 Bed 4 Bath 1853sqft

Homecare Realty Ltd.

New

810 Wentworth Place

West Springs 4 Bed 3.5 Bath 2233sqft

RE/MAX House of Real Estate

834 Alpine Drive

Alpine Park 6 Bed 3.5 Bath 2480sqft

Homecare Realty Ltd.

1176 Cranbrook Gardens

Cranston 4 Bed 3.5 Bath 2402sqft

RE/MAX First

514 30 St.

Parkdale 4 Bed 2 Bath 853sqft

RE/MAX House of Real Estate

“During negotiations Breanna was a huge asset and her skill and knowledge really helped us get the best deal we could.”.
 
- Brendon V.
“Breanna was a dream to work with - knowledgeable, attentive, professional and organized. I really appreciate how she and Tom operate their business - 'integrity' is the word that comes to mind.”.
 
- Michele Hannay
“A lot of people viewed the movie and pictures within the first 24 hours and I believe we had around 10 showings within the first two days.”.
 
- Gerald Lichti

Breanna
Albrecht