46 Herron Common NE | Livingston | Calgary

New

New

46 Herron Common | Livingston

Beds
4
Baths
3.5
Sqft
1,952
Lot Sqft
2,825
Year Built
2025
Days Listed
-0
Type
Detached
Status
Active
Garage
Yes
Foundation
Concrete
Condo Fee
No
Price Change
None

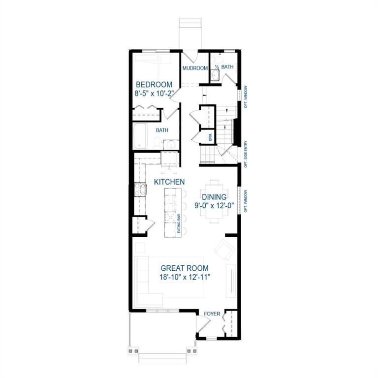
An incredible opportunity to own a brand-new home with a DOUBLE DETACHED GARAGE and IMMEDIATE POSSESSION in the desirable new community of Livingston. This bright and sunny home is situated on a northwest-facing lot, allowing natural light to pour through the main level throughout the day. Offering 4 bedrooms, 3.5 bathrooms, two living areas, and an undeveloped basement with a private side entrance, this property is ideal for investors, multi-generational living, or families looking for space to grow. Built by Brookfield Residential, the Oxford model is a beautifully designed home with nearly 2,000 sq. ft. of developed living space above grade. The open-concept main floor features 9-foot ceilings, extended-height cabinetry, and a large central island with a gourmet kitchen package that includes a chimney-style hood fan and built-in wall oven and microwave. The spacious great room is filled with natural light and is perfect for both everyday living and entertaining. A main floor bedroom with its own full ensuite adds excellent flexibility for guests, extended family, or a private home office. Durable and stylish luxury vinyl plank and tile flooring flow throughout the main level, making the home well suited for families with children and pets. Upstairs, a central bonus room separates the primary suite from the secondary bedrooms, creating a thoughtful and functional layout. The primary bedroom features a well-appointed ensuite with dual sinks and a walk-in shower. Two additional bedrooms, a full bathroom, and a dedicated laundry room complete the upper level. The basement is undeveloped and ready for your design ideas, with direct access from a private side entrance offering excellent future potential. Completing the property is a brand-new double detached garage to keep your vehicles clean, warm, and secure year-round, along with a private backyard to enjoy. This home is brand new and comes backed by both the builder warranty and the Alberta New Home Warranty, offering peace of mind for years to come. The Oxford truly offers it all with 4 bedrooms including a main floor bedroom, 3.5 bathrooms, two living spaces, and a flexible layout designed to meet a wide range of needs.

MLS ® #: A2275705
Listing Office: Charles
Date Listed: December 19, 2025 - 0 days on site
Last Updated: Dec 19, 2025 12:29pm MST

$662,500

Details

Style:
2 storey

Garage Size:
2

Interior:
double vanity, kitchen island, no animal home, no smoking home, open floorplan, pantry, primary downstairs, quartz counters, vinyl windows

Exterior:
bbq gas line, private entrance, private yard

Lot:
back lane, back yard

Parking/Garage:
double garage detached

Frontage (feet):
25.33

Even More Details

Foundation:
poured concrete

Construction:
wood frame

Flooring:
carpet,tile,vinyl

Roof:
asphalt shingle

Heating:
forced air

Inclusions:
none

Room Sizes

Great Room

18`10" x 12`11"

Dining Room

9`0" x 12`0"

Bedroom

8`5" x 10`2"

4pc Ensuite bath

2pc Bathroom

Bonus Room

13`3" x 12`2"

Bedroom - Primary

12`7" x 13`0"

4pc Ensuite bath

Bedroom

9`4" x 10`11"

Bedroom

9`2" x 10`11"

4pc Bathroom

Laundry

Thoughtful | Loyal | Effective

Loving this home?

Breanna will call to discuss.

"This what made this experience exceptional: I wasn't dealing with a REALTOR®️ , I was working with family" - Waseem Khourieh

Similar Properties

704 Creekstone Circle

Pine Creek 4 Bed 3.5 Bath 1885sqft

Real Broker

New

1402 Bayview Crescent

Bayview 2 Bed 2.5 Bath 1102sqft

Bode Platform Inc.

54 North Bridges Road

Bridges of Langdon 2 Bed 2 Bath 1893sqft

CIR Realty

105 Corner Glen Green

Cornerstone 4 Bed 3 Bath 1901sqft

Ally Realty

Pending

450 Corner Glen Way

Cornerstone 4 Bed 3 Bath 2632sqft

Jayman Realty Inc.

142 West Pointe Circle

West Pointe 3 Bed 3.5 Bath 1961sqft

GRASSROOTS REALTY GROUP

New

271 Chelsea Heath

Chelsea_CH 4 Bed 3.5 Bath 2138sqft

CIR Realty

72 Lewisburg Close

Lewisburg 3 Bed 2.5 Bath 2346sqft

CIR Realty

135 Huxland Road

5 Bed 3.5 Bath 1823sqft

Bode Platform Inc.

“The A-Team sold our Condo when other REALTORS® couldn't.”.
 
- Colleen Bussey
“During negotiations Breanna was a huge asset and her skill and knowledge really helped us get the best deal we could.”.
 
- Brendon V.
“I think what sets Breanna apart is her genuine care for her clients.”.
 
- Shaun & Robyn Vey

Breanna
Albrecht