77 Sage Hill Crescent NW | Sage Hill | Calgary

Reduced

Reduced

77 Sage Hill Crescent | Sage Hill

Beds
4 1
Baths
3.5
Sqft
2,419
Lot Sqft
3,584
Year Built
2022
Days Listed
23
Type
Detached
Status
Active
Garage
Yes
Foundation
Concrete
Condo Fee
No
Price Change
-$30k, 21-Jan

Step into this exceptional 2022-built Calbridge home and experience immediate comfort and sophistication. A covered front walkway leads to an inviting entry featuring durable luxury vinyl plank flooring and impressive 9-foot ceilings that create an expansive, airy atmosphere throughout the main level. The front office/den offers an ideal space for remote work or homework, while the stylish kitchen serves as the heart of the home. It boasts elegant two-tone cabinetry, sleek quartz countertops, a generous central island, full-height upper cabinets, premium stainless steel appliances, a striking feature hood fan, under-cabinet lighting, and a gas range—perfect for both everyday family meals and effortless entertaining. Adjacent, the spacious living room features a cozy fireplace, pot lights, and a knockdown stipple ceiling, flowing seamlessly into a large eating nook that can easily function as a formal dining area. A walk-through pantry provides abundant storage, and the thoughtfully designed mudroom connects to the garage, complete with space for an extra refrigerator, freezer, and coat storage for maximum functionality. Upstairs, a rare and expansive bonus room separates the luxurious master suite from the three additional bedrooms. Bathed in abundant natural light, this level also includes convenient upper-level laundry facilities with extra storage. The oversized master bedroom easily accommodates a king-size bed and opens to a spa-like ensuite featuring dual sinks, a separate soaker tub, a separate shower, and an expansive walk-in closet. The three secondary bedrooms are generously proportioned—each comfortably fitting queen-size beds with plenty of remaining space—and share easy access to a full bathroom. The professionally finished basement by Calbridge Homes includes a large recreation room, ample storage, an additional bedroom, and another full bathroom. This home is equipped with modern comforts such as central air conditioning and numerous upgrades throughout. Backing directly onto a charming children's park, the backyard feels like a natural extension of your private outdoor space. Situated on a quiet street in the highly desirable community of Sage Hill, this residence offers unparalleled convenience—within easy walking distance to grocery stores, restaurants, banks, and a wide array of amenities. A truly turn-key opportunity in one of Calgary's most sought-after northwest communities.

MLS ® #: A2277200
Listing Office: RE/MAX Realty Professionals
Date Listed: January 6, 2026 - 23 days on site
Last Updated: Jan 29, 2026 01:29am MST

$899,900

Details

Style:
2 storey

Garage Size:
2

Interior:
breakfast bar, ceiling fan(s), closet organizers, double vanity, kitchen island, no smoking home, open floorplan, pantry, soaking tub, walk-in closet(s)

Exterior:
none

Lot:
back yard, backs on to park/green space, landscaped, low maintenance landscape, rectangular lot, street lighting

Parking/Garage:
concrete driveway, double garage attached, front drive, garage door opener, garage faces front

Frontage (feet):
32.15

Even More Details

Foundation:
poured concrete

Construction:
stone,vinyl siding,wood frame

Flooring:
carpet,ceramic tile,vinyl plank

Roof:
asphalt shingle

Heating:
fireplace(s),forced air,natural gas

Inclusions:
n/a

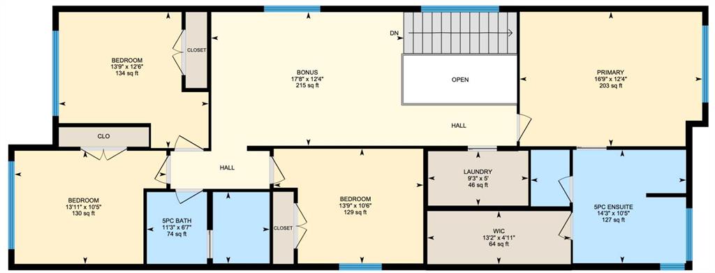
Room Sizes

Office

9`5" x 6`8"

Kitchen

14`6" x 12`0"

Pantry

5`2" x 4`11"

Mud Room

8`2" x 7`5"

Living Room

14`0" x 13`0"

Dining Room

15`6" x 9`11"

2pc Bathroom

4`11" x 4`11"

Foyer

9`4" x 4`8"

Bedroom - Primary

16`9" x 12`4"

Walk-In Closet

13`2" x 4`11"

5pc Ensuite bath

14`3" x 10`5"

Bedroom

13`11" x 10`5"

Bedroom

13`9" x 12`6"

Bedroom

13`9" x 10`6"

5pc Bathroom

11`3" x 6`7"

Bonus Room

17`8" x 12`4"

Laundry

9`3" x 5`0"

Family Room

22`5" x 21`9"

Bedroom

12`7" x 10`3"

Walk-In Closet

5`4" x 4`3"

Storage

4`6" x 4`2"

4pc Bathroom

8`10" x 5`1"

Furnace/Utility Room

18`0" x 7`9"

Storage

6`8" x 3`4"

Thoughtful | Loyal | Effective

Loving this home?

Breanna will call to discuss.

"I couldn't ask for a better REALTOR ®️ team to help us buy our first home" - S. Stoyles

Similar Properties

Reduced

11 Black Bear Lane

Square Butte 4 Bed 3 Bath 2171sqft

TREC The Real Estate Company

38 Yarrow Gate

Harmony 5 Bed 3.5 Bath 2376sqft

Bode Platform Inc.

31 Lynx Lane

Springbank Links 4 Bed 3.5 Bath 2055sqft

Houston Realty.ca

New

100 Corner Glen Manor

Cornerstone 5 Bed 3 Bath 2598sqft

First Place Realty

Open House

223 Kinniburgh Loop

Kinniburgh South 4 Bed 4 Bath 3280sqft

Real Broker

227 Tuscany Glen Park

Tuscany 5 Bed 3.5 Bath 2363sqft

Real Broker

107 40 Ave.

Highland Park 4 Bed 3.5 Bath 1219sqft

Royal LePage Benchmark

Reduced

202 Cooperstown Lane

Coopers Crossing 5 Bed 3.5 Bath 2680sqft

RE/MAX Rocky View Real Estate

66 Belmont Manor

Belmont 6 Bed 3.5 Bath 2502sqft

Real Broker

“Breanna was a dream to work with - knowledgeable, attentive, professional and organized. I really appreciate how she and Tom operate their business - 'integrity' is the word that comes to mind.”.
 
- Michele Hannay
“(Breanna) really did exactly what she promised to do. Thank you The A-Team for all your hard work and for making selling a home easy. ”.
 
- Rafal Wrobel
“The A Team helped us get our confidence back. But that was just the start. The hard work came after that. It hasn’t been easy and at times it has been extremely stressful but thank you to Breanna for her relentless hard work for her clients”.
 
- Louise Melvin

Breanna
Albrecht