21 Cornerbrook Lane NE | Cornerstone | Calgary

21 Cornerbrook Lane | Cornerstone

Beds
4
Baths
3.0
Sqft
1,567
Lot Sqft
4,596
Year Built
2025
Days Listed
45
Type
Semi Detached (Half Duplex)
Status
Active
Garage
No
Foundation
Concrete
Condo Fee
No
Price Change
None

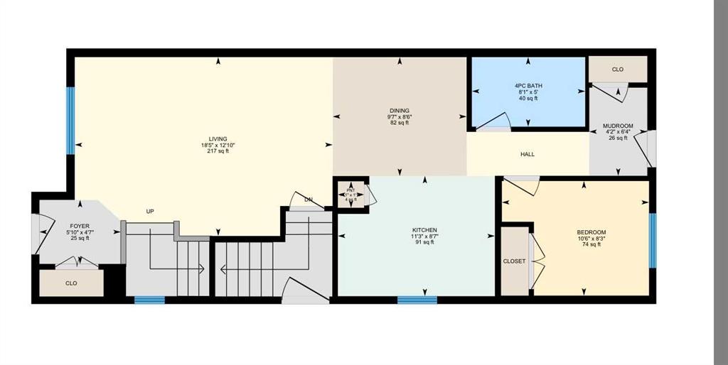
PRICED TO SELL!!! 2025 built ! MAIN FLOOR BEDROOM ! MAIN FLOOR FULL WASHROOM ! SEPRATE ENTRANCE TO BASEMENT ! PIE SHAPE LOT! 5 PIECES WASHROOM WITH JACCUZI TUB, DOUBLE SINK AND STANDING SHOWER! STAINLESS STEEL SAMSUNG APPLIANCES !! BRAND NEW WINDOW BLINDS!! Welcome to 2025 Built stunning 4-BEDROOM, 3 FULL BATHROOM fully upgraded semi-detached home, ideally situated on one of the largest pie-shaped corner lot in the desirable community of Cornerstone, Calgary. Offering an exceptionally large yard with enough space to potentially accommodate a triple garage. Thoughtfully designed with both style and functionality in mind, this home provides an abundance of space, modern finishes, and exceptional upgrades. The main floor boasts 9 ft ceilings and a bright open-concept layout filled with natural light. The contemporary kitchen is beautifully appointed with quartz countertops throughout, upgraded cabinetry, and Samsung stainless steel appliances, making it a true highlight of the home. A main floor BEDROOM with a full BATHROOM adds flexibility—perfect for guests or multi-generational living. Upstairs, you’ll find a convenient laundry room along with three generously sized bedrooms. The primary retreat is a standout, featuring a walk-in closet and a spa-inspired 5-PIECE ENSUITE complete with quartz counters, DOUBLE SINKS, and a luxurious JACUZZI TUB. Two additional bedrooms and another full bathroom provide plenty of space for the whole family. The lower level features an unfinished basement with impressive 9 ft ceilings and a SEPARATE SIDE ENTRANCE, offering endless potential for future development. Located in the thriving community of Cornerstone, you’ll enjoy easy access to schools, parks, shopping, transit, and major roadways. Don’t miss the opportunity to own this exceptional home that blends luxury, comfort, and long-term value. Book your private showing today!

MLS ® #: A2278523
Listing Office: URBAN-REALTY.ca
Date Listed: January 11, 2026 - 45 days on site
Last Updated: Feb 25, 2026 01:05am MST

$549,900

Details

Style:
2 storey, attached-side by side

Interior:
double vanity, high ceilings, jetted tub, no animal home, no smoking home, open floorplan, quartz counters, recessed lighting, separate entrance, vinyl windows

Exterior:
courtyard

Lot:
city lot, corner lot, pie shaped lot

Parking/Garage:
parking pad

Frontage (feet):
20.80

Even More Details

Taxes:
$0

Foundation:
poured concrete

Construction:
vinyl siding,wood frame

Flooring:
carpet,tile,vinyl plank

Roof:
asphalt shingle

Heating:
central

Inclusions:
n/a

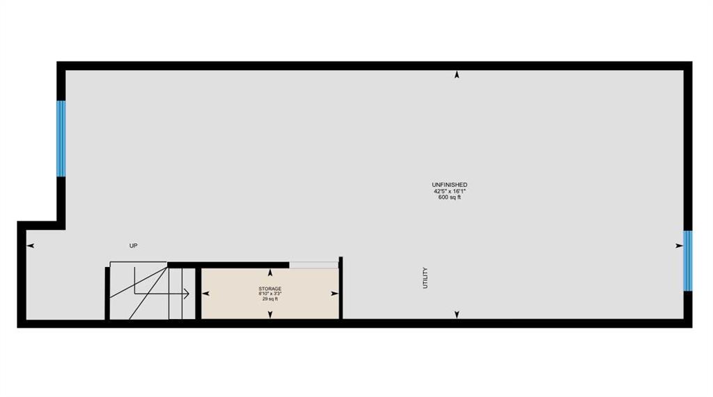
Room Sizes

Living Room

12`9" x 18`5"

Dining Room

8`6" x 9`6"

Kitchen

8`7" x 11`2"

Pantry

1`11" x 1`10"

4pc Bathroom

4`11" x 8`0"

Bedroom

8`2" x 8`3"

Mud Room

8`7" x 4`2"

Entrance

4`7" x 5`10"

Walk-In Closet

5`3" x 8`1"

5pc Ensuite bath

4`11" x 12`8"

Laundry

2`8" x 5`8"

4pc Bathroom

5`3" x 8`0"

Bedroom

9`8" x 11`4"

Bedroom

8`10" x 12`9"

Bedroom - Primary

11`6" x 12`6"

Thoughtful | Loyal | Effective

Loving this home?

Breanna will call to discuss.

"I couldn't ask for a better REALTOR ®️ team to help us buy our first home" - S. Stoyles

Similar Properties

Pending

New

135 Hamptons Park

Hamptons 1 Bed 1.5 Bath 1245sqft

Tink

Pending

20 Silverado Crest Park #204

Silverado 3 Bed 2.5 Bath 1256sqft

CIR Realty

149 Lewiston St.

Lewisburg 3 Bed 2.5 Bath 1641sqft

Manor Real Estate Ltd.

Pending

81 Albright Drive

Harmony 3 Bed 2.5 Bath 1941sqft

LPT Realty

Pending

84 Ricardo Ranch Ave.

Ricardo Ranch 5 Bed 3.5 Bath 1775sqft

eXp Realty

128 Livingston Parade

Livingston 5 Bed 2.5 Bath 1517sqft

Century 21 Bravo Realty

Reduced

107 Royston Way

Haskayne 3 Bed 2.5 Bath 1822sqft

Royal LePage Benchmark

52 Edith Gate

Glacier Ridge 4 Bed 3.5 Bath 1569sqft

Real Estate Professionals Inc.

7007 Rangeview Ave.

Rangeview 3 Bed 2.5 Bath 1588sqft

Jayman Realty Inc.

“Breanna was a dream to work with - knowledgeable, attentive, professional and organized. I really appreciate how she and Tom operate their business - 'integrity' is the word that comes to mind.”.
 
- Michele Hannay
“She was extremely professional, knowledgeable, transparent and reliable through the whole process. It truly felt like having a friend on the "inside" working for us.”.
 
- Kevin and Sandie
“The A Team helped us get our confidence back. But that was just the start. The hard work came after that. It hasn’t been easy and at times it has been extremely stressful but thank you to Breanna for her relentless hard work for her clients”.
 
- Louise Melvin

Breanna
Albrecht