520 Reynolds Ave. SW #1308 | Coopers Crossing | Airdrie

Open House

Open House

520 Reynolds Avenue #1308 | Coopers Crossing

Beds
2
Baths
2.0
Sqft
1,048
Lot Sqft
0
Year Built
2025
Days Listed
77
Type
Apartment
Status
Active
Garage
No
Foundation
Concrete
Condo Fee
$560
Price Change
None

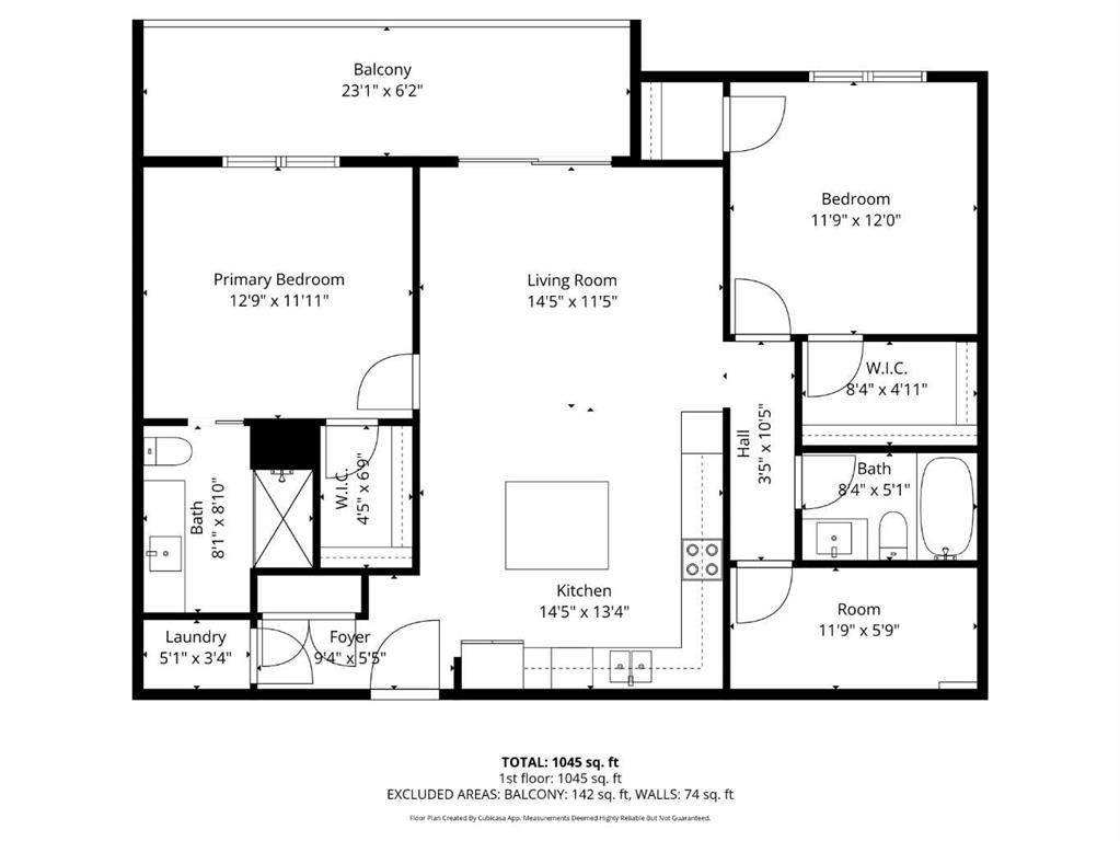
*****Open House on Saturday from 1-4pm and Sunday from 1-4pm Designed for both comfort and style, this C1 floor plan delivers a well-balanced 2-bedroom, 2-bath plus den layout with an inviting open-concept design. Quartz countertops, luxury vinyl plank flooring, and modern recessed lighting create a clean, contemporary aesthetic, while west-facing windows flood the home with warm natural light. The primary retreat features a walk-in closet and private ensuite, and wall-mounted air conditioning ensures year-round comfort. Life at The Monarch is elevated by an outstanding amenity offering, including a full-service fitness center, yoga studio, boardroom, residents’ lounge, entertaining space with deck and BBQ, two rooftop patios, guest suite, and a convenient dog wash station. Underground parkade parking provides secure and effortless access. Located in the heart of Cooper’s Crossing, just steps from Coopers Promenade, this address places you close to schools, parks, and daily conveniences, with quick connections to 8th Avenue, 40th Avenue, and Highway 2 making the commute to Calgary seamless. A smart opportunity for those seeking low-maintenance, upscale condo living in one of Airdrie’s most established communities.

MLS ® #: A2280749
Listing Office: Real Broker
Date Listed: January 22, 2026 - 77 days on site
Last Updated: Apr 09, 2026 01:05am MST

$465,000

Open House

Saturday, Apr 11th
01:00PM - 04:00PM
Sunday, Apr 12th
01:00PM - 04:00PM

Representation matters! If you'd prefer a private showing of this home, or would like a professional to accompany you to the open house, we can arrange it. That way, a representative present to look after your confidential information and your best interests. Just let us know!

Details

Style:
apartment-single level unit

Interior:
kitchen island, quartz counters, recessed lighting, vinyl windows, walk-in closet(s)

Exterior:
none

Parking/Garage:
parkade, plug-in

Even More Details

Taxes:
$0

Pets Allowed:
cats ok,dogs ok,yes

Foundation:
poured concrete

Construction:
brick,composite siding,wood frame

Flooring:
carpet,vinyl plank

Roof:
membrane

Heating:
baseboard,boiler

Inclusions:
key fob

Condo Fee Includes:
common area maintenance,gas,heat,insurance,maintenance grounds,professional management,reserve fund contributions,sewer,snow removal,trash,water

Room Sizes

Kitchen

9`0" x 14`5"

Dining Room

12`4" x 6`7"

Living Room

13`1" x 14`5"

Laundry

5`1" x 3`5"

Den

5`9" x 11`8"

Bedroom - Primary

12`1" x 12`3"

Bedroom

12`1" x 11`7"

3pc Ensuite bath

8`10" x 7`11"

4pc Bathroom

4`11" x 8`3"

Balcony

5`8" x 22`10"

Thoughtful | Loyal | Effective

Loving this home?

Breanna will call to discuss.

"Anyone would be hard-pressed to find any team that could go beyond the lengths that the A-Team went for us" - Jim Wood

Similar Properties

730 2 Ave. #1102

Eau Claire 2 Bed 2 Bath 776sqft

RE/MAX Complete Realty

Reduced

131 Quarry Way #301

Douglasdale/Glen 1 Bed 1 Bath 850sqft

RE/MAX Realty Professionals

New

318 26 Ave. #501

Mission 2 Bed 2 Bath 1169sqft

RE/MAX Real Estate (Mountain View)

New

140 Mahogany St. #214

Mahogany 2 Bed 2 Bath 1254sqft

eXp Realty

1718 14 Ave. #510

Hounsfield Heights/Briar Hill 2 Bed 2 Bath 1308sqft

RE/MAX House of Real Estate

Reduced

1802 Mahogany Blvd. #8206

Mahogany 3 Bed 2 Bath 1221sqft

RE/MAX Real Estate (Mountain View)

8505 Broadcast Ave. #710

West Springs 2 Bed 2 Bath 1019sqft

Royal LePage Benchmark

Open House

2026 81 St. #A101

Springbank Hill 2 Bed 2 Bath 985sqft

eXp Realty

Reduced

59 22 Ave. #308

Erlton 2 Bed 2 Bath 1467sqft

Century 21 Bamber Realty LTD.

“The A Team helped us get our confidence back. But that was just the start. The hard work came after that. It hasn’t been easy and at times it has been extremely stressful but thank you to Breanna for her relentless hard work for her clients”.
 
- Louise Melvin
“A lot of people viewed the movie and pictures within the first 24 hours and I believe we had around 10 showings within the first two days.”.
 
- Gerald Lichti
“(Breanna) really did exactly what she promised to do. Thank you The A-Team for all your hard work and for making selling a home easy. ”.
 
- Rafal Wrobel

Breanna
Albrecht