400 Lakewood Drive | Strathmore - Lakewood | Strathmore

New

New

400 Lakewood Drive | Strathmore - Lakewood

Beds
4 0
Baths
3.0
Sqft
2,531
Lot Sqft
7,706
Year Built
2026
Days Listed
-0
Type
Detached
Status
Active
Garage
Yes
Foundation
Concrete
Condo Fee
No
Price Change
None

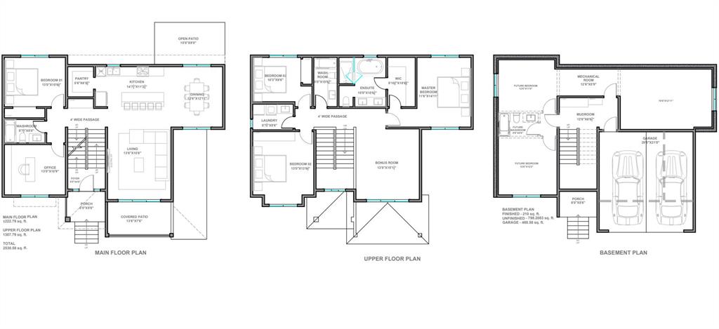
Welcome to 400 Lakewood Drive, a future build by Dhaduk Homes, perfectly positioned as a reverse walkout backing onto the canal. Thoughtfully designed to capture both east morning light and west sunset views over the pond and lake, this home blends everyday function with elevated living. Step inside to a light filled kitchen where a large island becomes the natural gathering place. A generous walk in pantry keeps everything tucked away, while the dining room is wrapped in windows and opens to an east facing patio overlooking the canal. It is the kind of space where mornings feel calm and connected to nature. Just beyond, the spacious living room is anchored by a fireplace and opens onto a covered west facing patio with sweeping pond and lake views. Whether hosting friends or enjoying a quiet evening, this seamless indoor outdoor flow defines the heart of the home. Down the hall, a bedroom on the one side, a four piece bath, and a west facing office provide flexibility for guests, family, or working from home. Upstairs, a large west facing bonus room captures even more of those stunning views, creating the perfect retreat for movie nights or relaxing at the end of the day. The primary suite with windows on both the east and west sides of the room, offers a spacious walk in closet and a spa inspired five piece ensuite designed for true unwinding. Two additional bedrooms, a four piece bathroom, and a dedicated laundry room complete the upper level with comfort and practicality in mind. The reverse walkout basement includes a finished mudroom and open space ready for your future vision, whether that means additional family living or a home based business. A 20 x 21 garage adds everyday convenience. 400 Lakewood Drive is an opportunity to build with intention, backing onto water, surrounded by views, and finished with the craftsmanship and care you expect from Dhaduk Homes.

MLS ® #: A2281853
Listing Office: CIR Realty
Date Listed: March 3, 2026 - 0 days on site
Last Updated: Mar 03, 2026 11:25am MST

$835,000

Details

Style:
2 storey

Garage Size:
3

Interior:
kitchen island, pantry

Exterior:
private yard

Lot:
back yard, rectangular lot, street lighting, views

Parking/Garage:
concrete driveway, triple garage attached

Frontage (feet):
66.00

Even More Details

Taxes:
$0

Foundation:
poured concrete

Construction:
cement fiber board,concrete,stone,wood frame

Flooring:
vinyl plank

Roof:
asphalt shingle

Heating:
forced air,natural gas

Inclusions:
n/a

Room Sizes

Bedroom

13`0" x 10`6"

4pc Bathroom

8`8" x 5`0"

Office

13`0" x 10`9"

Pantry

5`6" x 6`6"

Foyer

8`0" x 4`6"

Kitchen

14`8" x 11`3"

Living Room

13`6" x 15`6"

Dining Room

12`6" x 12`11"

Bedroom

10`3" x 9`6"

Laundry

8`8" x 5`6"

Bedroom

13`0" x 13`6"

4pc Bathroom

5`0" x 10`6"

5pc Ensuite bath

10`0" x 10`6"

Walk-In Closet

5`10" x 10`6"

Bonus Room

13`6" x 15`2"

Bedroom - Primary

11`6" x 14`11"

Thoughtful | Loyal | Effective

Loving this home?

Breanna will call to discuss.

"The whole experience from start to finish was exactly what you look for when buying a house" - Makenzie Corcoran

Similar Properties

179 Lucas Heights

Livingston 7 Bed 4 Bath 2301sqft

Royal LePage Mission Real Estate

604 56 Ave.

Windsor Park 3 Bed 1 Bath 864sqft

RE/MAX First

298 Kinniburgh Loop

Kinniburgh South 6 Bed 5 Bath 2648sqft

Real Estate Professionals Inc.

16 Sunvalley View

Sunset Ridge 3 Bed 2.5 Bath 2655sqft

eXp Realty

89 Heartwood Lane

Rangeview 6 Bed 5 Bath 2299sqft

eXp Realty

88 Sunrise Heath

Sunset Ridge 3 Bed 2.5 Bath 1383sqft

eXp Realty

144 Legacy Mount

Legacy 3 Bed 2.5 Bath 2824sqft

CIR Realty

Reduced

12 Cornerbrook Cove

Cornerstone 7 Bed 5 Bath 2219sqft

CIR Realty

Reduced

668 Scimitar Bay

Scenic Acres 6 Bed 3.5 Bath 2332sqft

Homecare Realty Ltd.

“The A-Team sold our Condo when other REALTORS® couldn't.”.
 
- Colleen Bussey
“The A Team helped us get our confidence back. But that was just the start. The hard work came after that. It hasn’t been easy and at times it has been extremely stressful but thank you to Breanna for her relentless hard work for her clients”.
 
- Louise Melvin
“A lot of people viewed the movie and pictures within the first 24 hours and I believe we had around 10 showings within the first two days.”.
 
- Gerald Lichti

Breanna
Albrecht