3550 45 St. SW #109 & 102 | Glenbrook | Calgary

3550 45 Street #109 & 102 | Glenbrook

Beds
2 2
Baths
5.0
Sqft
1,620
Lot Sqft
0
Year Built
2025
Days Listed
68
Type
Row/Townhouse
Status
Active
Garage
Yes
Foundation
Concrete
Condo Fee
$526
Price Change
None

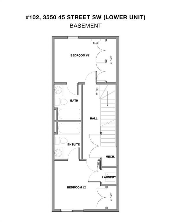
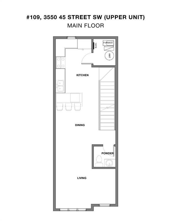
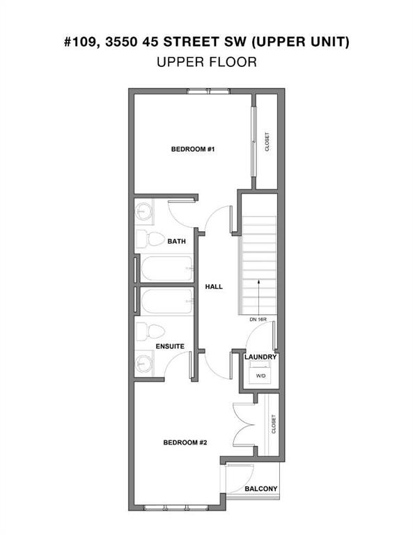
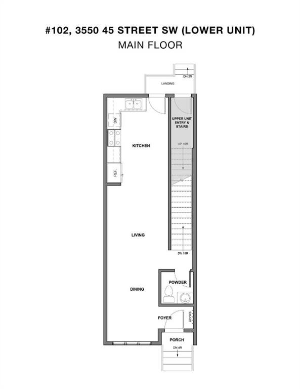
*VISIT MULTIMEDIA LINK FOR FULL PROJECT DETAILS* BRAND NEW, MOVE-IN READY TOWNHOME PROJECT IN GLENBROOK! This townhome project is AIRBNB FRIENDLY, plus first-time home buyers could qualify for up to a 100% GST REBATE* on their purchase! With 5 upper-level units, and 5 lower-level units, this modern townhome project is sure to impress, with an unbeatable inner-city location. This listing includes TWO titled units: one upper-level 2-storey unit (#109) featuring nearly 1,100 sq ft, with 2 beds, 2.5 baths, and a single detached garage, PLUS one lower-level unit directly below (#102) boasting a sunny main floor plus a FULLY FINISHED BASEMENT totalling nearly 1,000 sq ft of developed living space, with 2 beds & 2.5 baths. Live in one and rent the other, or combine both for personal use and have a 4-bedroom townhome with over 2,000 sq ft of living space! Both units feature a sunny and bright open-concept living space, with sleek, low-maintenance luxury vinyl plank (LVP) flooring and large windows. The fully equipped modern kitchens boast dual-tone slab-style cabinetry, quartz countertops, and Samsung stainless steel appliances, including a French-door refrigerator and ceramic-top stove. Completing the main floor of both units is a spacious dining area perfect for family meals and entertaining, a living room with large windows for ample natural light and a stylish 2-piece powder room. The upper-unit level (#109) features a lacquered spindled railing leading to the sunny upper floor, where 2 bedrooms and 2 full bathrooms await. The primary bedroom boasts a 3pc ensuite and a private balcony. Down the hall is a well-sized 2nd bedroom boasting easy access to the main 4pc bathroom. Each bathroom features custom cabinetry, quartz countertops, undermount sinks, and fully tiled showers. The lower-level unit (#102) fully developed basement features 2 bedrooms and 2 full bathrooms. Each bathroom boasts custom cabinetry, quartz counters, undermount sinks, and tiled tub/showers. Plus, both units feature a convenient in-suite laundry closet with a stacked washer/dryer. Durable and stylish, the exterior features Hardie Board and Smart Board detailing, and brushed concrete steps and walks. Located in the heart of the sought-after SW inner-city community of Glenbrook, these brand-new townhomes boast a fantastic location right across the street from Glenbrook School and the Glenbrook Community Association. A number of major amenities are located within an easy 15-min walk, including Safeway, Glamorgan Bakery, and multiple restaurants including Richmond’s Pub. Plus, nearly every imaginable amenity can be found in nearby Westhills and Signal Hill Centres which are just a 6 minute drive away. Sarcee Trail and Richmond Rd are both readily accessible. *Interior photos are taken from a similar project by the same builder - details may vary. *Buyers must qualify for the GST rebate program, enquire for details.

MLS ® #: A2282737
Listing Office: RE/MAX House of Real Estate
Date Listed: January 30, 2026 - 69 days on site
Last Updated: Apr 09, 2026 03:25am MST

$880,000

Details

Style:
townhouse-stacked

Garage Size:
1

Interior:
breakfast bar, open floorplan, see remarks

Exterior:
private entrance

Lot:
see remarks

Parking/Garage:
single garage detached

Even More Details

Taxes:
$0

Pets Allowed:
call

Foundation:
poured concrete

Construction:
cement fiber board,concrete,wood frame

Flooring:
tile,vinyl plank

Roof:
asphalt shingle

Heating:
forced air

Inclusions:
second dishwasher, second electric stove, second microwave hood fan, second refrigerator, second washer/dryer stacked

Condo Fee Includes:
common area maintenance,insurance,reserve fund contributions

Room Sizes

Living Room

15`10" x 13`2"

Kitchen

15`0" x 9`11"

Dining Room

12`9" x 9`11"

Bedroom - Primary

11`5" x 11`0"

Bedroom

10`10" x 9`3"

2pc Bathroom

0`0" x 0`0"

4pc Bathroom

0`0" x 0`0"

3pc Ensuite bath

0`0" x 0`0"

Living Room

13`5" x 9`6"

Kitchen

13`4" x 9`6"

Dining Room

11`3" x 8`0"

Bedroom - Primary

10`5" x 9`4"

Bedroom

11`0" x 9`4"

2pc Bathroom

0`0" x 0`0"

4pc Bathroom

0`0" x 0`0"

4pc Ensuite bath

0`0" x 0`0"

Thoughtful | Loyal | Effective

Loving this home?

Breanna will call to discuss.

"Would definitely recommend, especially for first-time homebuyers who need a little bit more guidance and help" - Jennifer Sine

Similar Properties

3107 42 St.

Glenbrook 4 Bed 4.5 Bath 1690sqft

Real Estate Professionals Inc.

2402 Westmount Road

West Hillhurst 3 Bed 2.5 Bath 1916sqft

RE/MAX First

1729 31 St. #201

Shaganappi 5 Bed 4.5 Bath 1823sqft

TrustPro Realty

1710 35 Ave.

Altadore 3 Bed 3.5 Bath 2561sqft

eXp Realty

Reduced

340 Point Mckay Gardens

Point McKay 2 Bed 2.5 Bath 1511sqft

Century 21 Bravo Realty

New

8 Edgevalley View

Edgemont 3 Bed 2.5 Bath 1684sqft

Jessica Chan Real Estate & Management Inc.

3719 14A St. #1

Altadore 4 Bed 4.5 Bath 1808sqft

RE/MAX Realty Professionals

New

244 Sovereign Common

Shaganappi 3 Bed 2.5 Bath 2274sqft

Royal LePage Benchmark

44 Riviera Way

Riviera 3 Bed 3.5 Bath 2040sqft

CIR Realty

“She was extremely professional, knowledgeable, transparent and reliable through the whole process. It truly felt like having a friend on the "inside" working for us.”.
 
- Kevin and Sandie
“A lot of people viewed the movie and pictures within the first 24 hours and I believe we had around 10 showings within the first two days.”.
 
- Gerald Lichti
“I think what sets Breanna apart is her genuine care for her clients.”.
 
- Shaun & Robyn Vey

Breanna
Albrecht