8530 21 Ave. SE #413 | Belvedere | Calgary

8530 21 Avenue #413 | Belvedere

Beds
0 2
Baths
1.5
Sqft
487
Lot Sqft
0
Year Built
2027
Days Listed
46
Type
Row/Townhouse
Status
Active
Garage
No
Foundation
Concrete
Condo Fee
$271
Price Change
None

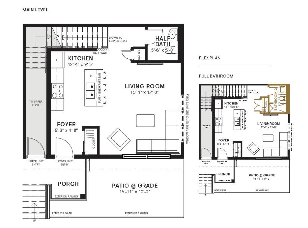
NEW BUILD | LOW CONDO FEES | 2 BED / 1.5 BATH / 1000 SQ FT TOTAL LIVING SPACE | TITLED PARKING STALL | EST. Q1 2027 POSSESSION – Welcome to the Link model at Metro Townhomes by Minto Communities, an award-winning Canadian builder with over 70 years of experience, located in East Hills Crossing, one of southeast Calgary’s fastest-growing and most convenient communities. These thoughtfully designed stacked townhomes offer modern finishes, functional layouts, and long-term value in a location that truly stands out. This lower-level unit features a smart and efficient floor plan designed for everyday comfort. The main level welcomes you with a spacious foyer that flows into a functional kitchen complete with stainless steel appliances, a central island, and ample storage space. Just off the kitchen is a massive living room, perfect for relaxing or entertaining. A convenient half bath is also located on this level, with the option to upgrade to a full 3-piece bathroom with a shower for added flexibility. Downstairs, you’ll find two well-sized bedrooms, a full bathroom, laundry, and plenty of storage space, creating a private and practical lower level ideal for homeowners or investors alike. The home includes a titled parking stall and low condo fees, adding to the overall value and affordability. Ideally situated directly across from East Hills Crossing Shopping Centre and Costco, this location offers unmatched convenience with shopping, dining, and services just steps away. Public transit is nearby, providing a quick and easy commute to downtown Calgary in minutes. East Hills is a vibrant, well-connected southeast community known for its thoughtful planning, green spaces, pathways, and easy access to major roadways and 17 Ave SE. Combining modern design, a functional floor plan, and an unbeatable location, this is an excellent opportunity to secure a brand-new home in East Hills with estimated completion in Q1 2027. Don’t miss your chance to be part of this exciting community! Book your visit at the presentation centre today for more details! *Photos are representative*

MLS ® #: A2282745
Listing Office: RE/MAX House of Real Estate
Date Listed: January 30, 2026 - 47 days on site
Last Updated: Mar 17, 2026 09:25am MST

$339,900

Details

Style:
townhouse-stacked

Interior:
kitchen island, no animal home, no smoking home, open floorplan, recessed lighting

Exterior:
private entrance

Lot:
private

Parking/Garage:
stall

Even More Details

Taxes:
$0

Pets Allowed:
restrictions,yes

Foundation:
poured concrete

Construction:
cement fiber board,wood frame

Flooring:
carpet,laminate

Roof:
asphalt shingle

Heating:
forced air,natural gas

Inclusions:
n/a

Condo Fee Includes:
common area maintenance,insurance,maintenance grounds,professional management,reserve fund contributions,snow removal,trash

Room Sizes

Bedroom - Primary

12`4" x 10`9"

Bedroom

10`2" x 9`10"

Kitchen

12`2" x 9`3"

Living Room

15`0" x 12`9"

Foyer

5`0" x 4`9"

Laundry

3`1" x 3`1"

Furnace/Utility Room

8`10" x 4`3"

4pc Bathroom

7`9" x 5`1"

2pc Bathroom

5`5" x 5`5"

Thoughtful | Loyal | Effective

Loving this home?

Breanna will call to discuss.

"Anyone would be hard-pressed to find any team that could go beyond the lengths that the A-Team went for us" - Jim Wood

Similar Properties

1971 McCaskill Drive

NONE 3 Bed 2.5 Bath 1533sqft

PropZap Realty

95 Skyview Close #516

Skyview Ranch 3 Bed 3 Bath 1388sqft

URBAN-REALTY.ca

Reduced

21 Royal Oak Gardens

Royal Oak 3 Bed 1.5 Bath 1203sqft

RE/MAX Complete Realty

2405 Creeker Lane

Cobblestone Creek 3 Bed 2.5 Bath 1520sqft

eXp Realty

381 Copperpond Landing

Copperfield 3 Bed 2.5 Bath 1643sqft

Real Broker

New

316 Marquis Lane

Mahogany 3 Bed 2.5 Bath 1251sqft

eXp Realty

New

1305 Sage Meadows Gardens

Sage Hill 4 Bed 3.5 Bath 1307sqft

eXp Realty

New

255 Sora Blvd.

Hotchkiss 3 Bed 2.5 Bath 1514sqft

PREP Realty

Reduced

325 Copperstone Manor

Copperfield 2 Bed 2.5 Bath 1428sqft

Real Estate Professionals Inc.

“[Breanna] told me with 100% confidence and certainty she could get the job done and that’s exactly what happened.”.
 
- Channing Pass
“(Breanna) really did exactly what she promised to do. Thank you The A-Team for all your hard work and for making selling a home easy. ”.
 
- Rafal Wrobel
“Breanna was a dream to work with - knowledgeable, attentive, professional and organized. I really appreciate how she and Tom operate their business - 'integrity' is the word that comes to mind.”.
 
- Michele Hannay

Breanna
Albrecht