112 Copperpond Park | Copperfield | Calgary

Pending

New

Pending

New

112 Copperpond Park | Copperfield

Beds
3 0
Baths
2.5
Sqft
1,675
Lot Sqft
3,294
Year Built
2013
Days Listed
5
Type
Detached
Status
Pending
Garage
No
Foundation
Concrete
Condo Fee
No
Price Change
None

Welcome to this well-maintained and move-in ready starter home, perfectly positioned right across from a beautiful park! Offering exceptional value, this home has been thoughtfully cared for and is ideal for first-time buyers, young families, or investors. Major updates include a roof replaced in 2021, giving you added peace of mind for years to come. The interior has been freshly painted, creating a clean and inviting atmosphere throughout. Pride of ownership is evident, making this a truly turnkey opportunity. Enjoy the convenience of having a school nearby, plus easy access to scenic bike trails and walking paths — perfect for active lifestyles and family living. Well priced and located in a fantastic setting, this home offers comfort, convenience, and value all in one. Don’t miss your opportunity to make it yours!

MLS ® #: A2285528
Listing Office: CIR Realty
Date Listed: February 19, 2026 - 6 days on site
Last Updated: Feb 24, 2026 09:25am MST

$538,000

Details

Style:
2 storey

Interior:
double vanity, no smoking home, pantry, storage, walk-in closet(s)

Exterior:
playground, private yard

Lot:
back lane, back yard, landscaped, rectangular lot

Parking/Garage:
alley access, off street, parking pad

Frontage (feet):
29.99

Even More Details

Taxes:
$0

Foundation:
poured concrete

Construction:
vinyl siding,wood frame

Flooring:
carpet,hardwood

Roof:
asphalt shingle

Heating:
forced air

Inclusions:
n/a

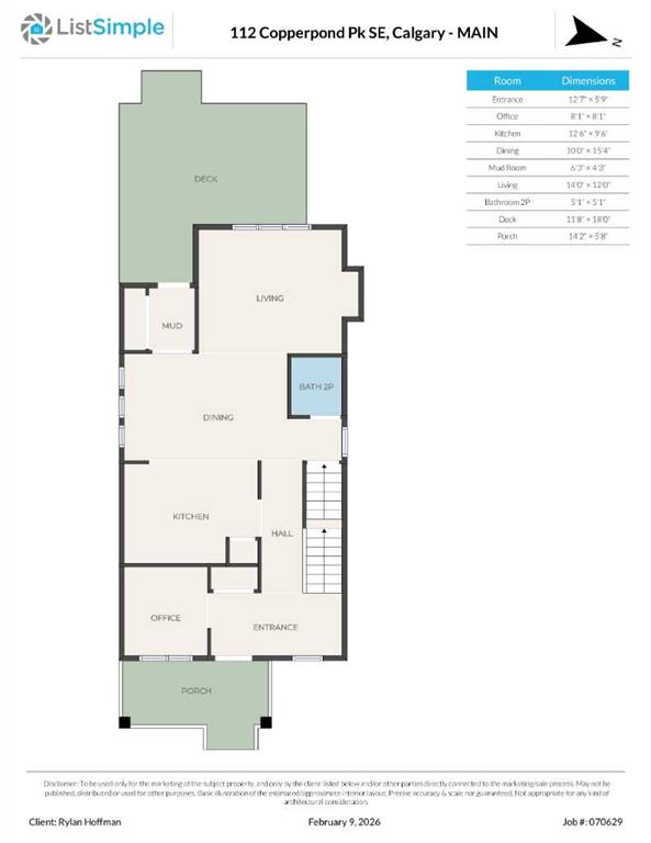
Room Sizes

Entrance

12`7" x 5`9"

Office

8`1" x 8`1"

Kitchen

12`6" x 9`6"

Dining Room

10`0" x 15`4"

Mud Room

6`3" x 4`3"

2pc Bathroom

5`1" x 5`1"

Living Room

14`0" x 12`0"

Bedroom

10`0" x 9`1"

Bedroom

10`0" x 9`1"

4pc Bathroom

9`1" x 4`11"

Laundry

7`4" x 6`9"

Bedroom - Primary

13`6" x 11`6"

4pc Ensuite bath

7`2" x 8`2"

Walk-In Closet

5`2" x 5`7"

Thoughtful | Loyal | Effective

Loving this home?

Breanna will call to discuss.

"I have never had a home purchase go as smoothly as this one" - Sarah Clark-Pickett

Similar Properties

Pending

248 Verbena Common

NONE 3 Bed 2.5 Bath 1585sqft

Bode Platform Inc.

New

363 Templeside Circle

Temple 5 Bed 2 Bath 1038sqft

Real Broker

Pending

905 Arbour Lake Road

Arbour Lake 4 Bed 2.5 Bath 1408sqft

Sotheby's International Realty Canada

New

3408 Boulton Road

Brentwood 3 Bed 1 Bath 1033sqft

Real Estate Professionals Inc.

173 Gordon Drive

Glamorgan 6 Bed 2 Bath 1008sqft

eXp Realty

Pending

New

651 84 Ave.

Haysboro 3 Bed 1.5 Bath 1066sqft

RE/MAX Landan Real Estate

218 Tarawood Place

Taradale 5 Bed 3.5 Bath 1777sqft

Real Broker

92 Amblefield View

Moraine 3 Bed 2.5 Bath 1775sqft

RE/MAX Crown

60 Cimarron Meadows Road

Cimarron Meadows 4 Bed 3.5 Bath 1685sqft

Keyhole Real Estate

“Breanna was a dream to work with - knowledgeable, attentive, professional and organized. I really appreciate how she and Tom operate their business - 'integrity' is the word that comes to mind.”.
 
- Michele Hannay
“She was extremely professional, knowledgeable, transparent and reliable through the whole process. It truly felt like having a friend on the "inside" working for us.”.
 
- Kevin and Sandie
“The A Team helped us get our confidence back. But that was just the start. The hard work came after that. It hasn’t been easy and at times it has been extremely stressful but thank you to Breanna for her relentless hard work for her clients”.
 
- Louise Melvin

Breanna
Albrecht