35 Emberside Garden | Fireside | Cochrane

Pending

New

Pending

New

35 Emberside Garden | Fireside

Beds
3 1
Baths
3.5
Sqft
1,672
Lot Sqft
3,440
Year Built
2017
Days Listed
12
Type
Detached
Status
Pending
Garage
Yes
Foundation
Concrete
Condo Fee
No
Price Change
None

***OPEN HOUSE SATURDAY FEB 21, 2-4PM*** Welcome to this beautifully maintained and extensively upgraded Calbridge-built two-storey in the heart of Fireside — offering direct access to both the public and Catholic K–8 schools right behind the home. For families, this location is exceptional. WATCH OR WALK your children to school in SECONDS and enjoy the convenience of playgrounds, a ball diamond, outdoor rink, skate park, future dog park and scenic forest trails all just steps away. It’s a lifestyle designed around growing families and everyday ease. Over 2200 SF of professionally developed living space! The main floor features 9’ ceilings, a stunning 8’ rear window and 8’ patio door that flood the space with natural light, and upgraded kitchen cabinetry extended to the ceiling. The kitchen is beautifully appointed with brand new refrigerator and stove (2025), newer dishwasher, and modern finishes throughout. Hunter Douglas blinds are installed in all windows, and new CENTRAL A/C (2025) ensures year-round comfort. Upstairs, you’ll find three generous bedrooms and a large, cozy bonus room highlighted by a stunning feature wall — the perfect family gathering space. The primary retreat offers a spacious walk-in closet and an impressive 5-piece ensuite designed for comfort and relaxation. Convenient upper-floor laundry with a newer washing machine adds everyday practicality. The professionally finished basement, completed by Calbridge, includes large sunshine windows that create a bright and welcoming lower level, complete with an additional bedroom, full bathroom and spacious recreation area — ideal for guests or teens. Step outside to a thoughtfully designed backyard with two decks, a privacy pergola (2023), and strategically planted trees for added privacy while still enjoying the open space behind. The widened driveway and dedicated bin pad (2025), along with new low-maintenance front landscaping (2025), enhance both function and curb appeal. Located just 5 minutes to shopping, restaurants, daily essentials & Highway 22 for Calgary or mountain access, and only 10 minutes to downtown Cochrane, this home blends quality construction, thoughtful upgrades and unbeatable family convenience. Meticulously cared for and truly move-in ready.

MLS ® #: A2285541
Listing Office: KIC Realty
Date Listed: February 12, 2026 - 13 days on site
Last Updated: Feb 25, 2026 03:25am MST

$679,980

Details

Style:
2 storey

Garage Size:
2

Interior:
ceiling fan(s), double vanity, high ceilings, kitchen island, no smoking home, open floorplan, pantry, quartz counters, walk-in closet(s)

Exterior:
none

Lot:
back yard, backs on to park/green space, landscaped, low maintenance landscape, no neighbours behind, private, treed

Parking/Garage:
double garage attached

Frontage (feet):
29.99

Even More Details

Taxes:
$0

Foundation:
poured concrete

Construction:
vinyl siding,wood frame

Flooring:
carpet,ceramic tile,laminate

Roof:
asphalt shingle

Heating:
forced air,natural gas

Inclusions:
n/a

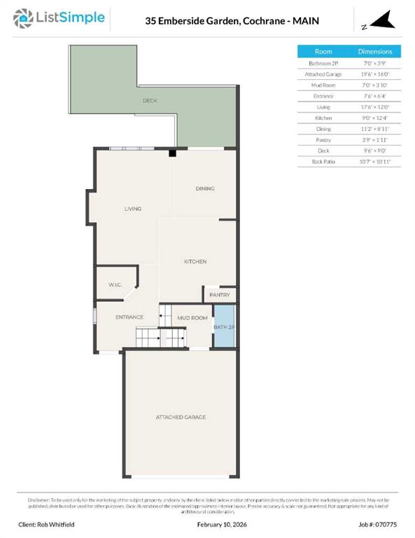
Room Sizes

2pc Bathroom

7`0" x 3`9"

Mud Room

7`0" x 3`10"

Living Room

17`6" x 12`0"

Kitchen

9`0" x 12`4"

Dining Room

11`2" x 8`11"

Pantry

3`9" x 1`11"

Bedroom

10`2" x 10`0"

Bedroom

9`9" x 10`8"

4pc Bathroom

7`11" x 5`0"

Laundry

6`3" x 5`0"

Bedroom - Primary

14`5" x 11`0"

Walk-In Closet

8`4" x 4`3"

5pc Ensuite bath

12`2" x 4`11"

Bonus Room

12`7" x 13`9"

Game Room

11`10" x 10`11"

Bedroom

11`5" x 9`11"

Flex Space

9`8" x 9`7"

4pc Bathroom

7`11" x 4`11"

Furnace/Utility Room

11`7" x 8`8"

Thoughtful | Loyal | Effective

Loving this home?

Breanna will call to discuss.

"The A-Team are masters of their craft" - Jeremy Stewart

Similar Properties

138 Reunion Landing

Reunion 4 Bed 2.5 Bath 1367sqft

Royal LePage Benchmark

41 Covette Bay

Coventry Hills 4 Bed 3.5 Bath 2069sqft

Century 21 Bravo Realty

290053 96 St.

NONE 4 Bed 2 Bath 3186sqft

eXp Realty

280 Windermere Drive

Westmere 6 Bed 3.5 Bath 2542sqft

RE/MAX Crown

New

111 Schubert Place

Scenic Acres 3 Bed 3.5 Bath 2120sqft

Royal LePage Benchmark

New

10712 Mapleshire Crescent

Maple Ridge 4 Bed 1.5 Bath 1296sqft

RE/MAX Landan Real Estate

117 Clearwater Terrace

NONE 5 Bed 4 Bath 2185sqft

RE/MAX Crown

447 Dawson Terrace

Dawson's Landing 4 Bed 3 Bath 2100sqft

RE/MAX First

230 Chaparral Place

Chaparral 4 Bed 2.5 Bath 1527sqft

CIR Realty

“The A Team helped us get our confidence back. But that was just the start. The hard work came after that. It hasn’t been easy and at times it has been extremely stressful but thank you to Breanna for her relentless hard work for her clients”.
 
- Louise Melvin
“The A-Team sold our Condo when other REALTORS® couldn't.”.
 
- Colleen Bussey
“(Breanna) really did exactly what she promised to do. Thank you The A-Team for all your hard work and for making selling a home easy. ”.
 
- Rafal Wrobel

Breanna
Albrecht