81 Westminster Drive SW | Westgate | Calgary

Reduced

Reduced

81 Westminster Drive | Westgate

Beds
3 1
Baths
2.0
Sqft
1,106
Lot Sqft
6,985
Year Built
1960
Days Listed
32
Type
Detached
Status
Active
Garage
Yes
Foundation
Concrete
Condo Fee
No
Price Change
-$20k, 12-Mar

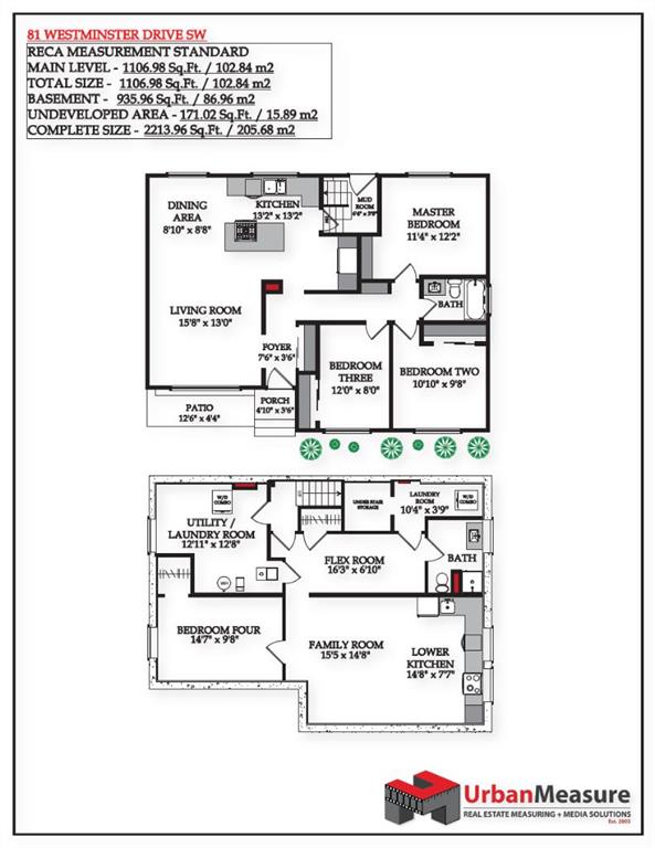
An exceptional opportunity in the heart of Westgate featuring a legalized basement suite, an ideal property for investors or homeowners looking to offset their mortgage with strong income potential. Opportunities like this on a large corner lot in an established SW community are rare. Situated on a spacious 6,985 sq ft lot that was recently rezoned to RC-2, this well maintained corner lot bungalow offers over 1,100 sq ft above grade with 3 bedrooms on the main floor, including the primary bedroom, and a full 4-piece bathroom. The upstairs flooring has been upgraded to durable luxury vinyl plank, giving the home a fresh, modern feel. The kitchen is both stylish and functional, complete with rich cabinetry, stainless steel appliances, and a generous island with breakfast bar seating that makes everyday living and entertaining comfortable and practical. The fully developed legalized basement suite features a separate exterior entrance and includes 1 bedroom, a full kitchen, its own appliances, and comfortable living space. Significant attention has been given to privacy and comfort, with added insulation and soundproofing in the basement ceiling. Each suite is equipped with its own separate appliances, and the home also features a new washer and dryer, making this a truly turnkey income property with strong rental appeal. The private, fenced backyard is framed by mature trees and offers a patio area for relaxing or hosting friends. A single detached garage plus additional parking provides excellent functionality for both owner and tenant use . Westgate is known for its welcoming community feel and unbeatable convenience. You are just minutes from schools, walking and bike paths, the Bow River Pathway, and a nearby dog park, making it easy to enjoy the outdoors year round. With quick access to major routes and downtown, this location continues to be one of Calgary’s most desirable and established neighbourhoods. Whether you are expanding your investment portfolio or looking for a home with built-in income potential, this legalized suite property checks all the boxes. Schedule your private showing today.

MLS ® #: A2286445
Listing Office: Coldwell Banker Mountain Central
Date Listed: February 13, 2026 - 32 days on site
Last Updated: Mar 17, 2026 03:05am MST

$799,000

Details

Style:
bungalow

Garage Size:
1

Interior:
breakfast bar, kitchen island, open floorplan

Exterior:
private yard

Lot:
back yard, corner lot, irregular lot

Parking/Garage:
single garage detached

Frontage (feet):
52.56

Even More Details

Taxes:
$0

Foundation:
poured concrete

Construction:
metal siding ,stucco,wood frame

Flooring:
cork,hardwood,vinyl plank

Roof:
asphalt shingle

Heating:
forced air

Inclusions:
total appliances: 2x fridge, 2x stove, 2x dishwasher, 2x washer, 2x dryer, 2x garage door opener controls

Room Sizes

Bedroom - Primary

11`4" x 12`2"

4pc Bathroom

Bedroom

10`10" x 9`8"

Bedroom

12`0" x 8`0"

3pc Bathroom

8`6" x 6`4"

Bedroom

9`8" x 14`6"

Kitchen

14`8" x 10`3"

Laundry

5`6" x 10`3"

Living Room

14`8" x 12`9"

Furnace/Utility Room

12`8" x 14`7"

Thoughtful | Loyal | Effective

Loving this home?

Breanna will call to discuss.

"They really make you feel like a part of their family" - Kim Mitchell

Similar Properties

539 Waterford Rise

Waterford 5 Bed 3 Bath 2567sqft

Real Broker

Open House

7 Elk Valley Gate

Elk Valley Park Est 5 Bed 3 Bath 2615sqft

CIR Realty

Pending

228 Windrow Link

Southwinds 4 Bed 2.5 Bath 2904sqft

eXp Realty

2762 Baywater Landing

Bayside 4 Bed 3.5 Bath 2591sqft

Manor Real Estate Ltd.

New

47 Corner Meadows Row

Cornerstone 6 Bed 3.5 Bath 2596sqft

CIR Realty

1642 Baywater St.

Bayside 4 Bed 2.5 Bath 2767sqft

Jessica Chan Real Estate & Management Inc.

108 Seagreen Lane

West Creek 5 Bed 3.5 Bath 2468sqft

RE/MAX Complete Realty

33 Heritage Park

Heritage Hills 3 Bed 2.5 Bath 2441sqft

eXp Realty

3 Muirfield Close

Lakes of Muirfield 3 Bed 3 Bath 1951sqft

RE/MAX Realty Professionals

“She was extremely professional, knowledgeable, transparent and reliable through the whole process. It truly felt like having a friend on the "inside" working for us.”.
 
- Kevin and Sandie
“The A Team helped us get our confidence back. But that was just the start. The hard work came after that. It hasn’t been easy and at times it has been extremely stressful but thank you to Breanna for her relentless hard work for her clients”.
 
- Louise Melvin
“During negotiations Breanna was a huge asset and her skill and knowledge really helped us get the best deal we could.”.
 
- Brendon V.

Breanna
Albrecht