1930 24A St. SW #2 | Richmond | Calgary

New

Open House

New

Open House

1930 24A Street #2 | Richmond

Beds
2 0
Baths
2.0
Sqft
1,279
Lot Sqft
0
Year Built
1999
Days Listed
2
Type
Row/Townhouse
Status
Active
Garage
Yes
Foundation
See Details
Condo Fee
$325
Price Change
None

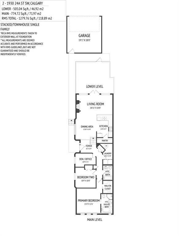
OPEN HOUSE THIS WEEKEND SATURDAY AND SUNDAY. Welcome to comfortable inner-city living in the vibrant community of Killarney. This beautifully maintained bungalow-style townhome offers the perfect blend of style, comfort, and convenience in a quiet residential setting, just moments from the energy of 17th Avenue. Freshly painted throughout, the home feels bright and inviting from the moment you step inside. Large windows fill the space with natural light, highlighting the dramatic 12-foot ceilings, luxury vinyl plank and slate flooring, and the warmth of in-floor heating. The open design creates a welcoming flow that’s ideal for both relaxing and entertaining. The kitchen is thoughtfully designed with an eating bar, pantry, new black double sink, and stylish new backsplash, making it both functional and attractive for everyday living. Just off the main living area, step outside to your cozy, private fenced patio—a perfect spot to enjoy a quiet morning coffee or unwind at the end of the day. This spacious home offers over 1,200 sq. ft. of living space with two bedrooms and a versatile den area ideal for a home office. The generous primary bedroom features a walk-in closet and a private ensuite with a jetted soaker tub and separate shower, creating a comfortable retreat. A second full bathroom adds convenience for guests or family. The well-maintained complex consists of only four units and is self-managed, helping keep condo fees low while maintaining pride of ownership throughout. You’ll appreciate the convenience of your garage parking stall at the rear, along with easy access to 17th Avenue, Crowchild Trail, parks, playgrounds, schools, transit, shops, and restaurants. If you’re looking for bright, low-maintenance inner-city living in one of Calgary’s most loved neighbourhoods, this Killarney gem is a must see. BOOK YOUR APPOINTMENT TODAY. Some of the photos have been virtually staged.

MLS ® #: A2292046
Listing Office: Real Broker
Date Listed: March 11, 2026 - 3 days on site
Last Updated: Mar 14, 2026 02:05am MST

$499,900

Open House

Saturday, Mar 14th
02:00PM - 04:00PM
Sunday, Mar 15th
02:00PM - 04:00PM

Representation matters! If you'd prefer a private showing of this home, or would like a professional to accompany you to the open house, we can arrange it. That way, a representative present to look after your confidential information and your best interests. Just let us know!

Details

Style:
bungalow

Garage Size:
1

Interior:
no animal home, no smoking home

Exterior:
private entrance, private yard

Lot:
back lane, back yard, few trees, front yard

Parking/Garage:
single garage detached

Even More Details

Taxes:
$0

Pets Allowed:
yes

Foundation:
none

Construction:
stucco,vinyl siding,wood frame

Flooring:
ceramic tile,laminate,slate

Roof:
asphalt shingle

Heating:
in floor,natural gas

Inclusions:
none

Condo Fee Includes:
common area maintenance,insurance,maintenance grounds,parking,reserve fund contributions,snow removal

Room Sizes

Kitchen

12`0" x 8`7"

Dining Room

12`10" x 11`0"

Living Room

18`11" x 10`8"

Laundry

10`11" x 5`0"

Foyer

8`3" x 6`9"

Office

10`9" x 7`1"

Bedroom - Primary

13`4" x 12`6"

Bedroom

10`9" x 10`8"

4pc Bathroom

7`9" x 5`0"

4pc Ensuite bath

10`5" x 6`0"

Thoughtful | Loyal | Effective

Loving this home?

Breanna will call to discuss.

"I couldn't ask for a better REALTOR ®️ team to help us buy our first home" - S. Stoyles

Similar Properties

New

Open House

189 Mahogany Drive

Mahogany 3 Bed 3.5 Bath 1241sqft

LPT Realty

7 Cityline Heath

Cityscape 3 Bed 3.5 Bath 1500sqft

Prep Ultra

306 Alpine Blvd.

Alpine Park 4 Bed 3.5 Bath 1535sqft

LPT Realty

308 12 Ave. #2

Crescent Heights 3 Bed 3.5 Bath 1276sqft

RE/MAX Real Estate (Mountain View)

599 Mahogany Road

Mahogany 3 Bed 2.5 Bath 1672sqft

Jayman Realty Inc.

85 Royal Elm Green

Royal Oak 2 Bed 2.5 Bath 1442sqft

RE/MAX House of Real Estate

Pending

2231 81st St. #102

Springbank Hill 3 Bed 2.5 Bath 1554sqft

Royal LePage Benchmark

New

710 56 Ave. #1

Windsor Park 2 Bed 3.5 Bath 1228sqft

RE/MAX House of Real Estate

235 Sovereign Common

Shaganappi 2 Bed 2.5 Bath 1339sqft

Charles

“We’ve dealt with dozens of REALTORS® and Breanna has exceeded all our expectations.”.
 
- Anna
“The A Team helped us get our confidence back. But that was just the start. The hard work came after that. It hasn’t been easy and at times it has been extremely stressful but thank you to Breanna for her relentless hard work for her clients”.
 
- Louise Melvin
“I never had to wait any length of time for her to answer my call or text. ”.
 
- Diane Elizabeth Gaulton

Breanna
Albrecht