38 Canoe Square SW | Canals | Airdrie

Pending

Pending

38 Canoe Square | Canals

Beds
3 0
Baths
3.5
Sqft
1,295
Lot Sqft
3,776
Year Built
2003
Days Listed
23
Type
Semi Detached (Half Duplex)
Status
Pending
Garage
Yes
Foundation
Concrete
Condo Fee
No
Price Change
-$10k, 18-Mar

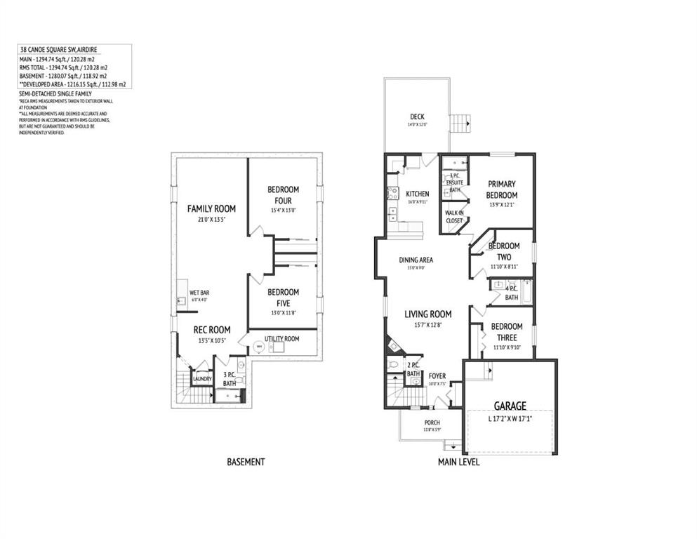
Beautifully updated and move-in ready, this fully finished bungalow offers nearly 2,500 sq ft of developed living space, modern updates throughout, and the added bonus of NO CONDO FEES. Welcome to 38 Canoe Square SW in Airdrie, where the bright main level features VAULTED ceilings and new luxury vinyl plank flooring throughout the entire home with a 25-year warranty. The recently RENOVATED KITCHEN offers modern cabinetry, stainless steel appliances, and a brand new oven, while the dining area opens into the inviting living room featuring a COZY GAS FIREPLACE. The main floor includes three bedrooms and 2.5 bathrooms, including a primary suite with walk-in closet and private 3-piece ensuite. Two additional bedrooms are located nearby with a full bathroom between them, plus a convenient 2-piece powder room near the front entry for guests. The fully developed basement provides exceptional additional living space, featuring a large family room with a WET BAR, two spacious finished rooms ideal for a home office, gym, hobby room, or guest space (windows may not meet current egress requirements for a bedroom), and a beautifully finished bathroom with a MODERN TILED SHOWER. The laundry area includes a new washer/dryer combo unit. Outside you’ll find a PRIVATE FENCED backyard with a deck, perfect for relaxing or entertaining. The double front attached garage connects to the neighboring property only at the garage wall, meaning the living spaces are completely separate. Ideally located close to schools, shopping, restaurants, and everyday amenities, this home offers outstanding value in an established Airdrie community.

MLS ® #: A2292193
Listing Office: Yates Real Estate Ltd
Date Listed: March 10, 2026 - 24 days on site
Last Updated: Apr 03, 2026 04:05am MST

$469,900

Details

Style:
attached-side by side, bungalow

Garage Size:
2

Interior:
open floorplan, pantry, vaulted ceiling(s)

Exterior:
other

Lot:
landscaped, rectangular lot

Parking/Garage:
double garage attached

Frontage (feet):
37.50

Even More Details

Taxes:
$0

Foundation:
poured concrete

Construction:
vinyl siding,wood frame

Flooring:
vinyl plank

Roof:
asphalt shingle

Heating:
forced air,natural gas

Inclusions:
n/a

Room Sizes

Living Room

15`7" x 12`8"

Kitchen

16`0" x 9`11"

Dining Room

15`0" x 9`0"

Foyer

10`0" x 7`5"

Bedroom - Primary

13`9" x 12`1"

3pc Ensuite bath

8`5" x 4`11"

Bedroom

11`10" x 8`11"

Bedroom

11`10" x 9`10"

4pc Bathroom

7`11" x 4`11"

2pc Bathroom

6`6" x 5`8"

Family Room

21`0" x 13`5"

Game Room

13`5" x 10`5"

Flex Space

15`4" x 13`0"

Flex Space

13`0" x 11`8"

4pc Bathroom

8`10" x 5`10"

Laundry

3`11" x 2`8"

Thoughtful | Loyal | Effective

Loving this home?

Breanna will call to discuss.

"I couldn't ask for a better REALTOR ®️ team to help us buy our first home" - S. Stoyles

Similar Properties

Open House

80 Heritage Manor

NONE 3 Bed 2.5 Bath 1806sqft

URBAN-REALTY.ca

New

47 Eversyde Heath

Evergreen 3 Bed 2.5 Bath 1292sqft

RE/MAX First

61 Heritage Park

Heritage Hills 3 Bed 2.5 Bath 1522sqft

The Home Hunters Real Estate Group Ltd.

New

62 Starling Blvd.

Moraine 3 Bed 2.5 Bath 1409sqft

CIR Realty

New

145 Red Sky Way

Redstone 4 Bed 3.5 Bath 1736sqft

RE/MAX House of Real Estate

10888 Panorama Hills Blvd. #178

Panorama Hills 2 Bed 2.5 Bath 1312sqft

Grand Realty

198 Masters Ave.

Mahogany 3 Bed 3.5 Bath 1186sqft

Real Broker

117 Bridgeport Gate

Bridgeport 4 Bed 3 Bath 1700sqft

eXp Realty

371 Fireside Drive

Fireside 3 Bed 2.5 Bath 1802sqft

Bode Platform Inc.

“She was extremely professional, knowledgeable, transparent and reliable through the whole process. It truly felt like having a friend on the "inside" working for us.”.
 
- Kevin and Sandie
“Breanna was a dream to work with - knowledgeable, attentive, professional and organized. I really appreciate how she and Tom operate their business - 'integrity' is the word that comes to mind.”.
 
- Michele Hannay
“I never had to wait any length of time for her to answer my call or text. ”.
 
- Diane Elizabeth Gaulton

Breanna
Albrecht