2232 30 Ave. SW | Richmond | Calgary

New

New

2232 30 Avenue | Richmond

Beds
3 1
Baths
3.5
Sqft
1,967
Lot Sqft
3,125
Year Built
2026
Days Listed
4
Type
Detached
Status
Active
Garage
Yes
Foundation
Concrete
Condo Fee
No
Price Change
None

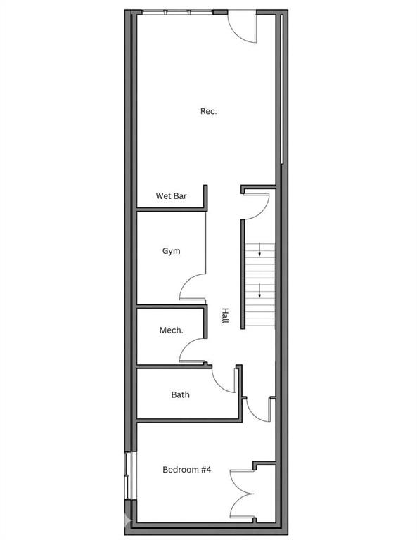
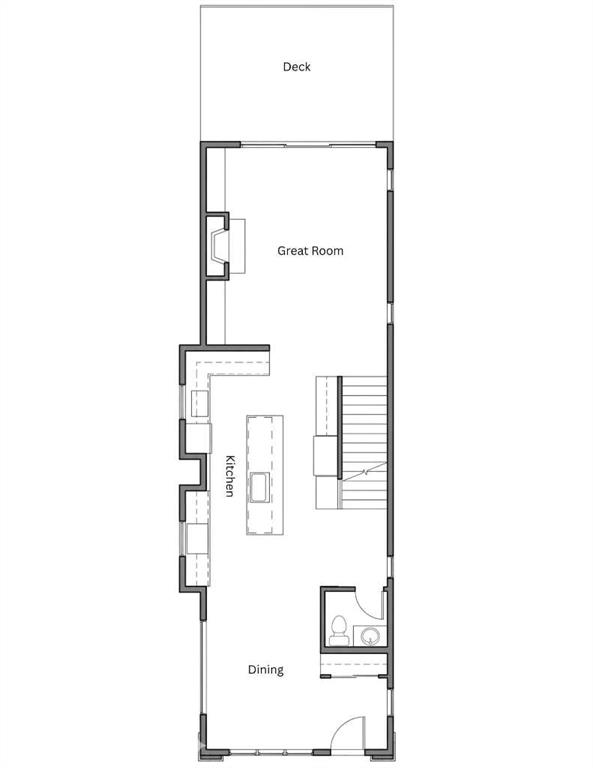
Modern luxury in the heart of Richmond. This exceptional detached two-story home offers a seamless open-concept floor plan designed for both sophisticated entertaining and comfortable family living. The main level is anchored by a gourmet chef’s kitchen featuring a massive quartz island, premium finishes, and a spacious dining area that flows into the inviting living room with a sleek gas fireplace. A convenient powder room completes this level. The upper floor is thoughtfully designed with a large laundry room and three generous bedrooms—each boasting its own private walk-in closet. The primary retreat is a true sanctuary, featuring an expansive layout and a spa-like five-piece ensuite with a deep soaker tub and double vanity. Rare for the area, this full walkout home leads to a professionally finished lower level. Enjoy a dedicated home gym, a stylish wet bar, a large recreation room, and a fourth guest bedroom. Outside, the walkout access provides a seamless transition to the backyard and the double detached garage. Experience the perfect blend of inner-city convenience and high-end craftsmanship just minutes from Marda Loop and downtown.

MLS ® #: A2295237
Listing Office: eXp Realty
Date Listed: March 20, 2026 - 4 days on site
Last Updated: Mar 24, 2026 02:25am MST

$1,399,000

Details

Style:
2 storey

Garage Size:
2

Interior:
built-in features, chandelier, closet organizers, double vanity, high ceilings, kitchen island, no animal home, no smoking home, open floorplan, quartz counters, soaking tub, walk-in closet(s), wet bar

Exterior:
other, private yard

Lot:
back lane, back yard, front yard, rectangular lot, street lighting

Parking/Garage:
double garage detached

Frontage (feet):
25.10

Even More Details

Taxes:
$0

Foundation:
poured concrete

Construction:
wood frame

Flooring:
carpet,hardwood,tile

Roof:
asphalt shingle

Heating:
forced air

Inclusions:
none

Room Sizes

Entrance

8`6" x 5`11"

Dining Room

16`0" x 11`0"

2pc Bathroom

5`6" x 5`0"

Kitchen With Eating Area

20`4" x 13`6"

Living Room

14`0" x 20`1"

Other

17`0" x 12`0"

Covered Porch

5`0" x 7`0"

Bedroom

9`9" x 12`0"

Walk-In Closet

5`2" x 4`3"

Bedroom

9`7" x 12`0"

Walk-In Closet

4`0" x 6`4"

4pc Bathroom

5`4" x 10`7"

Laundry

6`0" x 7`11"

5pc Ensuite bath

12`1" x 9`9"

Walk-In Closet

11`6" x 5`10"

Bedroom - Primary

16`0" x 14`0"

Bedroom

14`6" x 10`5"

6pc Bathroom

10`8" x 5`0"

Other

7`0" x 6`2"

Exercise Room

7`0" x 9`8"

Game Room

14`6" x 20`0"

Other

2`4" x 7`0"

Other

17`0" x 12`0"

Thoughtful | Loyal | Effective

Loving this home?

Breanna will call to discuss.

"They really make you feel like a part of their family" - Kim Mitchell

Similar Properties

53 Croxford Estates

Croxford Estates 4 Bed 3 Bath 3769sqft

Real Broker

243115 Range Road 281A

NONE 5 Bed 3 Bath 2065sqft

Real Broker

Open House

Reduced

448 13 St.

Hillhurst 5 Bed 3.5 Bath 2131sqft

RE/MAX Realty Professionals

Pending

140 Gleneagles Landing

GlenEagles 4 Bed 2.5 Bath 1825sqft

The Real Estate District

32 Monterra Landing

Monterra 4 Bed 3 Bath 1728sqft

CIR Realty

434072 Clear Mountain Drive

NONE 6 Bed 6 Bath 3628sqft

Royal LePage Benchmark

Open House

Reduced

4906 21 St.

Altadore 5 Bed 3.5 Bath 2355sqft

eXp Realty

13016 Lake Twintree Road

Lake Bonavista 5 Bed 3 Bath 2202sqft

Real Estate Professionals Inc.

23 Cheltenham Road

Collingwood 4 Bed 3.5 Bath 2571sqft

Century 21 Bravo Realty

“A lot of people viewed the movie and pictures within the first 24 hours and I believe we had around 10 showings within the first two days.”.
 
- Gerald Lichti
“The A-Team sold our Condo when other REALTORS® couldn't.”.
 
- Colleen Bussey
“I think what sets Breanna apart is her genuine care for her clients.”.
 
- Shaun & Robyn Vey

Breanna
Albrecht