4009 15A St. SW | Altadore | Calgary

4009 15A Street | Altadore

Beds
4 1
Baths
4.5
Sqft
2,807
Lot Sqft
3,124
Year Built
2026
Days Listed
23
Type
Semi Detached (Half Duplex)
Status
Active
Garage
Yes
Foundation
Concrete
Condo Fee
No
Price Change
None

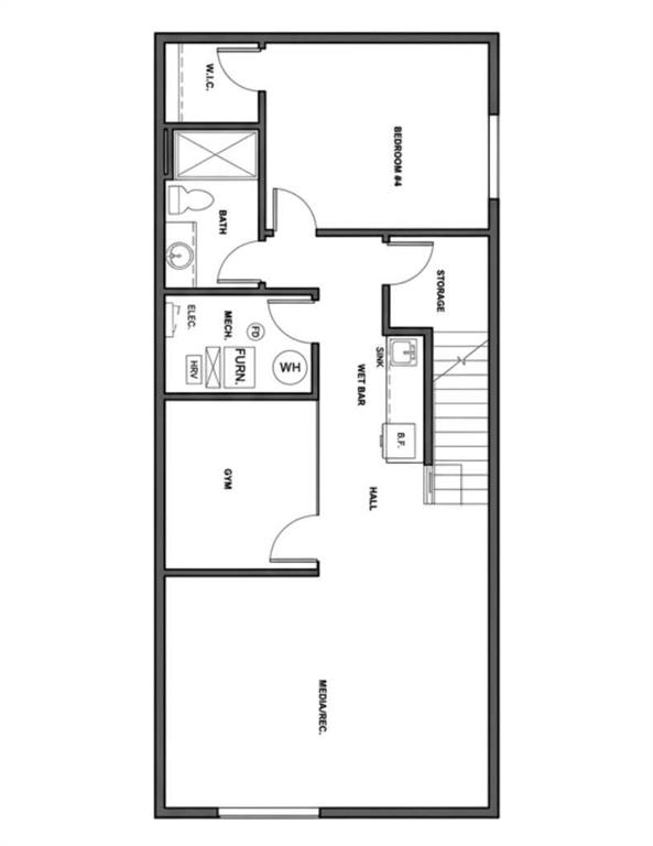
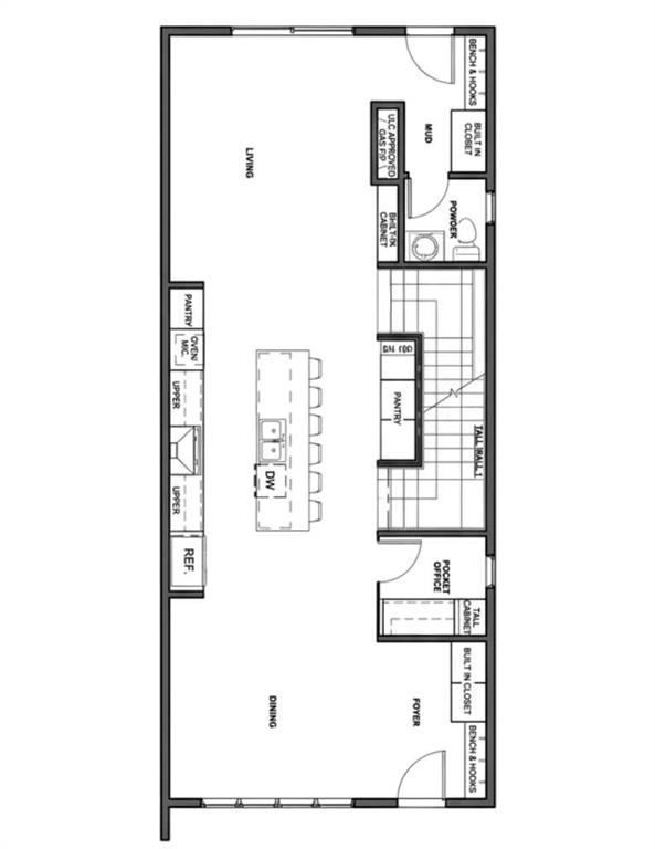
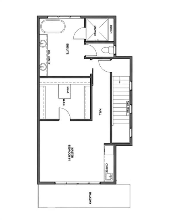
This gorgeous three-story duplex on a premier Altadore street offers an expansive floor plan meticulously designed for modern living. This build features two curated color palettes—light and dark. Please refer to photos of the builder's previous builds for a preview of both finish styles. The main level welcomes you with a formal foyer and an elegant dining room that flows into a chef-inspired kitchen featuring a massive quartz island, a walk-in pantry, and a dedicated pocket office—perfect for working from home. Relax in the sun-filled living room anchored by a sleek gas fireplace, which leads into a functional rear mudroom and a conveniently located powder room. The second level is thoughtfully laid out with three bedrooms and a separate laundry room. This floor includes a spacious secondary master bedroom with its own private ensuite bath and walk-in closet, a second bedroom also featuring a walk-in closet, and a versatile third bedroom. Highlighting the home's unique design, the entire third floor is a private primary retreat, offering ultimate seclusion with a private balcony, a massive walk-in closet with its own center island, and a spa-like ensuite featuring a deep soaker tub, double vanity, and custom shower. The fully developed basement adds even more value with a dedicated home gym, a spacious media room, a stylish wet bar, a fifth bedroom, and ample storage. This stunning property blends luxury and function, situated just steps from the vibrant shops of Marda Loop, top-tier schools, and local parks.

MLS ® #: A2295253
Listing Office: eXp Realty
Date Listed: March 20, 2026 - 23 days on site
Last Updated: Apr 12, 2026 04:25am MST

$1,549,000

Details

Style:
3 (or more) storey, attached-side by side

Garage Size:
2

Interior:
built-in features, chandelier, closet organizers, double vanity, high ceilings, kitchen island, no animal home, no smoking home, open floorplan, quartz counters, soaking tub, walk-in closet(s), wet bar

Exterior:
private yard

Lot:
back lane, back yard, rectangular lot

Parking/Garage:
double garage detached

Frontage (feet):
25.00

Even More Details

Taxes:
$0

Foundation:
poured concrete

Construction:
wood frame

Flooring:
carpet,hardwood,tile

Roof:
asphalt shingle

Heating:
forced air

Inclusions:
none

Room Sizes

Entrance

9`6" x 6`9"

Dining Room

13`5" x 12`8"

Office

6`9" x 6`0"

Pantry

2`5" x 7`3"

Kitchen With Eating Area

18`7" x 13`5"

Living Room

15`0" x 14`8"

Mud Room

8`3" x 5`1"

2pc Bathroom

5`1" x 5`2"

Other

21`4" x 10`0"

Bedroom

12`0" x 11`10"

Walk-In Closet

4`3" x 4`6"

Bedroom

9`9" x 15`9"

4pc Bathroom

9`9" x 5`0"

Walk-In Closet

6`11" x 9`3"

Bedroom

14`0" x 12`11"

5pc Ensuite bath

6`11" x 15`11"

Laundry

9`3" x 6`0"

5pc Ensuite bath

16`10" x 12`6"

Bedroom - Primary

13`0" x 15`9"

Walk-In Closet

8`9" x 11`4"

Other

7`11" x 2`0"

Balcony

5`0" x 20`8"

Game Room

13`0" x 18`10"

Exercise Room

10`0" x 9`0"

Other

2`6" x 7`6"

Bedroom

13`0" x 11`0"

Walk-In Closet

5`6" x 4`9"

3pc Ensuite bath

9`6" x 5`6"

Thoughtful | Loyal | Effective

Loving this home?

Breanna will call to discuss.

"This what made this experience exceptional: I wasn't dealing with a REALTOR®️ , I was working with family" - Waseem Khourieh

Similar Properties

Open House

1517 32 Ave.

South Calgary 4 Bed 4.5 Bath 2732sqft

eXp Realty

Open House

749 Serenity Bend

NONE 3 Bed 2.5 Bath 1738sqft

RE/MAX First

Open House

1529 29 Ave.

South Calgary 6 Bed 4.5 Bath 2627sqft

RE/MAX Realty Professionals

5011 21 St.

Altadore 6 Bed 4.5 Bath 2719sqft

RE/MAX House of Real Estate

2716 3 Ave.

West Hillhurst 4 Bed 4.5 Bath 2653sqft

RE/MAX House of Real Estate

Open House

2032 Bowness Road #Unit 1

West Hillhurst 4 Bed 4.5 Bath 2819sqft

Century 21 Bravo Realty

907 36A St.

Parkdale 6 Bed 4.5 Bath 2624sqft

RE/MAX House of Real Estate

New

2231 2 Ave.

West Hillhurst 6 Bed 6.5 Bath 2949sqft

RE/MAX House of Real Estate

2006 41 Ave.

Altadore 4 Bed 4.5 Bath 2624sqft

eXp Realty

“Breanna was a dream to work with - knowledgeable, attentive, professional and organized. I really appreciate how she and Tom operate their business - 'integrity' is the word that comes to mind.”.
 
- Michele Hannay
“She was extremely professional, knowledgeable, transparent and reliable through the whole process. It truly felt like having a friend on the "inside" working for us.”.
 
- Kevin and Sandie
“The A Team helped us get our confidence back. But that was just the start. The hard work came after that. It hasn’t been easy and at times it has been extremely stressful but thank you to Breanna for her relentless hard work for her clients”.
 
- Louise Melvin

Breanna
Albrecht