32 Midland Place SE | Midnapore | Calgary

New

New

32 Midland Place | Midnapore

Beds
3 1
Baths
2.0
Sqft
1,070
Lot Sqft
3,369
Year Built
1980
Days Listed
1
Type
Detached
Status
Active
Garage
No
Foundation
Concrete
Condo Fee
No
Price Change
None

Welcome to this beautifully updated bungalow in the established lake community of Midnapore, offering nearly 2,000 sq ft of comfortable living space and outstanding value in a highly convenient location, just steps to the back gate of Midnapore Lake and down the street from the main entrance. The main floor features three spacious bedrooms, luxury vinyl plank flooring, a renovated kitchen with modern cabinetry and updated appliances, plus a refreshed full bathroom designed for everyday functionality. The fully developed basement adds valuable extra living space, perfect for a family room, home office, guest area, or flexible use to suit your lifestyle. Major updates including windows and roof completed in 2013 provide added peace of mind, while the large fully fenced backyard offers plenty of room for kids, pets, gardening, or entertaining on the spacious deck. This home is ideally located just steps from Fish Creek Provincial Park and includes access to Midnapore Lake, where you can enjoy year-round activities including swimming, skating, and family recreation. Walking distance to schools, transit, and everyday amenities adds to the convenience, with nearby Midnapore School offering a Mandarin bilingual program and Centennial High School known for its Advanced Placement program. A fantastic opportunity to own an updated home in one of south Calgary’s most desirable lake communities.

MLS ® #: A2297933
Listing Office: RE/MAX Landan Real Estate
Date Listed: April 2, 2026 - 1 days on site
Last Updated: Apr 03, 2026 02:25am MST

$599,900

Details

Style:
bungalow

Interior:
no animal home, no smoking home, open floorplan

Exterior:
other, private yard

Lot:
back lane, back yard, front yard, landscaped, level, private

Parking/Garage:
off street

Frontage (feet):
32.09

Even More Details

Taxes:
$0

Foundation:
poured concrete

Construction:
wood frame

Flooring:
tile,vinyl plank

Roof:
asphalt shingle

Heating:
forced air

Inclusions:
n/a

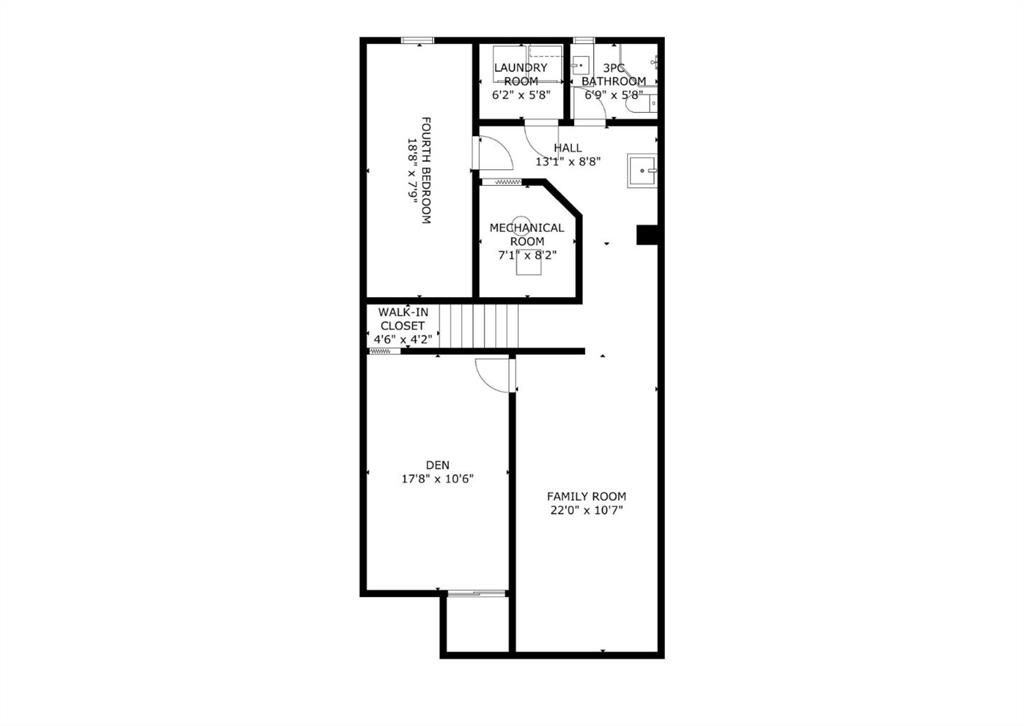
Room Sizes

Kitchen

11`6" x 9`11"

Living Room

17`1" x 12`2"

4pc Bathroom

8`2" x 7`7"

Bedroom - Primary

12`0" x 11`1"

Bedroom

11`6" x 9`2"

Bedroom

9`10" x 9`2"

Family Room

22`0" x 10`7"

Bedroom

18`8" x 17`9"

3pc Bathroom

6`9" x 5`8"

Thoughtful | Loyal | Effective

Loving this home?

Breanna will call to discuss.

"The whole experience from start to finish was exactly what you look for when buying a house" - Makenzie Corcoran

Similar Properties

New

90 Nolancrest Rise

Nolan Hill 3 Bed 2.5 Bath 1832sqft

Real Estate Professionals Inc.

Pending

228 Sage Bluff Drive

Sage Hill 5 Bed 3.5 Bath 2149sqft

Real Estate Professionals Inc.

Reduced

433 Coral Springs Place

Coral Springs 6 Bed 3.5 Bath 2142sqft

eXp Realty

Reduced

391 Scenic Glen Place

Scenic Acres 3 Bed 3.5 Bath 1666sqft

RE/MAX Realty Professionals

Pending

New

235 Redstone Heights

Redstone 4 Bed 3.5 Bath 2097sqft

RE/MAX Crown

180 Magnolia Terrace

Mahogany 3 Bed 2.5 Bath 1733sqft

Town Residential

Pending

85 Quartz Crescent

Greystone 3 Bed 2.5 Bath 1887sqft

eXp Realty

New

5 Bridlecrest Court

Bridlewood 4 Bed 3.5 Bath 2009sqft

RE/MAX First

1329 Prairie Springs Park

Prairie Springs 3 Bed 3.5 Bath 1977sqft

Century 21 Masters

“A lot of people viewed the movie and pictures within the first 24 hours and I believe we had around 10 showings within the first two days.”.
 
- Gerald Lichti
“She was extremely professional, knowledgeable, transparent and reliable through the whole process. It truly felt like having a friend on the "inside" working for us.”.
 
- Kevin and Sandie
“During negotiations Breanna was a huge asset and her skill and knowledge really helped us get the best deal we could.”.
 
- Brendon V.

Breanna
Albrecht