3550 45 St. SW #102 | Glenbrook | Calgary

Reduced

Reduced

3550 45 Street #102 | Glenbrook

Beds
0 2
Baths
2.5
Sqft
547
Lot Sqft
0
Year Built
2026
Days Listed
20
Type
Row/Townhouse
Status
Active
Garage
No
Foundation
Concrete
Condo Fee
$245
Price Change
-$20k, 15-Apr

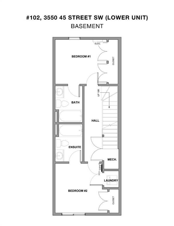
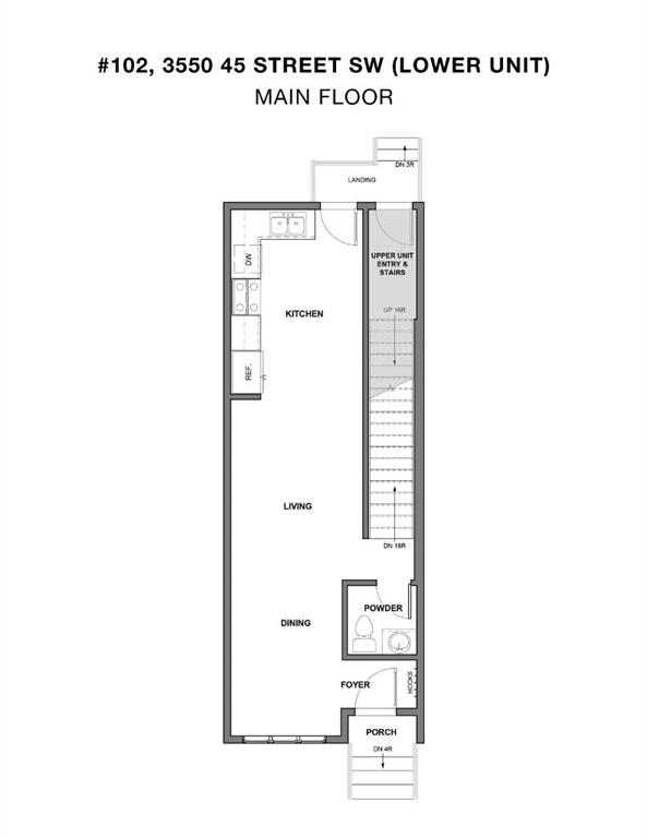
*EFFECTIVE PRICE OF JUST $342,857 for FIRST TIME BUYERS who qualify for the new GST REBATE!* This is an incredible opportunity for a BRAND NEW, MOVE-IN READY TOWNHOME in Glenbrook! Perfect for a savvy investor, this townhome project is AIRBNB FRIENDLY, plus first-time home buyers could qualify for up to a 100% GST REBATE* on their purchase! This move-in ready unit boasts a sunny main floor plus a FULLY FINISHED BASEMENT totalling nearly 1,000 SQ FT of developed living space, with 2 beds & 2.5 baths. Accessible by a private entrance facing the street, the sunny main floor showcases low-maintenance luxury vinyl plank (LVP) flooring, and an open-concept living space with large windows. The modern kitchen features 2-tone slab-style cabinetry, quartz counters, and a Samsung stainless steel appliance package including a French-door refrigerator and ceramic top stove. The adjacent dining room is perfect for family meals and entertaining, while the living room's oversized window fills the space with natural light. A stylish 2-pc powder room completes this level. Downstairs, 2 bedrooms and 2 full bathrooms reside. Each bathroom boasts custom cabinetry, quartz counters, undermount sinks, and tiled tub/showers. Completing the basement is a convenient laundry closet. Durable and stylish, the exterior features Hardie Board and Smart Board detailing, and brushed concrete steps and walks. Located in the heart of the sought-after SW inner-city community of Glenbrook, these brand-new townhomes boast a fantastic location right across the street from Glenbrook School and the Glenbrook Community Association. A number of major amenities are located within an easy 15-min walk, including Safeway, Glamorgan Bakery, and multiple restaurants including Richmond’s Pub. Plus, nearly every imaginable amenity can be found in nearby Westhills and Signal Hill Centres which are just a 6 minute drive away. Although peacefully tucked away on a lovely residential street, Sarcee Trail and Richmond Rd are both readily accessible, making everyday commuting around the city a breeze! Make this new townhome yours! *Interior photos are taken from a similar project by the same builder - details may vary. *Buyers must qualify for the GST rebate program, enquire for details. *VISIT MULTIMEDIA LINK FOR FULL DETAILS INCLUDING FLOORPLANS*

MLS ® #: A2298714
Listing Office: RE/MAX House of Real Estate
Date Listed: April 2, 2026 - 21 days on site
Last Updated: Apr 22, 2026 10:05am MST

$360,000

Details

Style:
townhouse-stacked

Interior:
open floorplan, quartz counters, separate entrance

Exterior:
private entrance

Lot:
corner lot

Parking/Garage:
none

Even More Details

Taxes:
$0

Pets Allowed:
call

Foundation:
poured concrete

Construction:
cement fiber board,concrete,wood frame

Flooring:
tile,vinyl plank

Roof:
asphalt shingle

Heating:
forced air

Inclusions:
none

Condo Fee Includes:
common area maintenance,insurance,reserve fund contributions

Room Sizes

Living Room

14`0" x 7`11"

Kitchen

13`7" x 9`6"

Dining Room

10`0" x 7`0"

Bedroom - Primary

10`11" x 10`4"

Bedroom

10`11" x 8`11"

2pc Bathroom

0`0" x 0`0"

4pc Bathroom

0`0" x 0`0"

4pc Ensuite bath

0`0" x 0`0"

Thoughtful | Loyal | Effective

Loving this home?

Breanna will call to discuss.

"This what made this experience exceptional: I wasn't dealing with a REALTOR®️ , I was working with family" - Waseem Khourieh

Similar Properties

New

1530 bayside Ave. #202

Bayside 3 Bed 2.5 Bath 1384sqft

CIR Realty

Reduced

413 River Ave. #609

Riverview 3 Bed 3 Bath 1392sqft

CIR Realty

30 Evanscrest Park

Evanston 3 Bed 2.5 Bath 1495sqft

Royal LePage Blue Sky

Pending

1020 Windsong Drive

Windsong 3 Bed 3.5 Bath 1330sqft

Century 21 Masters

624 14 Ave.

Beltline 2 Bed 2 Bath 830sqft

The Home Hunters Real Estate Group Ltd.

25 Wildwoods Court #1115

Wildflower 4 Bed 2.5 Bath 1327sqft

RE/MAX House of Real Estate

15389 6 St.

Livingston 3 Bed 2.5 Bath 1199sqft

Century 21 Bamber Realty LTD.

New

113 Cobblestone Gate

Cobblestone Creek 3 Bed 2.5 Bath 1139sqft

MaxWell Capital Realty

New

249 Sage Hill Grove

Sage Hill 3 Bed 2.5 Bath 1290sqft

The Real Estate District

“I never had to wait any length of time for her to answer my call or text. ”.
 
- Diane Elizabeth Gaulton
“She was extremely professional, knowledgeable, transparent and reliable through the whole process. It truly felt like having a friend on the "inside" working for us.”.
 
- Kevin and Sandie
“During negotiations Breanna was a huge asset and her skill and knowledge really helped us get the best deal we could.”.
 
- Brendon V.

Breanna
Albrecht