1903 McCaskill Drive | Crossfield | Crossfield

1903 McCaskill Drive | Crossfield

Beds
3 0
Baths
2.5
Sqft
1,515
Lot Sqft
2,727
Year Built
2025
Days Listed
26
Type
Semi Detached (Half Duplex)
Status
Active
Garage
No
Foundation
Concrete
Condo Fee
No
Price Change
None

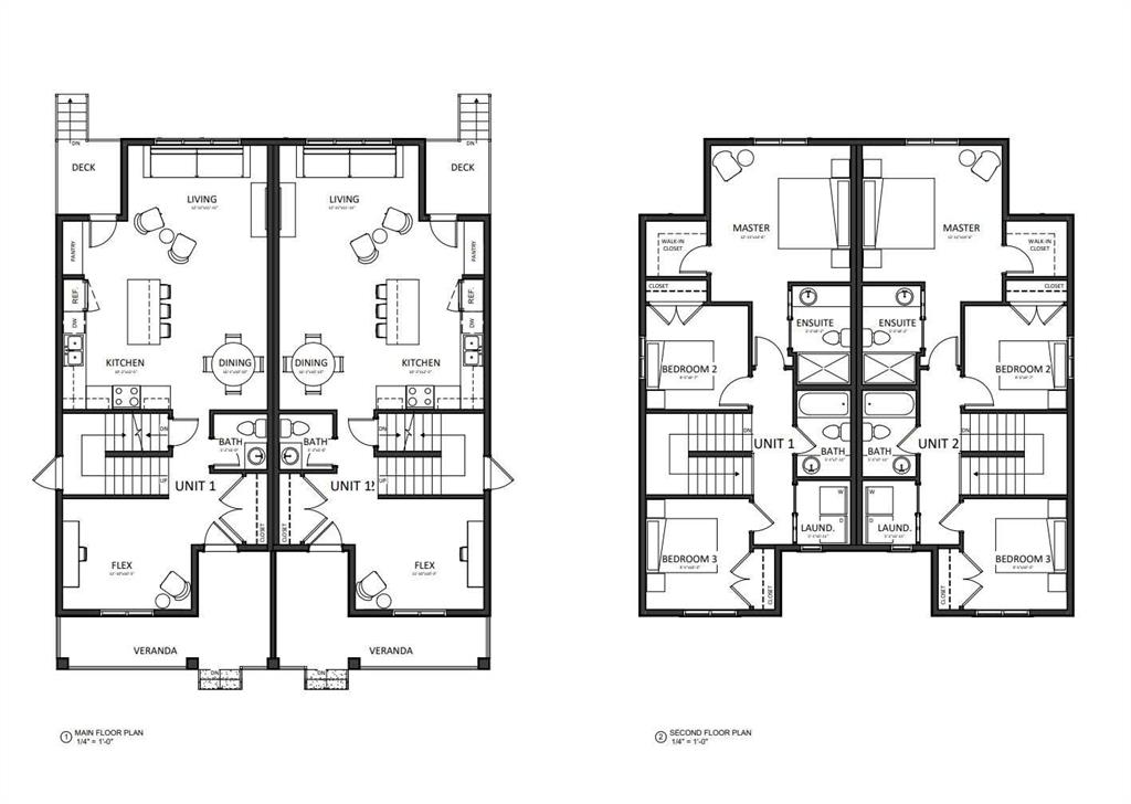
ACT NOW! Possession for May 2026! Quality new construction home built by a local Master Builder in Crossfield, who has lived in the community for 30+ years! Situated on what is arguably the best lot in this new development, this West facing end unit provides additional parking options and overlooks the baseball diamond and adjacent green space. Additionally, this location offers walking distance two schools, the local Community Centre and just minutes from the quaint downtown offering a multitude of amenities. This 3 bedroom, 3 bathroom semi-detached home spans over 1500 sq ft and features an open main floor layout. The Kitchen boasts abundant cabinetry, high-end appliances, and a beautiful, functional center island, ideal for extra counter space, homework, and entertaining guests. A patio door off the dining area leads directly to the deck and back yard, uncommonly found in this price point. This home has back lane access and a parking pad, a garage could still be added at an additional cost. Upstairs, the Primary Bedroom includes a walk-in closet and full ensuite bathroom. The two additional bedrooms are generously sized with convenient access to the centrally located main bathroom. Laundry is also conveniently located on this upper floor. Additionally, the home features side door access for private entry to the unfinished basement, allowing for additional future living space and includes bathroom rough-in. What sets this home apart is its construction by a Local Master Builder, employing Journeyman Tradesmen in all aspects of the build. These builders, along with their families, have been part of this community for multiple generations and take pride in constructing quality homes for local families. No expense has been spared in the use of upgraded materials during both the building process and the finishing touches. Features include Lux windows, stone countertops, upgraded plumbing fixtures and lighting fixtures, as well as higher-end appliances which includes the washer and dryer, also not a common inclusion. This home is currently under construction. There is still some opportunity for custom upgrades, if you act fast! The area size was calculated by applying the RMS to the blueprints provided by the builder.

MLS ® #: A2302711
Listing Office: Real Broker
Date Listed: April 17, 2026 - 26 days on site
Last Updated: May 13, 2026 10:05am MST

$499,000

Details

Style:
2 storey, attached-side by side

Interior:
kitchen island, walk-in closet(s)

Exterior:
none, private entrance

Lot:
level

Parking/Garage:
parking pad

Frontage (feet):
23.92

Even More Details

Taxes:
$0

Foundation:
poured concrete

Construction:
composite siding,vinyl siding,wood frame

Flooring:
laminate

Roof:
asphalt shingle

Heating:
forced air,natural gas

Inclusions:
n/a

Room Sizes

Dining Room

16`1" x 10`10"

Living Room

12`11" x 11`11"

Kitchen

12`5" x 10`2"

Flex Space

11`10" x 10`3"

Laundry

5`11" x 5`1"

Bedroom - Primary

14`6" x 12`11"

Bedroom

9`7" x 9`5"

Bedroom

10`3" x 9`5"

2pc Bathroom

5`2" x 5`0"

4pc Bathroom

7`11" x 5`1"

3pc Ensuite bath

9`2" x 5`5"

Thoughtful | Loyal | Effective

Loving this home?

Breanna will call to discuss.

"They really make you feel like a part of their family" - Kim Mitchell

Similar Properties

345 Mahogany Blvd.

Mahogany 4 Bed 3.5 Bath 1386sqft

Stonemere Real Estate Solutions

Pending

9 Douglasbank Gardens

Douglasdale/Glen 3 Bed 3 Bath 1511sqft

REMAX Innovations

Pending

New

272 Legacy Glen Parade

Legacy 3 Bed 2.5 Bath 1589sqft

MaxWell Canyon Creek

68 Lewiston St.

Lewisburg 4 Bed 3 Bath 1690sqft

Bode Platform Inc.

372 Carrington Way

Carrington 3 Bed 2.5 Bath 1801sqft

Homecare Realty Ltd.

New

101 Ranch Rise

The Ranch_Strathmore 4 Bed 2.5 Bath 1804sqft

CIR Realty

Reduced

339 Wolf Creek Way

Wolf Willow 4 Bed 3.5 Bath 1650sqft

Melcom Realty LTD.

243 Cornerstone Ave.

Cornerstone 4 Bed 3.5 Bath 1553sqft

Royal LePage METRO

New

80 Emberside Grove

Fireside 3 Bed 2.5 Bath 1539sqft

Bode Platform Inc.

“The A Team helped us get our confidence back. But that was just the start. The hard work came after that. It hasn’t been easy and at times it has been extremely stressful but thank you to Breanna for her relentless hard work for her clients”.
 
- Louise Melvin
“(Breanna) really did exactly what she promised to do. Thank you The A-Team for all your hard work and for making selling a home easy. ”.
 
- Rafal Wrobel
“[Breanna] told me with 100% confidence and certainty she could get the job done and that’s exactly what happened.”.
 
- Channing Pass

Breanna
Albrecht