3043 28 St. SW | Killarney/Glengarry | Calgary

New

New

3043 28 Street | Killarney/Glengarry

Beds
3 2
Baths
3.5
Sqft
1,955
Lot Sqft
3,121
Year Built
2007
Days Listed
-0
Type
Semi Detached (Half Duplex)
Status
Active
Garage
Yes
Foundation
Concrete
Condo Fee
No
Price Change
None

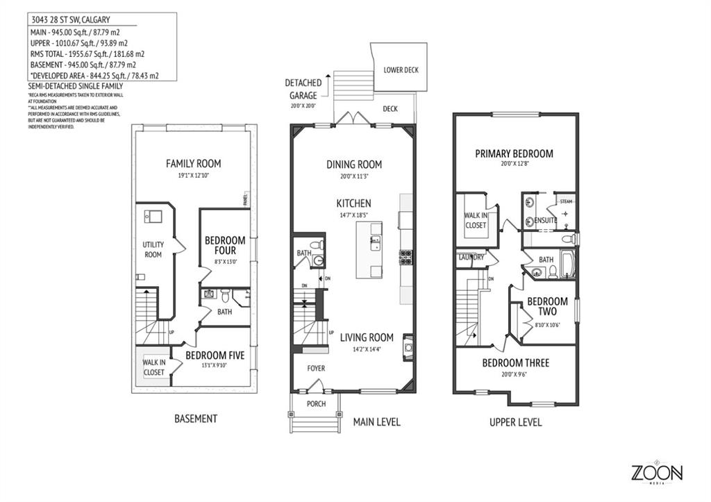
Ideally located in the heart of Killarney, this beautifully maintained custom-built home combines thoughtful design with a warm and inviting atmosphere with a lot of updates. With a desirable west-facing backyard, you’ll enjoy afternoon sunshine and long summer evenings on the spacious two-tier deck. This two storey home has over 2800 square feet of developed space. Step inside and you’re welcomed by beautifully refinished hardwood floors and a bright, open main floor designed for everyday living and entertaining. The layout flows effortlessly from the sitting area into the kitchen, dining space, and comfortable living room. At the heart of the home is the gourmet kitchen, featuring quartz countertops, a large island with stylish new pendant lighting, abundant cabinetry, stainless steel appliances including a gas range and new dishwasher, pantry storage, and under-cabinet lighting. The adjacent sitting area offers plenty of space to relax, highlighted by a cozy gas fireplace. The dining and living areas open through west-facing double doors to the sunny backyard and two-tier deck, creating the perfect indoor-outdoor connection. The yard is complemented by a detached double garage. In 2025 the back lane was paved. Upstairs, you’ll find three generous bedrooms which includes a spacious primary suite with a walk-in closet and a well-appointed ensuite with double sinks and a large steam shower. The fully developed lower level offers excellent flexibility with a large recreation room currently used as a gym, a full bathroom, and another bedroom with a walk-in closet. All doors in the home are solid core. The dedicated bike room could also be converted into a fourth bedroom if needed. Recent upgrades provide peace of mind, including new roof shingles with additional venting, a new garage door, a high-efficiency furnace, and an on-demand hot water system. Both the furnace and hot water system come with a five-year warranty. Additional features include a new water softener and a convenient outdoor hot water tap. All of this in a fantastic location close to transit, shopping, restaurants, and everyday amenities, making it easy to enjoy everything Killarney has to offer. PLEASE compare this to others and you will be impressed. Take a tour today.

MLS ® #: A2303990
Listing Office: Real Broker
Date Listed: April 23, 2026 - 0 days on site
Last Updated: Apr 23, 2026 11:05am MST

$839,900

Details

Style:
2 storey, attached-side by side

Garage Size:
2

Interior:
ceiling fan(s), double vanity, kitchen island, open floorplan, pantry, quartz counters, walk-in closet(s)

Exterior:
bbq gas line, private yard

Lot:
few trees

Parking/Garage:
double garage detached

Frontage (feet):
24.94

Even More Details

Taxes:
$0

Foundation:
poured concrete

Construction:
stone,stucco,wood frame

Flooring:
carpet,ceramic tile,hardwood

Roof:
asphalt shingle

Heating:
forced air

Inclusions:
none

Room Sizes

Kitchen

14`7" x 18`5"

Dining Room

20`0" x 11`3"

Living Room

14`2" x 14`4"

Family Room

19`1" x 12`10"

Foyer

6`0" x 6`2"

Laundry

5`0" x 3`2"

Furnace/Utility Room

6`3" x 14`0"

Bedroom - Primary

20`0" x 12`8"

Bedroom

8`10" x 10`6"

Bedroom

13`1" x 9`10"

Bedroom

8`3" x 13`0"

Walk-In Closet

6`10" x 8`10"

Walk-In Closet

5`8" x 6`8"

2pc Bathroom

4`10" x 4`10"

3pc Bathroom

8`3" x 6`1"

4pc Bathroom

8`8" x 5`0"

5pc Ensuite bath

8`8" x 8`10"

Bedroom

9`0" x 20`0"

Thoughtful | Loyal | Effective

Loving this home?

Breanna will call to discuss.

"There was no stone left unturned and we felt very confident with our final decision" - Sydney Mills

Similar Properties

4128 7 Ave.

Rosscarrock 4 Bed 3.5 Bath 2007sqft

Easy List Realty

New

232 24 Ave.

Tuxedo Park 5 Bed 3.5 Bath 2009sqft

RE/MAX Realty Professionals

7929 47 Ave.

Bowness 5 Bed 3.5 Bath 2054sqft

TREC The Real Estate Company

3043 28 St.

Killarney/Glengarry 5 Bed 3.5 Bath 1955sqft

Real Broker

Pending

New

2010 50 Ave.

Altadore 3 Bed 2.5 Bath 2107sqft

RE/MAX House of Real Estate

Reduced

3128 39 St.

Glenbrook 4 Bed 3.5 Bath 1724sqft

Initia Real Estate

New

5232 21 Ave.

Montgomery 4 Bed 3.5 Bath 1804sqft

Revere

Reduced

231 12 Ave.

Crescent Heights 4 Bed 3.5 Bath 1887sqft

RE/MAX Realty Professionals

Reduced

8528 47 Ave.

Bowness 4 Bed 2.5 Bath 1901sqft

PREP Realty

“The A Team helped us get our confidence back. But that was just the start. The hard work came after that. It hasn’t been easy and at times it has been extremely stressful but thank you to Breanna for her relentless hard work for her clients”.
 
- Louise Melvin
“Breanna was a dream to work with - knowledgeable, attentive, professional and organized. I really appreciate how she and Tom operate their business - 'integrity' is the word that comes to mind.”.
 
- Michele Hannay
“I think what sets Breanna apart is her genuine care for her clients.”.
 
- Shaun & Robyn Vey

Breanna
Albrecht