707 Sovereign Common SW | Shaganappi | Calgary

707 Sovereign Common | Shaganappi

Beds
2
Baths
2.5
Sqft
1,315
Lot Sqft
0
Year Built
2025
Days Listed
167
Type
Row/Townhouse
Status
Active
Garage
Yes
Foundation
Concrete
Condo Fee
$270
Price Change
-$20k, 10-Nov

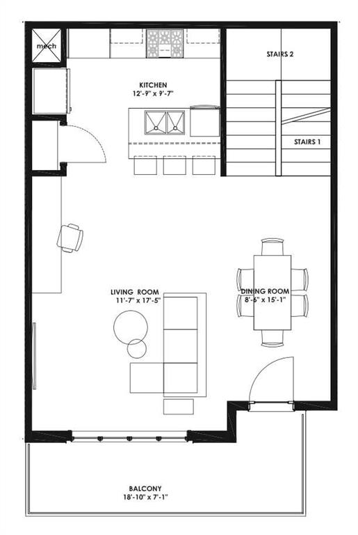
Move in before the end of the year! Current Promotion Offered: 2 years of FREE condo fees + complementary central air conditioning, allowing you to enjoy comfortable maintenance-free living from day one! Welcome to Crown Park, located just 5 minutes from downtown, Calgary’s newest inner-city community, blends striking architectural design with modern elegance. Set on 13 acres of exquisite green spaces, the rolling landscape of the site has influenced the design of these park-side properties, offering panoramic views of the downtown skyline. The 'Manhattan' is a thoughtfully designed 3-storey city townhome offering an open-concept floor plan with all the luxuries you could desire in your next home. With over 1,300 square feet of developed space, this home features 2 bedrooms, 2.5 bathrooms, generous living areas, and an oversized private attached garage. The contemporary design centers the living room between the kitchen and dining area, creating the perfect space for entertaining guests. The home also boasts 9-foot ceilings on the main level, providing a bright and inviting atmosphere throughout the day. The gourmet kitchen is upgraded with full-height soft-close cabinetry to the ceiling, stone countertops, and a suite of stainless-steel appliances, including an electric cooktop, chimney hood fan, and a built-in microwave & oven. The homes are designed back-to-back to maximize space, creating an expansive main living area with a wall of windows and access to a private balcony with picturesque views of the surrounding landscape. The upper level features a primary bedroom with its own en suite, complete with a walk-in shower and walk-through wardrobe. A second generously sized bedroom, an additional full bathroom, and convenient upper-level laundry add to the home's appeal. The nearly 19'x7' balcony is the perfect outdoor living space complete with BBQ gas-line and A/C rough-in and the oversized attached garage is the perfect space to keep your vehicle and valuables safe all year long. Crown Park is one of the city's most coveted developments due to its prominent location near the golf course, walkability to transit, and easy access to downtown's countless amenities. This property is perfect for those who enjoy proximity to walking trails along the Bow River, dog-friendly parks, and local hot spots for dining and entertainment. The home comes complete with an extended 3-year workmanship warranty, moving concierge, and complimentary legal fees, offering peace of mind and an easy transition into your new home. Please note: Photos are from a previous property and may not exactly represent the property for sale.

MLS ® #: A2232784
Listing Office: Charles
Date Listed: June 23, 2025 - 167 days on site
Last Updated: Dec 07, 2025 06:30am MST

$599,900

Details

Style:
3 (or more) storey

Garage Size:
1

Interior:
no animal home, no smoking home, open floorplan, pantry, quartz counters, vinyl windows

Exterior:
balcony, bbq gas line, private entrance

Lot:
back lane, landscaped, paved

Parking/Garage:
single garage attached

Even More Details

Pets Allowed:
restrictions,cats ok,dogs ok,yes

Foundation:
poured concrete

Construction:
wood frame

Flooring:
carpet,tile,vinyl

Roof:
asphalt shingle

Heating:
forced air

Inclusions:
n/a

Condo Fee Includes:
insurance,maintenance grounds,professional management,reserve fund contributions,snow removal,trash

Room Sizes

Living Room

11`7" x 17`5"

Dining Room

8`6" x 15`1"

Kitchen

12`9" x 9`7"

2pc Bathroom

Bedroom - Primary

10`6" x 13`8"

3pc Ensuite bath

Bedroom

9`3" x 9`4"

4pc Bathroom

Laundry

Thoughtful | Loyal | Effective

Loving this home?

Breanna will call to discuss.

"They really make you feel like a part of their family" - Kim Mitchell

Similar Properties

119 Edgepark Villas

Edgemont 2 Bed 3 Bath 1477sqft

Houston Realty.ca

615 6 Ave. #130

Downtown East Village 1 Bed 1.5 Bath 1491sqft

Real Broker

530 56 Ave. #2

Windsor Park 3 Bed 3.5 Bath 1260sqft

eXp Realty

Reduced

3423 5 Ave. #2

Parkdale 3 Bed 3.5 Bath 1428sqft

Keller Williams BOLD Realty

3569 19 Ave.

Killarney/Glengarry 3 Bed 3.5 Bath 1102sqft

RE/MAX House of Real Estate

7 wolf Crescent

Wedderburn 3 Bed 3 Bath 1363sqft

CIR Realty

1802 19 Ave.

Capitol Hill 4 Bed 3.5 Bath 1364sqft

Royal LePage METRO

Reduced

185 Mahogany Gardens #502

Mahogany 3 Bed 2.5 Bath 1733sqft

Jayman Realty Inc.

50 Christie Gardens

Christie Park 3 Bed 2.5 Bath 1532sqft

RE/MAX House of Real Estate

“She was extremely professional, knowledgeable, transparent and reliable through the whole process. It truly felt like having a friend on the "inside" working for us.”.
 
- Kevin and Sandie
“(Breanna) really did exactly what she promised to do. Thank you The A-Team for all your hard work and for making selling a home easy. ”.
 
- Rafal Wrobel
“During negotiations Breanna was a huge asset and her skill and knowledge really helped us get the best deal we could.”.
 
- Brendon V.

Breanna
Albrecht