2716 3 Ave. NW | West Hillhurst | Calgary

2716 3 Avenue | West Hillhurst

Beds
3 1
Baths
4.5
Sqft
2,653
Lot Sqft
2,999
Year Built
2026
Days Listed
76
Type
Semi Detached (Half Duplex)
Status
Active
Garage
Yes
Foundation
Concrete
Condo Fee
No
Price Change
None

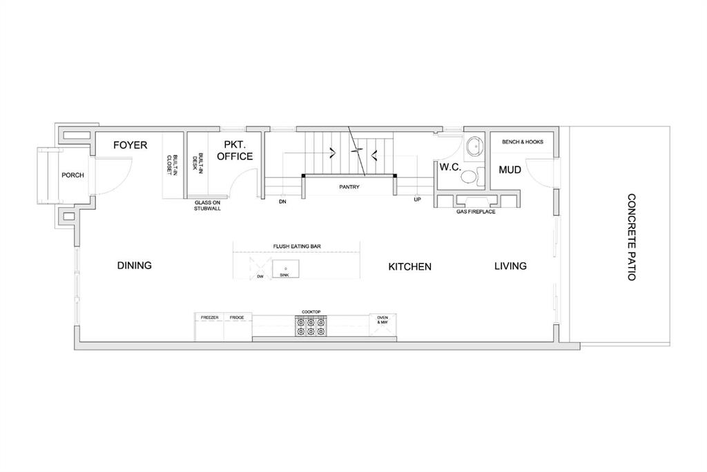
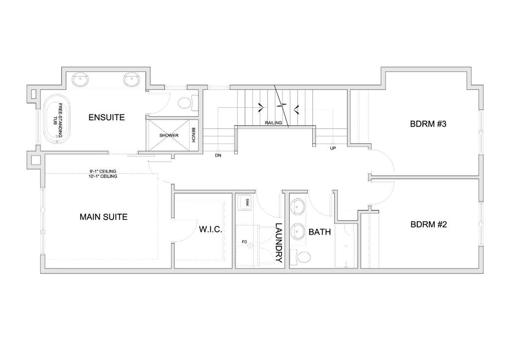
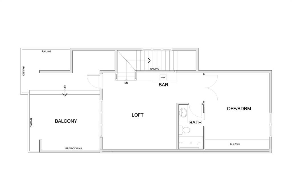
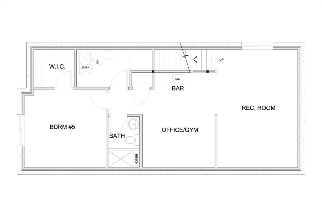
Located in WEST HILLHURST, this modern SEMI-DETACHED NON SUITED infill delivers the kind of layout and design that simply works for inner-city living. Clean architecture, generous windows, and multiple outdoor spaces set the tone and well-suited for daily life near the river, downtown, and some of Calgary’s most established amenities. A defined foyer creates a proper sense of arrival and keeps the main living areas feeling calm and composed. Just off the entry, a POCKET OFFICE with built-ins and glass detailing offers a dedicated work or study space without disrupting the flow. The main floor opens into a dedicated dining area that naturally connects to the kitchen, creating an easy rhythm for daily life. The kitchen anchors the home with a large island featuring bar seating and an integrated sink. The appliance layout is designed for real use, keeping prep and cooking zones efficient and intuitive, with a full-size side-by-side fridge/freezer, gas cooktop, and wall oven. A BUILT-IN PANTRY provides generous storage while maintaining clean sightlines. At the back of the home, the living room feels warm and inviting with a GAS FIREPLACE and expansive patio doors that open to the CONCRETE PATIO, extending the living space outdoors. A discreet powder room and a well-designed MUDROOM with BENCH AND HOOKS complete the main level. Upstairs, the second floor is dedicated to rest and privacy. The primary bedroom is a calm retreat, finished with a TRAY CEILING that adds subtle architectural interest. The ensuite includes a FREESTANDING TUB, dual sinks, and a separate shower with bench seating. Two additional bedrooms are thoughtfully positioned away from the primary and share a full bathroom with dual sinks, and the laundry room is placed right in the middle of the layout for ease. The upper loft level adds a lifestyle layer rarely found in inner-city homes. A spacious loft with a BAR and sink works as a media lounge or entertaining space, while a FLEX ROOM adapts easily as an office or guest room, complete with a private 4-pc ensuite. Outside, a TWO-TIER BALCONY offers an outdoor retreat, creating a private, elevated escape with room to relax or host w/ TV wall and FIREPIT. The fully developed basement continues the theme of flexibility and function. A large rec room is paired with a SECOND WET BAR and an OFFICE OR GYM space adapts easily to your needs. A 5th bedroom with walk-in closet and a full bath makes this level comfortable for guests or extended family. Located in WEST HILLHURST, this home is minutes from the Bow River pathway system, West Hillhurst Community Centre, and Helicopter Park. Nearby schools include West Hillhurst School, Queen Elizabeth School, and Westmount Charter School. Kensington’s shops, cafes, and services along Kensington Rd and 10 S NW are close at hand, with quick access to downtown, Foothills Medical Centre, Alberta Children’s Hospital, and Memorial Dr. A walkable, established inner-city lifestyle with everything within reach.

MLS ® #: A2280534
Listing Office: RE/MAX House of Real Estate
Date Listed: January 20, 2026 - 77 days on site
Last Updated: Apr 07, 2026 12:25pm MST

$1,499,900

Details

Style:
3 (or more) storey, attached-side by side

Garage Size:
2

Interior:
bar, built-in features, double vanity, high ceilings, kitchen island, open floorplan, pantry, recessed lighting, see remarks, storage, tray ceiling(s), wet bar

Exterior:
other

Lot:
other, see remarks

Parking/Garage:
double garage detached

Frontage (feet):
25.00

Even More Details

Taxes:
$0

Foundation:
poured concrete

Construction:
stone,stucco

Flooring:
carpet,ceramic tile,hardwood

Roof:
asphalt shingle

Heating:
forced air

Inclusions:
n/a

Room Sizes

Living Room

12`8" x 14`10"

Kitchen

19`8" x 15`0"

Dining Room

12`6" x 11`0"

Bedroom - Primary

12`8" x 13`0"

Walk-In Closet

8`4" x 4`11"

Bedroom

14`0" x 11`2"

Bonus Room

8`8" x 8`11"

Laundry

8`4" x 5`6"

Bedroom

15`4" x 14`9"

Loft

15`4" x 13`0"

Bedroom

12`5" x 12`8"

Exercise Room

8`5" x 11`6"

Game Room

18`9" x 14`4"

2pc Bathroom

4pc Ensuite bath

5pc Ensuite bath

3pc Bathroom

3pc Bathroom

Thoughtful | Loyal | Effective

Loving this home?

Breanna will call to discuss.

"I have never had a home purchase go as smoothly as this one" - Sarah Clark-Pickett

Similar Properties

520 34A St.

Parkdale 6 Bed 4.5 Bath 2623sqft

RE/MAX House of Real Estate

New

2032 Bowness Road #Unit 1

West Hillhurst 4 Bed 4.5 Bath 2819sqft

Century 21 Bravo Realty

2535 2 Ave.

West Hillhurst 5 Bed 4.5 Bath 2660sqft

eXp Realty

38 Sunrise Way

Priddis Greens 2 Bed 2.5 Bath 1803sqft

RE/MAX Complete Realty

New

2231 2 Ave.

West Hillhurst 6 Bed 6.5 Bath 2949sqft

RE/MAX House of Real Estate

4507 17 St.

Altadore 4 Bed 4.5 Bath 2556sqft

RE/MAX House of Real Estate

2528 7 Ave.

West Hillhurst 4 Bed 3.5 Bath 2204sqft

Century 21 Bravo Realty

1529 29 Ave.

South Calgary 6 Bed 4.5 Bath 2627sqft

RE/MAX Realty Professionals

907 36A St.

Parkdale 6 Bed 4.5 Bath 2624sqft

RE/MAX House of Real Estate

“[Breanna] told me with 100% confidence and certainty she could get the job done and that’s exactly what happened.”.
 
- Channing Pass
“Breanna was a dream to work with - knowledgeable, attentive, professional and organized. I really appreciate how she and Tom operate their business - 'integrity' is the word that comes to mind.”.
 
- Michele Hannay
“The A Team helped us get our confidence back. But that was just the start. The hard work came after that. It hasn’t been easy and at times it has been extremely stressful but thank you to Breanna for her relentless hard work for her clients”.
 
- Louise Melvin

Breanna
Albrecht