109 Corner Glen Green NE | Cornerstone | Calgary

109 Corner Glen Green | Cornerstone

Beds
3 0
Baths
2.5
Sqft
2,141
Lot Sqft
4,606
Year Built
2026
Days Listed
26
Type
Detached
Status
Active
Garage
Yes
Foundation
Concrete
Condo Fee
No
Price Change
None

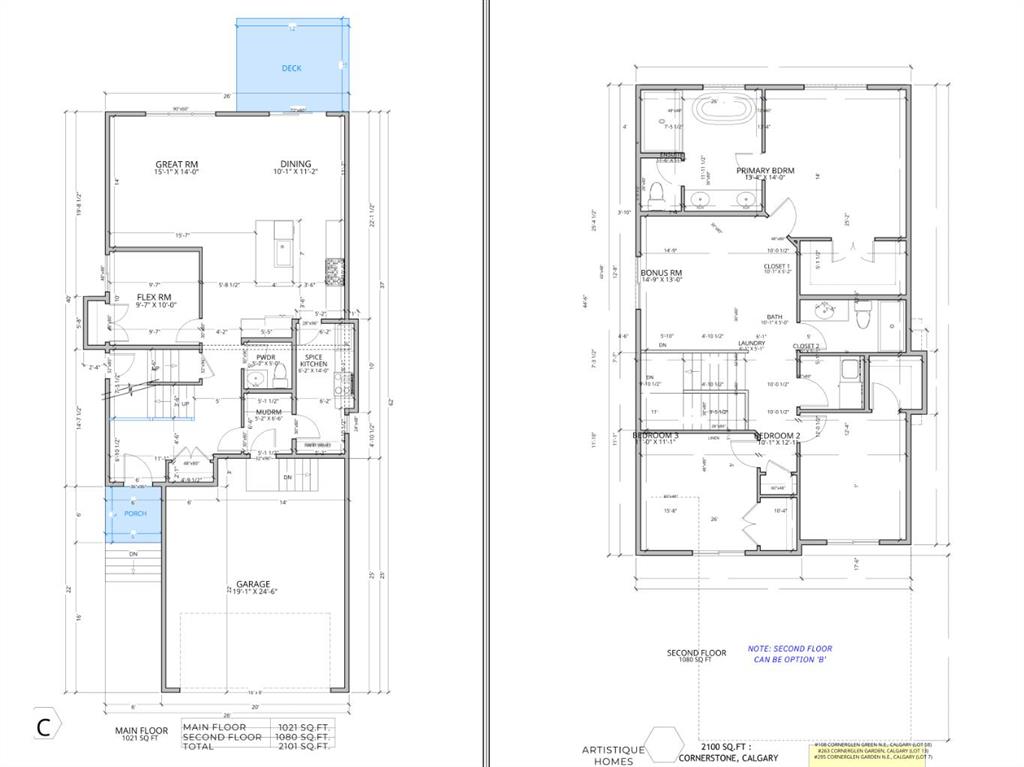
Stop settling for "almost perfect" and start building your dream. This is a rare opportunity to SECURE A PREMIUM, OVERSIZED PIE-SHAPED LOT IN THE VIBRANT COMMUNITY OF CORNERSTONE. With an IMPRESSIVE REAR WIDTH OF APPROXIMATELY 57 FEET, you finally have the space to create the sprawling backyard you’ve always wanted. Whether you have a vision from scratch or want a head start, we provide the flexibility to ensure your home fits your lifestyle perfectly. START WITH OUR POPULAR PRE-PLANNED MODELS AND MODIFY THEM TO SUIT YOUR FAMILY’S SPECIFIC NEEDS. All our pre-planned options already feature popular and much needed Main Floor Bedroom and Full Bathroom, Upstairs Bonus Room and customizations can be done to include Spice Kitchen, Front Facing Bonus Room and much more! THIS LOT IS JUST WALKING DISTANCE TO AN EXISTING PLAYGROUND and a few minutes from the future school site and the upcoming community recreation center. Cornerstone offers an effortless access to Country Hills Blvd and Stoney Trail, keeping the rest of Calgary within easy reach. Discuss with us about your need for a finished basement legal suite (subject to permits and City of Calgary approval). Don't miss this opportunity of building your dream home on a not so commonly available pie-shaped lot.

MLS ® #: A2291705
Listing Office: REMAX Innovations
Date Listed: March 11, 2026 - 27 days on site
Last Updated: Apr 07, 2026 05:25am MST

$699,000

Details

Style:
2 storey

Garage Size:
2

Interior:
breakfast bar, built-in features, double vanity, no animal home, no smoking home, quartz counters

Exterior:
bbq gas line, private yard

Lot:
back yard, pie shaped lot

Parking/Garage:
additional parking, double garage attached, driveway, garage door opener, garage faces front

Frontage (feet):
32.02

Even More Details

Taxes:
$0

Foundation:
poured concrete

Construction:
concrete,stone,vinyl siding,wood frame

Flooring:
carpet,ceramic tile,vinyl plank

Roof:
asphalt shingle

Heating:
central,natural gas

Inclusions:
n/a

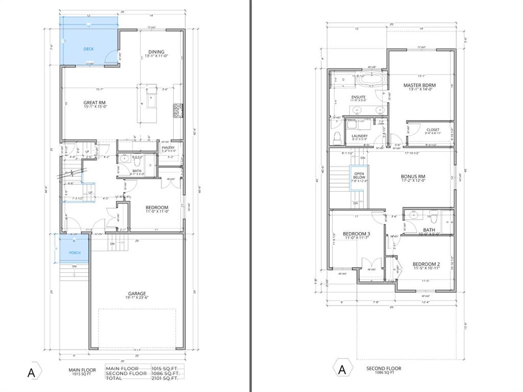
Room Sizes

2pc Bathroom

8`1" x 5`0"

Great Room

15`1" x 15`0"

Dining Room

13`1" x 11`0"

Bedroom - Primary

13`1" x 14`0"

Bonus Room

17`2" x 12`0"

5pc Ensuite bath

11`9" x 9`0"

Bedroom

11`0" x 11`7"

Bedroom

11`5" x 10`11"

3pc Bathroom

10`0" x 5`0"

Thoughtful | Loyal | Effective

Loving this home?

Breanna will call to discuss.

"The whole experience from start to finish was exactly what you look for when buying a house" - Makenzie Corcoran

Similar Properties

Pending

New

64 Drake Landing Common

Drake Landing 4 Bed 3.5 Bath 2149sqft

CIR Realty

New

160 Vantage Drive

Greystone 5 Bed 3.5 Bath 2274sqft

eXp Realty

81 Westminster Drive

Westgate 4 Bed 2 Bath 1106sqft

Coldwell Banker Mountain Central

New

14520 Parkside Drive

Parkland 3 Bed 3 Bath 1463sqft

2% Realty

131 Cityside View

Cityscape 4 Bed 3.5 Bath 1929sqft

Real Estate Professionals Inc.

Pending

17 Drake Landing Crescent

Drake Landing 4 Bed 3.5 Bath 2174sqft

Real Broker

1631 16A St.

Inglewood 2 Bed 1.5 Bath 1546sqft

CIR Realty

Reduced

47 Amblefield Grove

Moraine 3 Bed 3 Bath 2328sqft

Skyrock

8043 Elbow Drive

Chinook Park 5 Bed 2.5 Bath 1262sqft

Royal LePage Benchmark

“I never had to wait any length of time for her to answer my call or text. ”.
 
- Diane Elizabeth Gaulton
“We’ve dealt with dozens of REALTORS® and Breanna has exceeded all our expectations.”.
 
- Anna
“I think what sets Breanna apart is her genuine care for her clients.”.
 
- Shaun & Robyn Vey

Breanna
Albrecht