3223 Signal Hill Drive SW | Signal Hill | Calgary

New

Open House

New

Open House

3223 Signal Hill Drive | Signal Hill

Beds
2 2
Baths
3.0
Sqft
1,596
Lot Sqft
5,382
Year Built
2001
Days Listed
-0
Type
Detached
Status
Active
Garage
Yes
Foundation
Concrete
Condo Fee
No
Price Change
None

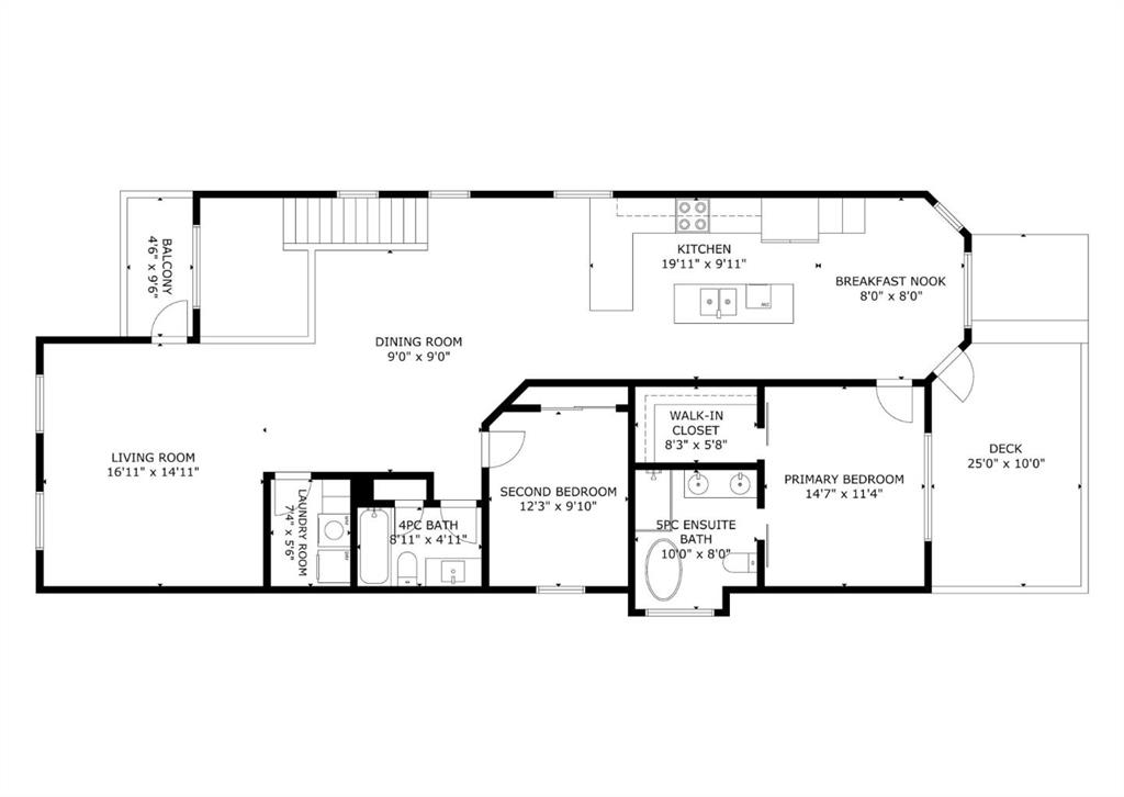
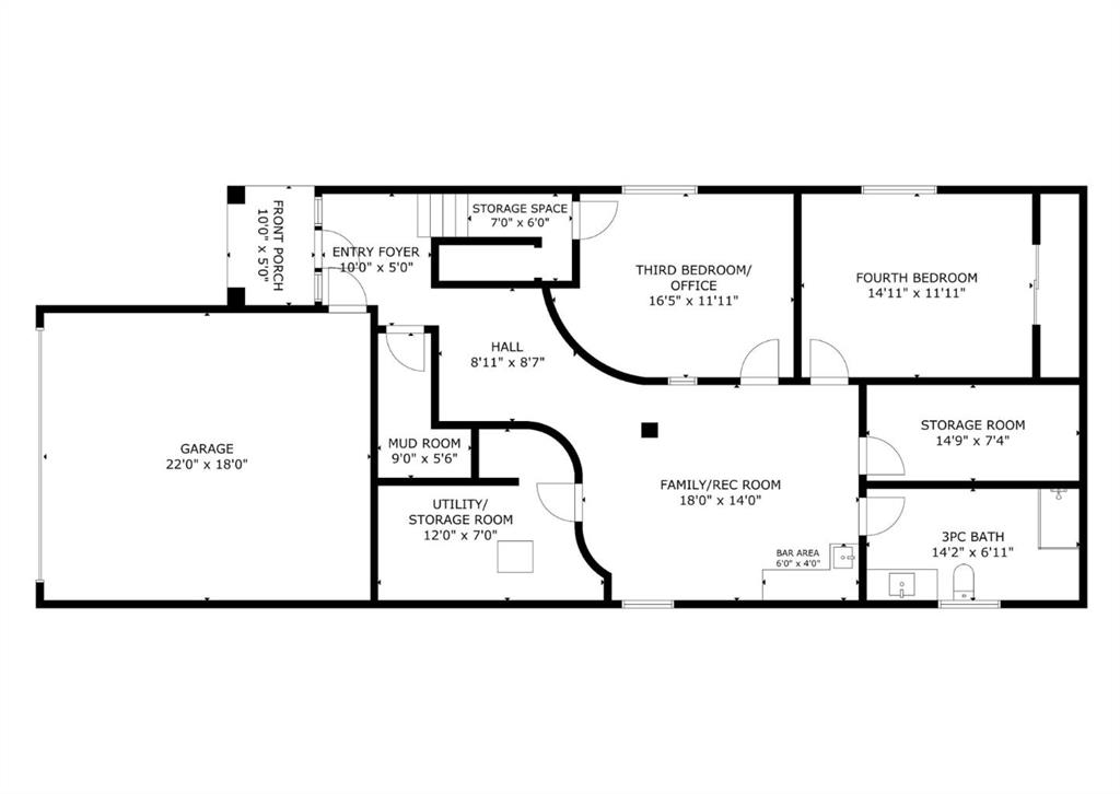
Open House April 5, 2-4pm | We are proud to present this massive, exquisitely renovated front walkout bungalow in the prestigious community of Signal Hill. The lower-level garage gives the ability to maintain a sprawling main floor, while offering 4 bedrooms and 3 bathrooms, this exceptional residence showcases 2,938ft2 of total refined living space across two beautifully designed levels, including 1,596ft2 on the main floor. At the heart of the home is a truly showstopping open-concept kitchen—a space that must be experienced to be fully appreciated. Designed for both everyday living and elegant entertaining, it features a 36" induction range, expansive quartz island with eating bar, custom hood fan, pot filler, striking backsplash, and sleek new cabinetry. The primary retreat is a private sanctuary, complete with a spacious walk-in closet and a spa-inspired ensuite. Indulge in the freestanding soaker tub, oversized walk-in shower, rustic vanity, and exquisite tilework—every detail thoughtfully curated to create a calming, luxurious escape. Additional premium features include a heated garage, central air conditioning, modern fireplace, engineered hardwood flooring, triple-pane windows, instant hot water system, new blinds throughout including some with motors, and a high-efficiency furnace with UV air filtration. Privacy film on the windows enhances comfort without sacrificing natural light. A large, secure locked storage room in the basement is available for buyer inspection. Signal Hill has long been one of the city’s most sought-after neighbourhoods, rich in both prestige and history. The home’s address pays homage to the four Alberta battalions of World War I, who trained at the base of Signal Hill—an enduring legacy commemorated by the iconic geoglyphs visible from Stoney and Sarcee Trail. Enjoy breathtaking mountain views from the west-facing balcony, along with proximity to excellent schools, effortless access downtown, and a direct route west to the Rocky Mountains. This is a rare and remarkable offering—a true gem in an iconic location. All permits are in place and available, including electrical, gas, plumbing, framing, and engineering permits. We would be delighted to accommodate your private showing./

MLS ® #: A2297623
Listing Office: RE/MAX Landan Real Estate
Date Listed: April 3, 2026 - 0 days on site
Last Updated: Apr 03, 2026 02:25am MST

$999,000

Open House

Sunday, Apr 05th
02:00PM - 04:00PM

Representation matters! If you'd prefer a private showing of this home, or would like a professional to accompany you to the open house, we can arrange it. That way, a representative present to look after your confidential information and your best interests. Just let us know!

Details

Style:
bungalow

Garage Size:
2

Interior:
built-in features, closet organizers, high ceilings, kitchen island, no animal home, no smoking home, open floorplan, quartz counters, recessed lighting, tankless hot water, vinyl windows, walk-in closet(s), wet bar

Exterior:
private yard

Lot:
back yard, front yard, landscaped, private, street lighting

Parking/Garage:
double garage attached, heated garage

Frontage (feet):
15.10

Even More Details

Taxes:
$0

Foundation:
poured concrete

Construction:
wood frame

Flooring:
hardwood,tile

Roof:
cedar shake

Heating:
forced air

Inclusions:
n/a

Room Sizes

Bedroom - Primary

14`7" x 11`4"

5pc Ensuite bath

0`0" x 0`0"

Bedroom

12`3" x 9`10"

4pc Bathroom

0`0" x 0`0"

Bedroom

16`5" x 11`11"

Bedroom

14`11" x 11`11"

3pc Bathroom

0`0" x 0`0"

Storage

14`9" x 7`4"

Thoughtful | Loyal | Effective

Loving this home?

Breanna will call to discuss.

"The A-Team are masters of their craft" - Jeremy Stewart

Similar Properties

Reduced

3410 1 St.

Highland Park 4 Bed 3.5 Bath 1940sqft

Initia Real Estate

312 Watercrest Place

Waterford 6 Bed 4 Bath 3185sqft

Century 21 Bravo Realty

New

2005 Waterbury Road

Waterford Estates 5 Bed 4.5 Bath 3316sqft

TREC The Real Estate Company

Pending

8 Masters Court

Mahogany 4 Bed 3.5 Bath 2796sqft

The Home Hunters Real Estate Group Ltd.

6 Elderberry Way

Harmony 4 Bed 2.5 Bath 3148sqft

Jessica Chan Real Estate & Management Inc.

Pending

Reduced

254086 Range Road 280

NONE 3 Bed 2.5 Bath 1635sqft

CIR Realty

New

60 Crestbrook View

Crestmont 3 Bed 3 Bath 1503sqft

RE/MAX Real Estate (Mountain View)

34 Rosery Drive

Rosemont 4 Bed 2 Bath 1711sqft

CIR Realty

801 Sailfin Drive

Harmony 4 Bed 3.5 Bath 2353sqft

RE/MAX Landan Real Estate

“We’ve dealt with dozens of REALTORS® and Breanna has exceeded all our expectations.”.
 
- Anna
“I think what sets Breanna apart is her genuine care for her clients.”.
 
- Shaun & Robyn Vey
“The A-Team sold our Condo when other REALTORS® couldn't.”.
 
- Colleen Bussey

Breanna
Albrecht